Beschreibung der Immobilie
Traumhaft geschnittene 3-Zimmerwohnung in 1110 Wien!
Traumhaft geschnittene 3-Zimmerwohnung in 1110 Wien!
Am Rosa-Jochmann-Ring wohnen Sie in einem der angenehmsten Teile Simmerings – am Leberberg, wo man die Stadt noch spürt, aber nicht hört. Hier starten Sie den Tag mit Blick ins Grüne und sind trotzdem in kurzer Zeit mitten in Wien. Das Viertel rund um den Leberberg steht für Ruhe, Weite und viel Freiraum. Ideal für Spaziergänge, Joggingrunden oder einfach ein paar Minuten Durchatmen nach der Arbeit. Bus und Straßenbahn quasi vor der Tür, die U3 Simmering ist rasch erreichbar – damit sind Sie flott am Stephansplatz, am Hauptbahnhof oder überall dort, wo Wien passiert. Auch Autofahrer freuen sich über die schnelle Anbindung an Hauptverkehrsachsen und die Ostautobahn.
Alles da, was den Alltag leicht macht: Supermärkte, Drogerien, Apotheke, Ärzte, Schulen und Kindergärten in direkter Nähe. Und wenn’s mal mehr sein darf: das HUMA für Shopping, Gastro und Besorgungen ist gleich ums Eck.
Eine moderne, durchdacht geplante Wohnanlage mit energieeffizientem Standard und privaten Außenflächen bei jeder Wohnung – Balkon, Loggia, Terrasse oder Garten schaffen ein echtes “Zuhause-Gefühl.
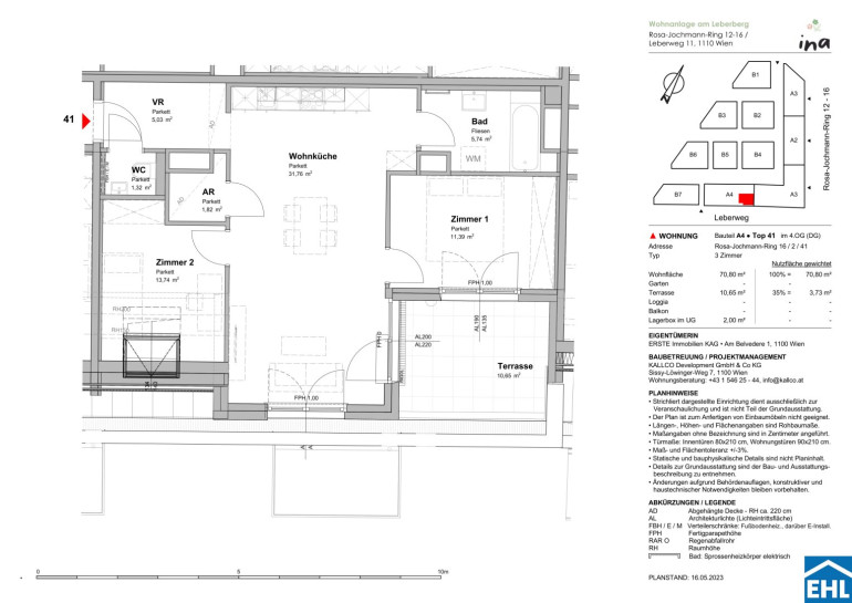
Die Wohnung selbst befindet sich in der 4. Etage und gliedert sich in eine geräumige Wohnküche mit vollausgestatteter Einbauküche, zwei getrennt begehbare Schlafzimmer, ein Badezimmer mit Badewanne und Waschmaschinenanschluss, ein separates WC, sowie einen Vorraum. Die Terrasse lädt zum gemütlichen Verweilen im Freien ein und rundet das Wohnerlebnis perfekt ab.
Ausstattung
- vollausgestattete Küche
- Badezimmer mit Badewanne, Waschmaschinenanschluss und WC
- Parkettböden in den Wohnräumen
- Fliesen in den Sanitärräumen
- Kellerabteil vorhanden
öffentliche Verkehrsanbindung
- Buslinien 71A, 71B
- Straßenbahnlinien 11, 71
Befristung
5 Jahre Befristung, 1 Jahr Kündigungsverzicht, 3 Monate Kündigungsfrist
Nebenkosten
3BMM Kaution, Vertragserrichtungsgebühr
Wir weisen darauf hin, dass zwischen dem Vermittler und dem zu vermittelnden Dritten ein familiäres oder wirtschaftliches Naheverhältnis besteht.
Der Immobilienmakler erklärt, dass er – entgegen dem in der Immobilienwirtschaft üblichen Geschäftsgebrauch des Doppelmaklers – einseitig nur für den Vermieter tätig ist.
Infrastruktur / Entfernungen
Gesundheit
Arzt <500m
Apotheke <750m
Klinik <1.750m
Krankenhaus <6.500m
Kinder & Schulen
Schule <500m
Kindergarten <500m
Universität <5.500m
Höhere Schule <5.750m
Nahversorgung
Supermarkt <750m
Bäckerei <500m
Einkaufszentrum <1.000m
Sonstige
Geldautomat <750m
Bank <750m
Post <750m
Polizei <1.000m
Verkehr
Bus <250m
U-Bahn <3.250m
Straßenbahn <250m
Bahnhof <1.000m
Autobahnanschluss <2.000m
Flughafen <9.250m
Angaben Entfernung Luftlinie / Quelle: OpenStreetMap
Eckdaten Objektnr. 95897
| Art: | Wohnung |
| Land: | Österreich |
| Zustand: | Gepflegt |
| Gesamtmiete: | 1.300,25 € |
| Kaltmiete (netto): | 1.040,44 € |
| Kaltmiete: | 1.182,05 € |
| Provision: | Gemäß Erstauftraggeberprinzip bezahlt der Abgeber die Provision. |
| Betriebskosten: | 141,61 € |
| MwSt Gesamt: | 118,20 € |
| Wohnfläche: | 70,80 m² |
| Zimmer: | 3 |
| Bäder: | 1 |
| WC: | 1 |
| Terrassen: | 1 |
| Heizwärmebedarf: | A 20,70 kWh/m²a |
| fGEE: | A+ 0,65 |
Ausstattung
Fliesen, Parkett, Fußbodenheizung, Einbauküche, Wohnküche / offene Küche, Personenaufzug, Ostbalkon, Badewanne
Ihre persönliche Beratung
Dieser Makler ist ein offizielles Mitglied des IR – ir.at Mehr Erfahren
