Historisches Haus in Gumpoldskirchen – sanierungsbedürftig, mit viel Potenzial

Haus , 2352 Gumpoldskirchen , Schulgasse


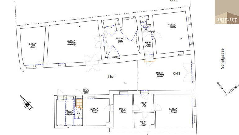
Beschreibung der Immobilie

Historisches Haus in Gumpoldskirchen – sanierungsbedürftig, mit viel Potenzial

Zum Verkauf gelangt dieses charmante, sanierungsbedürftige Haus im wunderschönen Weinort Gumpoldskirchen. Das Objekt bietet viel Potenzial, um sich seinen gemütlichen Wohntraum zu gestalten.



Über den überdachten Einfahrtsbereich gelangt man in den großzügigen Hof. Der linke Flügel beherbergt eine Wohnhälfte mit mehreren Zimmern und einem Badezimmer, der rechte Flügel bietet zusätzlichen Wohnraum. Weiter im Hofbereich befindet sich ein sonniges, kleines grünes Plätzchen – ideal für entspannte Nachmittage.



Im hinteren Teil des Hauses finden sich historische Lagerräume, die bei Bedarf ausgebaut werden könnten. Auch der Dachboden bietet praktischen Stauraum.



Das Haus befindet sich in einem sanierungsbedürftigen Zustand, sodass Ihnen die Möglichkeit offensteht, das Objekt nach Ihren Vorstellungen zu gestalten.



Es bestehen bereits konkrete Planungen zur möglichen Projektierung des Hauses.





Lage und Infrastruktur:
Gumpoldskirchen überzeugt durch eine perfekte Kombination aus Natur, Weinbaukultur und hoher Wohnqualität. Vielfältige Freizeitmöglichkeiten, Restaurants, Weingüter sowie die gute Anbindung an Wien machen den Standort besonders attraktiv. Hier verbinden sich ruhiges Wohnen, kulturelle Angebote und Wohnkomfort auf ideale Weise.





Ich freue mich auf Ihre Anfrage und stehe Ihnen jederzeit zur Verfügung!






Unser nachhaltiger Denkansatz sieht auch die Vermeidung unnötiger Ausdrucke in Papierform vor. Daher geben Sie uns bitte Bescheid, ob Sie die Unterlagen in gedruckter Form ausgehändigt haben möchten oder ob wir sie Ihnen einfach per E-Mail zusenden sollen. Wir richten uns gerne nach Ihren Wünschen!


Wir weisen darauf hin, dass zwischen dem Vermittler und dem zu vermittelnden Dritten ein familiäres oder wirtschaftliches Naheverhältnis besteht.


Der Vermittler ist als Doppelmakler tätig.

Infrastruktur / Entfernungen

Gesundheit
Arzt <1.250m
Apotheke <2.500m
Klinik <2.750m
Krankenhaus <5.250m

Kinder & Schulen
Schule <500m
Kindergarten <750m
Höhere Schule <3.250m

Nahversorgung
Supermarkt <750m
Bäckerei <250m
Einkaufszentrum <3.000m

Sonstige
Bank <500m
Geldautomat <500m
Polizei <1.250m
Post <250m

Verkehr
Bus <250m
Autobahnanschluss <4.750m
Bahnhof <750m
Straßenbahn <2.500m
U-Bahn <10.000m
Flughafen <9.000m

Angaben Entfernung Luftlinie / Quelle: OpenStreetMap

Eckdaten Objektnr. 311064

Art: Haus
Land: Österreich
Baujahr: 1909
Zustand: Sanierungsbeduerftig
Kaufpreis: 499.000,00
Provision: 3% des Kaufpreises zzgl. 20% USt.
Nutzfläche: 221,02 m²
Grundstücksfl.: 379,00 m²
Heizwärmebedarf:  G  380,30 kWh/m²a
fGEE:  G  4,80
Immobilie merken Exposé

Ausstattung

Gas


Immobilie anfragen


Ihre persönliche Beratung

BESTLIST Immobilien GmbH

Maximilian Sostar

Friends Immobilien

T +43 2252 25 28 28

H +43 676 95 04 082