Reindorfgasse - Erstbezug nach Generalsanierung - hofseitige 4 Zimmer Neubauwohnung zu vermieten

Wohnung , 1150 Wien


Beschreibung der Immobilie

Reindorfgasse - Erstbezug nach Generalsanierung - hofseitige 4 Zimmer Neubauwohnung zu vermieten

1150 Wien - Reindorfgasse 



vermietet wird eine neue sanierte 4 Zimmer Wohnung mit einer Einbauküche Nähe Schwendermarkt, 



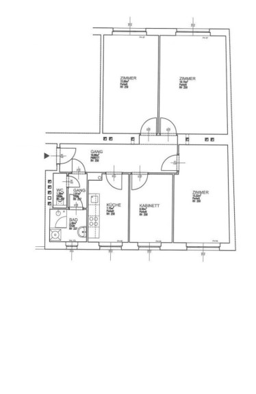
es sind vom Vorzimmer aus alle vier Zimmer zentral begehbar (WG tauglich), 



die Wohnung befindet sich im 2. Liftstock, 



83,72m2 Wohnfläche, 



Wohnzimmer, separate Einbauküche, 2 Schlafzimmer,1 Arbeitszimmer, Vorraum,



Bad mit Dusche und Waschmaschinenanschluss, 



separates WC, 



das Objekt liegt im 15. Wiener Gemeindebezirk nahe des Schwendermarkts. Durch den öffentlichen Nahverkehr (Bus- und Straßenbahnlinien) sind sowohl das Zentrum von Wien, als auch der Stadtrand bestens erreichbar. Die Haltestellen der Buslinie 12A und 57A sowie der Straßenbahnlinien 9, 52 und 60 sind nur wenige Gehminuten entfernt.



die Liegenschaft ist ab sofort verfügbar, 



Mietdauer: 5 Jahre,



zudem Verfügt das Haus über eine Waschküche,



Kellerabteil steht zur Verfügung, 



bei Bedarf kann ein Garagenplatz für PKW extra € 110,00 brutto/Monat oder einen für Motorräder für extra € 50,00 brutto/Monat. 



BMM: € 1.345,06 (inkl. BK und 10% USt.) 



zzgl.:  €    102,00 brutto/Monat Heizungs- und Warmwasserakonto 





Nebenkosten bei Anmietung:



Kaution: 3BMM


Der Immobilienmakler erklärt, dass er – entgegen dem in der Immobilienwirtschaft üblichen Geschäftsgebrauch des Doppelmaklers – einseitig nur für den Vermieter tätig ist.

Infrastruktur / Entfernungen

Gesundheit
Arzt <500m
Apotheke <500m
Klinik <500m
Krankenhaus <1.500m

Kinder & Schulen
Schule <500m
Kindergarten <500m
Universität <500m
Höhere Schule <1.500m

Nahversorgung
Supermarkt <500m
Bäckerei <500m
Einkaufszentrum <1.000m

Sonstige
Geldautomat <500m
Bank <500m
Post <500m
Polizei <500m

Verkehr
Bus <500m
U-Bahn <1.000m
Straßenbahn <500m
Bahnhof <1.000m
Autobahnanschluss <4.000m

Angaben Entfernung Luftlinie / Quelle: OpenStreetMap

Eckdaten Objektnr. 6876/1639

Art: Wohnung
Land: Österreich
Alter: Neubau
Gesamtmiete: 1.345,06
Kaltmiete (netto): 1.004,64 €
Kaltmiete: 1.222,79 €
Provision: Gemäß Erstauftraggeberprinzip bezahlt der Abgeber die Provision.
Betriebskosten: 185,11 €
MwSt Gesamt: 122,27 €
Wohnfläche: 83,72 m²
Nutzfläche: 83,72 m²
Grundstücksfl.: 83,72 m²
Gesamtfläche: 83,72 m²
Zimmer: 4
Bäder: 1
WC: 1
Heizwärmebedarf:  E  150,20 kWh/m²a
fGEE:  D  1,92
Immobilie merken Exposé

Ausstattung

Parkett, Fliesen, Fernwärme, Einbauküche, Bad mit Fenster, Badewanne, Garage


Immobilie anfragen


Ihre persönliche Beratung

BRI Immobilienmakler GmbH

Michelle Gnadenberger

BRI Immobilienmakler GmbH

T +43 676 7043377