EXKLUSIVE 3-ZIMMER-WOHNUNG MIT LOGGIA - TRAUMHAFTER GRÜNBLICK - IM HERZEN DES 23. BEZIRKS

Wohnung - Etage, 1230 Wien , Inzersdorf Kirchenplatz


Grillplatz 23. Bezirk, Johann-Benda-Park, Gymnasium Draschestraße, Pfarrkindergarten St. Nikolaus

Beschreibung der Immobilie

EXKLUSIVE 3-ZIMMER-WOHNUNG MIT LOGGIA - TRAUMHAFTER GRÜNBLICK - IM HERZEN DES 23. BEZIRKS

Zur Vermietung gelangt eine charmante 3-Zimmer-Wohnung, die lichtdurchflutetes Wohnen, eine durchdachte Raumaufteilung und eine herrlich ruhige Lage auf besonders harmonische Weise vereint.





Eckdaten:



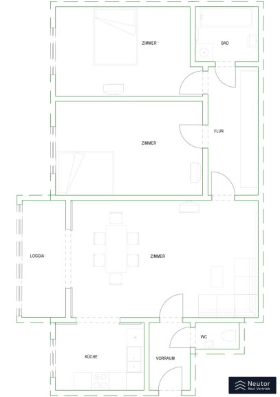
Wohnfläche: 83,19 m²

Loggia: ja, ca. 6 m² 

Zimmer: 3

Küche: Einbauküche - voll ausgestattet

Badezimmer: 1, mit Badewanne

WC: 1, separat - mit Handwaschbecken

Stock: Hochparterre 

Lift: nein

Kellerabteil: ja 

Waschküche: ja 

 



 



Beschreibung: 



Diese lichtdurchflutete und charmante 3-Zimmer-Wohnung überzeugt durch ihre ruhige Lage sowie eine umfassende Kernsanierung vor rund 8 Jahren und präsentiert sich heute in einem äußerst gepflegten Zustand. Bereits beim Betreten empfängt Sie ein einladender Vorraum mit ausreichend Platz für eine Garderobe. Ein separat angelegtes WC befindet sich praktischerweise gleich zur rechten Seite. Das Herzstück der Wohnung bildet der großzügige Wohnbereich, der mit seiner offenen Gestaltung und dem direkten Zugang zur Loggia ein besonders angenehmes Wohngefühl vermittelt. Die moderne Einbauküche fügt sich harmonisch ein und lädt zum Kochen und Verweilen ein. Über einen zentralen Flur gelangen Sie in zwei weitere Zimmer, die sich hell und freundlich präsentieren und vielseitig nutzbar sind - ideal als Schlaf-, Kinder- oder Arbeitszimmer. Das Badezimmer ist mit einer Badewanne sowie einem Waschmaschinenanschluss ausgestattet und rundet das Raumangebot komfortabel ab. Ein durchgehend verlegter Parkettboden unterstreicht den hochwertigen und wohnlichen Charakter der gesamten Wohnung. Der freie Blick auf den Kirchenplatz sowie die ausgezeichnete Ruhelage machen diese Wohnung zu einem schönen und besonderen Rückzugsort. 






Kosten:



Brutto HMZ: € 1.320,- inkl. Betriebskosten und USt. 

Kaution: 3 BMM

Provision: keine 












Lage & Infrastruktur:



Die Wohnung überzeugt durch ihre ruhige Lage bei gleichzeitig sehr guter Verkehrsanbindung. In unmittelbarer Nähe verkehren die Buslinien 16A, 58A, 66A, 67A, sowie die Straßenbahnlinie 67, die eine rasche Verbindung zu wichtigen Umsteigepunkten unkompliziert ermöglichen. Die U6 (Station Alterlaa/Erlaaer Straße) sowie die Badner Bahn (WLB) sorgen für eine komfortable Anbindung in Richtung Stadtzentrum. Geschäfte des täglichen Bedarfs befinden sich in direkter Umgebung. Zudem laden nahegelegene Grünflächen wie der Johann-Benda-Park zur Erholung ein, während nahegelegene Schulen und Kindergärten die Lage besonders familienfreundlich machen.





Wir dürfen gem. § 5 Maklergesetz darauf hinweisen, dass wir als Doppelmakler tätig sind und ein wirtschaftliches/familiäres Naheverhältnis zu unseren Auftraggebern besteht. Das wirtschaftliche Naheverhältnis ergibt sich aus regelmäßiger geschäftlicher Verbindung. Irrtum vorbehalten. 


Wir weisen darauf hin, dass zwischen dem Vermittler und dem zu vermittelnden Dritten ein familiäres oder wirtschaftliches Naheverhältnis besteht.


Der Immobilienmakler erklärt, dass er – entgegen dem in der Immobilienwirtschaft üblichen Geschäftsgebrauch des Doppelmaklers – einseitig nur für den Vermieter tätig ist.

Infrastruktur / Entfernungen

Gesundheit
Arzt <750m
Apotheke <750m
Klinik <1.000m
Krankenhaus <2.250m

Kinder & Schulen
Schule <250m
Kindergarten <250m
Universität <2.750m
Höhere Schule <3.250m

Nahversorgung
Supermarkt <250m
Bäckerei <1.000m
Einkaufszentrum <500m

Sonstige
Geldautomat <1.000m
Bank <500m
Post <750m
Polizei <1.000m

Verkehr
Bus <250m
U-Bahn <2.000m
Straßenbahn <500m
Bahnhof <1.000m
Autobahnanschluss <250m

Angaben Entfernung Luftlinie / Quelle: OpenStreetMap

Eckdaten Objektnr. 4974

Art: Wohnung - Etage
Land: Österreich
Baujahr: 1970
Zustand: Neuwertig
Alter: Neubau
Gesamtmiete: 1.320,00
Kaltmiete (netto): 960,60 €
Kaltmiete: 1.200,00 €
Provision: Gemäß Erstauftraggeberprinzip bezahlt der Abgeber die Provision.
Betriebskosten: 239,40 €
MwSt Gesamt: 120,00 €
Wohnfläche: 83,19 m²
Nutzfläche: 83,19 m²
Gesamtfläche: 83,19 m²
Zimmer: 3
Bäder: 1
WC: 1
Keller: 4,00 m²
Heizwärmebedarf:  D  135,22 kWh/m²a
fGEE:  E  3,03
Immobilie merken Exposé

Ausstattung

Parkett, Fliesen, Gas, Etagenheizung, Wohnküche / offene Küche, Einbauküche, Ostbalkon, Badewanne, Kabel/Satelliten-TV, Wasch/Trockenraum


Immobilie anfragen


Ihre persönliche Beratung

Melanie Ivancsics

Neutor Real GmbH

T +43 1 532 3730

H +4366488387556