Exklusive Gartenwohnung mit Seezugang und unverbaubarem Wörthersee-Blick in Maria Wörth

Wohnung , 9082 Maria Wörth , Seeplatz 3


Die angebotene Gartenwohnung befindet sich in einer der exklusivsten Wohnlagen Kärntens – in Maria Wörth am Wörthersee. Die Lage zählt zu den begehrtesten Adressen rund um den See und bietet eine einzigartige Kombination aus Ruhe, Natur und direkter Nähe zum Wasser. Der Wörthersee steht international für außergewöhnliche Lebensqualität, kristallklares Wasser und eine beeindruckende Landschaft. Von der Wohnung aus eröffnet sich ein unverbaubarer Blick über den See und die umliegende Bergkulisse, der zu jeder Tageszeit ein besonderes Wohngefühl vermittelt. Die Anlage liegt nur wenige Minuten von Velden und Klagenfurt entfernt und bietet gleichzeitig eine ruhige, private Atmosphäre. Restaurants, Golfplätze sowie zahlreiche Freizeitmöglichkeiten befinden sich in unmittelbarer Umgebung.

Beschreibung der Immobilie

Exklusive Gartenwohnung mit Seezugang und unverbaubarem Wörthersee-Blick in Maria Wörth

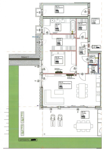
Zum Verkauf gelangt eine exklusive Gartenwohnung in der Anlage Hermitage am Wörthersee mit direktem Zugang zum See.



Die Wohnung überzeugt durch eine moderne Architektur, hochwertige Materialien sowie großzügige Glasflächen, die den Innenraum mit der umliegenden Natur verbinden. Besonders hervorzuheben ist der unverbaubare Blick auf den Wörthersee, der von der Terrasse und dem Garten aus genossen werden kann.



Der offene Wohn- und Essbereich bildet das Herzstück der Wohnung und bietet direkten Zugang zur großzügigen Terrasse und zum privaten Gartenbereich.



Ein besonderes Highlight ist der exklusive Strandbereich mit Seezugang, der den Bewohnern der Anlage zur Verfügung steht. 




Wohnungsdetails




  • Wohnfläche: ca. 85 m²



  • Zimmer: 2



  • Schlafzimmer: 1



  • Badezimmer: 1



  • separates WC



  • Terrasse: ca. 65 m²



  • Garten: ca. 42 m²



  • 2 Tiefgaragenplätze



  • Kellerabteil vorhanden




Die Wohnung wird voll möbliert übergeben. 



Exposé Hermitage




Anlage & Infrastruktur



Die hochwertige Wohnanlage bietet ihren Bewohnern ein exklusives Umfeld mit zahlreichen Annehmlichkeiten.




  • privater Strandbereich mit Seezugang



  • unverbaubarer Blick auf den Wörthersee



  • Golfplatznähe



  • gehobene Gastronomie in unmittelbarer Umgebung



  • Vermietungsmöglichkeiten über das angeschlossene Hotelkonzept




Die Lage der Wohnung innerhalb der Anlage ermöglicht eine besonders attraktive Ausrichtung mit freiem Blick auf den See. 



Lageplan Hermitage Anlage mit K…








Altior-Highlights



• Gartenwohnung mit unverbaubarem Wörthersee-Blick
• exklusiver Seezugang mit privatem Badeplatz

• großzügige Terrasse und privater Garten

• hochwertige Wohnanlage in Maria Wörth

• voll möblierte Übergabe

• zwei Tiefgaragenstellplätze

• seltene Gelegenheit im Premiumsegment am Wörthersee




Immobilien in dieser Lage zählen zu den exklusivsten Angeboten rund um den Wörthersee. Die Kombination aus direktem Seezugang, unverbaubarem Ausblick sowie der hochwertigen Wohnanlage schafft ein außergewöhnliches Wohn- und Investmentobjekt in einer der begehrtesten Regionen Österreichs.



Weitere Unterlagen sowie detaillierte Informationen übermitteln wir Ihnen gerne auf Anfrage.

Infrastruktur / Entfernungen

Gesundheit
Arzt <2.375m
Apotheke <2.350m

Kinder & Schulen
Schule <2.375m
Kindergarten <2.450m

Nahversorgung
Supermarkt <1.450m
Bäckerei <2.675m

Sonstige
Bank <2.375m
Geldautomat <2.375m
Post <2.375m
Polizei <2.650m

Verkehr
Bus <525m
Autobahnanschluss <1.675m
Bahnhof <1.300m

Angaben Entfernung Luftlinie / Quelle: OpenStreetMap

Eckdaten Objektnr. 558

Art: Wohnung
Land: Österreich
Zustand: Gepflegt
Alter: Neubau
Kaufpreis: 1.950.000,00
Provision: 3% des Kaufpreises zzgl. 20% USt.
Wohnfläche: 85,00 m²
Zimmer: 2
Bäder: 1
WC: 1
Terrassen: 1
Garten: 42,00 m²
Heizwärmebedarf:  B  32,10 kWh/m²a
fGEE:  B  0,77
Immobilie merken Exposé

Ausstattung

Einbauküche, Tiefgarage


Immobilie anfragen


Ihre persönliche Beratung

Mario Kaltenbacher, MSc

Altior Immobilien GmbH.

T +43 699 18 14 63 37