Moderne, sanierte 106 m² Dachwohnung mit Terrasse und Klima - 1150 Wien

Wohnung - Dachgeschoß, 1150 Wien,Rudolfsheim-Fünfhaus


Mariahilfer Straße, Westbahnhof

Beschreibung der Immobilie

Moderne, sanierte 106 m² Dachwohnung mit Terrasse und Klima - 1150 Wien

Ruhiges Dachgeschoß-Eigentum in schöner Lage mit Terrasse!



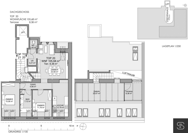
Diese soeben fertig sanierte Wohnung befindet sich im Dachgeschoß (4. Liftstock) eines schönen Zinshauses in der Geibelgasse. Die sonnige Wohnung besteht aus einem Vorraum, separate Toilette, Wohnzimmer, 2 Schlafzimmern, Badezimmer mit Badewanne und separate Küche. Über eine Treppe gelangt man in den oberen Galerie-Bereich mit Terrasse. (Galerie ca. 26 m² und Terrasse ca. 8 m²)



Ausstattung: Sanierte Dachmaisonette mit Küchenbereich (ohne Geräte, alle Anschlüsse sind vorhanden), geschmackvolles Badezimmer mit Doppelwaschtisch und WM-Anschluss, Parkett- und Fliesenböden, Fußbodenheizung, Klimaanlage, Fenster mit Mehrfachverglasung und teilw. Sonnenschutz, Abstellraum im Erdgeschoß,.



Dieser schöne Altbau befindet sich unweit der äußeren Mariahilfer Straße und des Westbahnhofes. Ebenso ist die Lugner City mit unzähligen Einkaufsmöglichkeiten nicht weit entfernt. Gute öffentliche Verkehrsanbindung, u.a. durch die Straßenbahnlinien 5, 9, 18, 49, 52, 60 in unmittelbarer Umgebung sowie der Buslinie 12A. Die U6 Station "Gumpendorfer Straße" ist in ca. 9 Gehminuten erreichbar. Sämtliche Geschäfte des tägliches Bedarfsbefinden sich in der nahe gelegenen Mariahilfer Straße.



Die Wohnung wird ab sofort im Wohnungseigentum verkauft!
Kaufpreis € 799.000,-
Rücklage 1,12 €/m²

Betriebskosten 283,66 € netto

Vermittlungsprovision 3% vom KP zuzügl. 20% USt.



KONTAKT: Frau Mag. Aichholzer 0664 401 96 53
Email: aa@sitarz.at



Besuchen Sie für unsere weiteren Angebote bitte auch unsere Homepage: www.sitarz.at



Der Käufer zahlt im Erfolgsfall an die Firma Sitarz & Partner Immobilien GmbH eine Maklerprovision in Höhe von 3% des Kaufpreises zzgl. 20% Ust. Die Provision errechnet sich aus dem beurkundeten Kaufpreis. Ausdrücklich vereinbart wird dieser Provisionsanspruch in gleicher Höhe auch für die in § 15 MaklerG vorgesehenen Fälle (Unterlassung eines notwendigen Rechtsaktes wider Treu und Glauben, Abschluss eines zweckgleichen Geschäftes, Abschluss mit einem Dritten aufgrund der Weitergabe der Abschlussmöglichkeit, Ausübung eines Vorkaufs-, Wiederkaufs- oder Eintrittsrechtes). Wir halten fest, dass Ihnen dieses Objekt erstmals durch unsere Tätigkeit als Immobilienmakler bekannt wurde. Falls Ihnen dieses Objekt bereits als verkauf- oder vermietbar bekannt ist, ersuchen wir innerhalb von 3 Werktagen um Ihre schriftliche Nachricht, ansonsten gilt die Provisionsregelung als vereinbart. Bei den Größen und Ertragsangaben handelt es sich um die von Abgeber/in (Eigentümer/in bzw. Hausverwaltung) zur Verfügung gestellten Informationen. Die Angaben wurden von uns kontrolliert, eine Gewähr für die Richtigkeit, Vollständigkeit und Letztstand müssen wir allerdings ausschließen. Es wird darauf hingewiesen, dass zwischen dem Abgeber und dem Immobilienmakler ein wirtschaftliches bzw. familiäres Nahverhältnis besteht und der Immobilienmakler auch für diesen tätig ist (Doppelmakler).


Wir weisen darauf hin, dass zwischen dem Vermittler und dem zu vermittelnden Dritten ein familiäres oder wirtschaftliches Naheverhältnis besteht.


Der Vermittler ist als Doppelmakler tätig.

Infrastruktur / Entfernungen

Gesundheit
Arzt <500m
Apotheke <500m
Klinik <500m
Krankenhaus <1.500m

Kinder & Schulen
Schule <500m
Kindergarten <500m
Universität <500m
Höhere Schule <1.500m

Nahversorgung
Supermarkt <500m
Bäckerei <500m
Einkaufszentrum <1.000m

Sonstige
Geldautomat <500m
Bank <500m
Post <500m
Polizei <500m

Verkehr
Bus <500m
U-Bahn <500m
Straßenbahn <500m
Bahnhof <500m
Autobahnanschluss <4.000m

Angaben Entfernung Luftlinie / Quelle: OpenStreetMap

Eckdaten Objektnr. 7781

Art: Wohnung - Dachgeschoß
Land: Österreich
Zustand: Voll_saniert
Alter: Neubau
Kaufpreis: 799.000,00
Betriebskosten: 283,66 €
MwSt Gesamt: 28,37 €
Wohnfläche: 105,68 m²
Zimmer: 3
Bäder: 1
WC: 1
Terrassen: 1
Heizwärmebedarf:  C  101,30 kWh/m²a
fGEE:  C  1,59
Immobilie merken Exposé

Ausstattung

Parkett, Fliesen, Gas, Fußbodenheizung, Personenaufzug, Westbalkon, Bad mit Fenster, Badewanne


Immobilie anfragen


Ihre persönliche Beratung

Mag. Astarte Aichholzer

Sitarz & Partner Immobilien GmbH

T +43 664 401 96 53

H +43 664 401 96 53