Ab JULI | 2-ZIMMER | BALKON | AN DER ALTEN DONAU | DONAUSTADTBRÜCKE | INNENHOF

Wohnung - Etage, 1220 Wien , Effenbergplatz


Beschreibung der Immobilie

Ab JULI | 2-ZIMMER | BALKON | AN DER ALTEN DONAU | DONAUSTADTBRÜCKE | INNENHOF

- DANUBE HORIZON - 







Lage



Das exklusive Neubauprojekt überzeugt mit seiner Toplage im 22. Wiener Gemeindebezirk, welche eine perfekte Mischung aus urbaner Bequemlichkeit und natürlicher Schönheit bietet. Das Projekt liegt inmitten einer ruhigen und familienfreundlichen Umgebung und ist von einer reichen Grünlandschaft umgeben. Hier können Sie die frische Luft und die Ruhe genießen, während Sie gleichzeitig die Vorzüge des städtischen Lebens in greifbarer Nähe haben. Das Gebäude liegt direkt an der Alten Donau.



Die direkte Umgebung bietet eine Vielzahl von Annehmlichkeiten für den täglichen Bedarf. Nur wenige Schritte entfernt finden Sie Einkaufsmöglichkeiten, Supermärkte, Restaurants, Cafés und Geschäfte, die Ihnen alles bieten, was Sie benötigen. Die ausgezeichnete Verkehrsanbindung ermöglicht es Ihnen, problemlos das Stadtzentrum von Wien und andere Teile der Stadt zu erreichen. Der nahegelegene Donaupark bietet eine malerische Landschaft, Spielplätze, Radwege und die Möglichkeit, Wassersportarten auf der Donau auszuüben. 



Die BewohnerInnen profitieren von einer ausgezeichneten Verkehrsanbindung. Die U-Bahn-Station "Donaustadtbrücke" (U2) ist bequem zu Fuß erreichbar und bietet Ihnen eine schnelle Anbindung an das öffentliche Verkehrsnetz von Wien. Des weiteren fahren unweit des Projekts die Buslinien 92A und 93A





Projekt



In diesem Projekt entstehen in zwei Bauteilen 251 freifinanzierte Mietwohnungen sowie eine Tiefgarage, welche Stellplätze für 135 KFZ bietet. Alle Wohnungen verfügen über eine Freifläche wie Garten, Terrasse, Balkon oder Loggia sowie ein zugeordnetes Kellerabteil



Das Gebäude verfügt außerdem über Fahrradabstellräume, Kinderwagenabstellräume, begrünten Innenhof sowie eine Paketanlage. Des weiteren gibt es einen Kinder- und Jugendspielplatz



Aufzüge verbinden alle Geschoße der Bauteile miteinander und ermöglichen einen barrierefreien Zugang



Die Wohnungen werden mittels Geothermie in Kombination mit einer Luftwärmepumpe beheizt.



Es stehen im hauseigenen Keller Stellplätze (EUR 114,- p.m.) und E-Stellplätze (EUR 140,- p.m.)  zur Verfügung, jene zusätzlich angemietet werden können.





Ausstattung



  • Ladestationen für Elektrofahrzeuge in der hauseigenen Tiefgarage
  • Kunststofffenster mit 3-fach Isolierverglasung und außenliegendem Sonnenschutz
  • Begrünte Flachdächer
  • Bauteil "Pünktchen" - Ausführung einer Photovoltaik Anlage 
  • Digitaler Kabelanschluss an vorhandenes TV-Netz
  • Hochwertiger Eichenparkett in Wohnräumen; Fliesen in Nassräumen
  • Sicherheitswohnungseingangstüren entsprechend den Brandschutzanforderungen
  • Ausgestattete Küchen mit Markengeräten
  • Bäder je nach Größe mit Duschen oder Badewannen






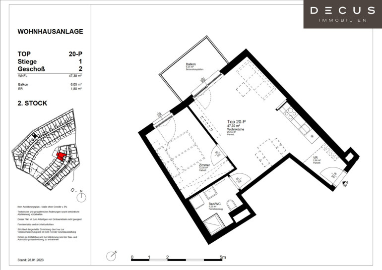
Die Wohnung im Bauteil 1 Top 20 befindet sich im 2. Obergeschoß, ist nordwestseitig ausgerichtet und teilt sich wie folgt auf: 



  • Vorraum 
  • Bad mit Dusche und WC
  • Wohnküche mit Essbereich
  • Schlafzimmer
  • Balkon in den Innenhof



Der Immobilienmakler erklärt, dass er – entgegen dem in der Immobilienwirtschaft üblichen Geschäftsgebrauch des Doppelmaklers – einseitig nur für den Vermieter tätig ist.

DECUS Immobilien GmbH – Wir beleben Räume

Für weitere Informationen und Besichtigungen steht Ihnen gerne Frau  Laura Kowalczyk unter der Mobilnummer +43 660 157 59 35und per E-Mail unter kowalczyk@decus.at persönlich zur Verfügung.

www.decus.at | office@decus.at 

Wichtige Informationen

Bitte beachten Sie, dass per 13.06.2014 eine neue Richtlinie für Fernabsatz- und Auswärtsgeschäfte in Kraft getreten ist.

Ab 1.4.2024 entfallen die Grundbuchs- und Pfandrechtseintragungsgebühren vorübergehend für Eigenheime bis zu einer Bemessungsgrundlage von EUR 500.000,-. Voraussetzung ist das dringende Wohnbedürfnis, ausgenommen davon sind vererbte oder geschenkte Immobilien. Die Befreiung ist jedoch für den Einzelfall zu prüfen, DECUS Immobilien übernimmt hierzu keine Haftung.

Ab 01.07.2023 gilt das Erstauftraggeber-Prinzip bei Wohnungsmietverträgen, ausgenommen davon sind Dienst-/Natural-/Werkswohnungen. Wir dürfen gem. § 17 Maklergesetz darauf hinweisen, dass wir auf die Doppelmaklertätigkeit gem. § 5 Maklergesetz bei Wohnungsmietverträgen verzichten und nur noch einseitig tätig sind (bei den restlichen Vermittlungsarten nicht) und ein wirtschaftliches Naheverhältnis zu unseren Auftraggebern besteht. 

Im Falle eines Abschlusses mit Ihnen oder einem von Ihnen namhaft gemachten Dritten bzw. bei beidseitiger Willensübereinstimmung beträgt unser Honorar (lt. Honorarverordnung für Immobilienmakler) 2 Bruttomonatsmieten (BMM) bei Dienst-/Natural-/Werkwohnungen sowie Suchaufträgen, 3 BMM bei Gewerbe-, PKW-, Keller- und Lagermietverträgen sowie bei Kaufobjekten 3 % des Kaufpreises, zuzüglich der gesetzlichen Umsatzsteuer.

Dieses Objekt wird Ihnen unverbindlich und freibleibend angeboten. Oben angeführte Angaben basieren auf Informationen und Unterlagen des Eigentümers und sind unsererseits ohne Gewähr.

Nähere Informationen sowie unsere AGBs und die Nebenkostenübersichtsblatt finden Sie auf unserer Homepage www.decus.at unter "Service" - "Rechtliches zum FAGG" sowie im Anhang der zugesendeten Objekt-Exposés!

Infrastruktur / Entfernungen

Gesundheit
Arzt <1.250m
Apotheke <1.250m
Klinik <2.000m
Krankenhaus <2.000m

Kinder & Schulen
Schule <1.250m
Kindergarten <1.500m
Universität <1.500m
Höhere Schule <3.750m

Nahversorgung
Supermarkt <250m
Bäckerei <1.000m
Einkaufszentrum <1.500m

Sonstige
Geldautomat <1.000m
Bank <1.000m
Post <1.000m
Polizei <2.000m

Verkehr
Bus <250m
U-Bahn <250m
Straßenbahn <1.750m
Bahnhof <250m
Autobahnanschluss <250m

Angaben Entfernung Luftlinie / Quelle: OpenStreetMap

Eckdaten Objektnr. 1152539

Art: Wohnung - Etage
Land: Österreich
Baujahr: 2023
Zustand: Neuwertig
Alter: Neubau
Gesamtmiete: 1.104,02
Kaltmiete (netto): 803,48 €
Kaltmiete: 940,91 €
Provision: Gemäß Erstauftraggeberprinzip bezahlt der Abgeber die Provision.
Betriebskosten: 137,43 €
Heizkosten: 60,59 €
MwSt Gesamt: 102,52 €
Wohnfläche: 47,39 m²
Zimmer: 2
Bäder: 1
WC: 1
Balkone: 1
Heizwärmebedarf:  A  21,80 kWh/m²a
fGEE:  A  0,79
Immobilie merken Exposé

Ausstattung

Fliesen, Parkett, Erdwärme, Einbauküche, Wohnküche / offene Küche, Personenaufzug, Dusche, Kabel/Satelliten-TV, Garage, Parkplatz, Tiefgarage, Wasch/Trockenraum


Immobilie anfragen


Ihre persönliche Beratung

DECUS Immobilien GmbH

Laura Kowalczyk

DECUS Immobilien GmbH

T +43 660 157 59 35

H +43 660 157 59 35

F +43 1 35 600 10