Leben im Freien! Geniale 4-Zimmer-Gartenwohnung. Kompakt und leistbar.

Wohnung , 2301 Groß-Enzersdorf , Kirchenplatz


Alles da. Alles nah. Alles entspannt. Nur wenige Minuten entfernt befindet sich mit dem Marchfeld Center das zentrale Einkaufsziel der Umgebung – mit rund 15 Shops von BILLA Plus über Hofer und dm bis hin zu Mode, Drogerie und mehr. Praktisch: 500 Gratis-Parkplätze und eine direkte Anbindung per City-Bus. Auch die öffentliche Verbindung nach Wien ist unkompliziert und schnell: Die Buslinie 550 bringt Sie direkt zur U2 Aspernstraße, während die Linie 26A Richtung U1 Kagran führt – perfekt für alle, die flexibel zwischen Stadt und Ruhe pendeln möchten. Für Familien besonders attraktiv: Schulen, Kindergärten und Betreuungseinrichtungen sind bequem fußläufig erreichbar. Ebenso finden sich Ärzte, ein Kinderarzt sowie ein Ärztezentrum direkt im Ort – ergänzt durch eine Apotheke in unmittelbarer Nähe. Kurz gesagt: Eine Lage, die den Alltag einfach macht.

Beschreibung der Immobilie

Leben im Freien! Geniale 4-Zimmer-Gartenwohnung. Kompakt und leistbar.

Ankommen, durchatmen, zuhause sein.



Nur wenige Minuten von Wien entfernt entsteht in Groß-Enzersdorf ein Wohnprojekt, das genau den Zeitgeist trifft: mehr Ruhe, mehr Freiraum und gleichzeitig volle Anbindung an die Stadt.



Hier beginnt der Tag mit Blick ins Grüne und endet entspannt auf der eigenen Terrasse oder dem Balkon. Die Nähe zur Lobau, weitläufige Naturflächen und ein angenehm gewachsenes Umfeld schaffen ein Wohngefühl, das in dieser Form selten geworden ist.



Die Wohnungen selbst sind so geplant, wie man heute leben möchte: offen, hell und effizient. 2 bis 4 Zimmer, Wohnflächen von ca. 45 m² bis 114 m² und durchdachte Grundrisse bieten Raum für unterschiedlichste Lebenssituationen – vom kompakten Investment bis zum Familienzuhause. Jede Einheit verfügt über eine eigene Freifläche und erweitert den Wohnraum ins Freie.



Die Ausstattung folgt einem klaren Anspruch: langlebig, hochwertig und komfortabel. Eichenparkett, moderne Fliesen, dreifach verglaste Fenster, elektrische Beschattung und Fußbodenheizung über Fernwärme sorgen für ein angenehmes Wohnklima. In den Dachgeschosswohnungen bietet eine Klimaanlage zusätzlichen Komfort. Lift, Videogegensprechanlage sowie vorbereitete E-Ladeinfrastruktur runden das Gesamtbild ab. Die Kombination aus Qualität, Funktionalität und zeitlosem Design sorgt für ein angenehmes Wohnklima und langfristige Wertbeständigkeit.



Auch aus Investorensicht überzeugt das Projekt: Die Kombination aus Stadtnähe, Grünlage und funktionalen Grundrissen sorgt für nachhaltige Nachfrage und sehr gute Vermietbarkeit.



Kurz gesagt: ein Projekt, das nicht nur heute passt, sondern auch morgen noch Sinn macht.





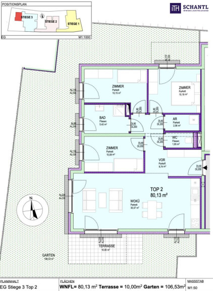
Wohnung Top 2 - Stiege 3



4 Zimmer Gartenwohnung mit optimaler Raumaufteilung und großem Eigengarten. 



Diese großzügige 4-Zimmer-Gartenwohnung vereint durchdachte Raumplanung mit einem besonderen Maß an Lebensqualität. Ruhig im Innenhof gelegen, entsteht hier ein Zuhause, das Rückzug, Freiraum und modernes Wohnen ideal miteinander verbindet.



Auf rund 80 m² Wohnfläche überzeugt die Wohnung mit einem offenen und lichtdurchfluteten Wohnbereich von ca. 30 m² – das Herzstück des Zuhauses. Große Fensterflächen sorgen für ein angenehmes Raumgefühl und schaffen eine fließende Verbindung in den Außenbereich.



Ein besonderes Highlight: Von sämtlichen Wohn- und Schlafräumen aus gelangen Sie direkt in den rund 110 m² großen Eigengarten mit angeschlossenen Terrassen von weiteren ca. 10 m². Ob Frühstück im Freien, entspannte Abende oder Platz für Familie und Freunde – hier entsteht ein echtes Wohngefühl mit Hauscharakter.



Die Wohnung verfügt über drei gut geschnittene Schlafzimmer mit je ca. 10 m², sowie einen zusätzlichen Abstellraum mit dem WM Anschluss. Das Badezimmer ist modern ausgestattet mit Dusche und hat ebenfalls einen Ausgang in den Garten. Ergänzend steht ein separates WC zur Verfügung.



Eine seltene Gelegenheit für alle, die Garten lieben und 4 leistbare Zimmer brauchen!



Wohnfläche: ca. 80,13 m² + Terrasse: ca. 10 m² + Garten: ca. 106,53 m² + Kellerabteil 



Kaufpreis: € 490.000,-



KP Garage (optional): € 17.000,-



Kalkulierte Betriebskosten: € 2,-/m² zzgl. Ust. 



Provision: 3% zzgl. 20% Ust.





Vereinbaren Sie heute noch einen Termin - wir beraten Sie gerne und zeigen Ihnen alle verfügbaren Einheiten!



www.schantl-ith.at



Bei konkretem Interesse senden wir Ihnen sehr gerne weiterführende Dokumente zu, wie:



o Grundbuchauszug



o Wohnungseigentumsvertrag



o Nutzwertgutachten



o Eigentümerversammlungsprotokoll (Falls vorhanden) etc...





Unser Service für Sie: Wenn Sie sich für diese Immobilie entschieden haben, begleiten wir Sie gerne vom Kaufanbot weg inkl. Klärung von Sonderwünschen und der Vertragsunterzeichnung über die Wohnungsübergabe bis hin zu diversen Ummeldungen wie Strom und Gas. Entsprechende Formulare oder auch Meldezettel stellen wir Ihnen sehr gerne zur Verfügung.



Gerne unterstützen wir Sie auch bei der Finanzierung Ihres Traumobjekts und finden mit unseren langjährigen Partnern die besten Konditionen für Sie.



www.schantl-ith.at


Wir weisen darauf hin, dass zwischen dem Vermittler und dem zu vermittelnden Dritten ein familiäres oder wirtschaftliches Naheverhältnis besteht.


Der Vermittler ist als Doppelmakler tätig.

Infrastruktur / Entfernungen

Gesundheit
Arzt <500m
Apotheke <250m
Klinik <4.500m
Krankenhaus <6.750m

Kinder & Schulen
Schule <500m
Kindergarten <500m
Universität <1.000m
Höhere Schule <4.000m

Nahversorgung
Supermarkt <500m
Bäckerei <500m
Einkaufszentrum <500m

Sonstige
Bank <250m
Geldautomat <500m
Post <250m
Polizei <500m

Verkehr
Bus <250m
U-Bahn <4.000m
Straßenbahn <5.000m
Bahnhof <4.000m
Autobahnanschluss <7.250m

Angaben Entfernung Luftlinie / Quelle: OpenStreetMap

Eckdaten Objektnr. 296608

Art: Wohnung
Land: Österreich
Baujahr: 2026
Zustand: Erstbezug
Alter: Neubau
Kaufpreis: 490.000,00
Kaufpreis / m²: 5.115,89 €
Provision: 3% des Kaufpreises zzgl. 20% USt.
Wohnfläche: 80,13 m²
Nutzfläche: 95,78 m²
Zimmer: 4
Bäder: 1
WC: 1
Terrassen: 1
Garten: 106,53 m²
Heizwärmebedarf:  B  36,78 kWh/m²a
fGEE:  A  0,81
Immobilie merken Exposé

Ausstattung

Parkett, Estrichboden, Fliesen, Fußbodenheizung, Wohnküche / offene Küche, Personenaufzug, Südbalkon, Westbalkon, Dusche, Bad mit Fenster, Kabel/Satelliten-TV, Tiefgarage


Immobilie anfragen


Ihre persönliche Beratung

Schantl ITH Immobilientreuhand GmbH

Mark Prettenthaler

Schantl ITH Immobilientreuhand GmbH

T +43 6643070009

H +43 650 56 75 611