Gepflegtes, schönes Einfamilienhaus – Ihr neues Zuhause in Wolfsberg / Reding

Haus - Einfamilienhaus, 9400 Wolfsberg , 10.-Oktober-Straße 33


Beschreibung der Immobilie

Gepflegtes, schönes Einfamilienhaus – Ihr neues Zuhause in Wolfsberg / Reding

Gepflegtes, schönes Einfamilienhaus – Ihr neues Zuhause in Wolfsberg / Reding



Im Ortsteil Reding bei Wolfsberg erwartet Sie dieses gepflegte, laufend modernisierte Einfamilienhaus mit gemütlichem Wohnkomfort, hochwertiger Ausstattung und beeindruckendem Blick auf die umliegende Berglandschaft. Das ca. 1972/1973 in hochwertiger Bauweise errichtete Haus befindet sich auf einem pflegeleichten Grundstück mit einer Fläche von ca. 522 m². Mit einer Wohnfläche von ca. 150 m² sowie einem ca. 80 m² großem, hochwertig ausgebautem Untergeschoss bietet die Immobilie viel Platz zum Leben, Entspannen und Wohlfühlen und auch die Möglichkeit für Wohnen und Arbeiten unter einem Dach.



Dieses Haus überzeugt durch seine effiziente, durchdachte Raumstruktur, die komfortables Wohnen ermöglicht und sich ideal für Singles, Paare sowie kompakte Haushalte/Familien eignet, die ein Zuhause für eine kleine Personenanzahl suchen, ohne dabei auf Wohnkomfort zu verzichten.



Die Raumaufteilung ist wie folgt:



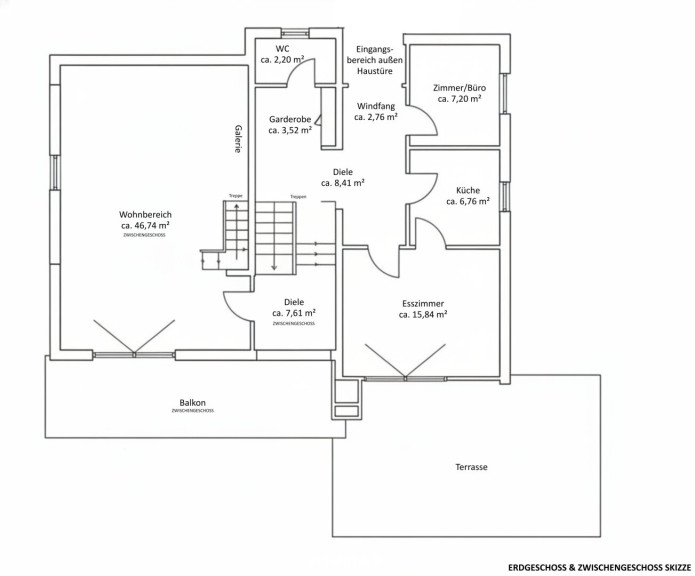
Erdgeschoss:



  • Windfang
  • Diele
  • Garderobe
  • Küche
  • Esszimmer
  • kleines Büro/Zimmer
  • separates WC


Zwischengeschoss:



  • Diele
  • Wohnbereich inklusive Galerie


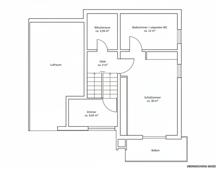
Obergeschoss:



  • Diele
  • (Schlaf-)Zimmer
  • kleines Zimmer
  • Badezimmer en Suite
  • separates WC
  • Wäscheraum


Untergeschoss:



  • Garage
  • Vorkeller
  • Technikraum
  • Lagerraum
  • Wellness-/Fitnessbereich
  • Hobbyraum
  • Abstellraum


Ein Highlight ist der großzügige Wohnbereich mit Galerie im Zwischengeschoss, der durch seine offene Gestaltung und viel Licht eine besonders angenehme Wohnatmosphäre schafft. Von hier aus gelangen Sie auf einen der Balkone und vom Esszimmer im Erdgeschoss aus auf die Terrasse und in den Garten. Weiters befinden sich noch Küche, Vorraum mit Diele und Garderobe, Zimmer/Büro sowie ein WC auf dieser Ebene. Insgesamt stehen ca. 46 m² Balkon- und Terrassenflächen zur Verfügung – ideal für entspannte Stunden im Freien.



Die Raumaufteilung ist durchdacht und bietet sowohl gemütliche Rückzugsorte als auch großzügige Gemeinschaftsbereiche. Im Obergeschoss befindet sich ein großes Schlafzimmer mit Zugang zum Südbalkon sowie ein hochwertig ausgestattetes Badezimmer mit Whirlpool-Badewanne, Dusche, Bidet und Doppelwaschbecken. Ergänzt wird die Etage durch einen Wäscheraum, ein separates WC sowie einen Vorraum. Über einen Treppenaufgang gelangen Sie in ein weiteres, kleines Zimmer mit Glasfronten.



Im Untergeschoss erwartet Sie ein ca. 80 m² großer, hochwertiger Bereich. Besonders hervorzuheben ist der komfortable Wellnessraum samt „Klafs“-Sauna, Solarium, Dusche, Waschbecken und Ruhezone – perfekt für entspannte Stunden im eigenen Zuhause. Zusätzlich stehen ein Hobby-/Abstellraum, Lagerflächen, Technikräume sowie eine Garage für ein Fahrzeug zur Verfügung.



Beheizt wird die Immobilie mittels Strom-Direktheizung über Fußbodenheizung, außer im Wohnbereich. Die Warmwasseraufbereitung erfolgt mittels Luftwärmepumpe.



In den vergangenen Jahrzehnten wurde das Haus laufend gepflegt und modernisiert. 1995 erfolgten Modernisierungen im Innenbereich des Hauses in allen Bereichen wie Erneuerung der Sanitärbereiche, Neuausstattung, Diele, Esszimmer und Schlafzimmer mit hochwertigem Mobiliar und Tischlereinbauten.



Besonders hervorzuheben ist die umfassende thermische Sanierung in den Jahren 2013/2014 mit Vollwärmeschutz (ca. 14 cm Stärke), neuen Fenstern mit 3-fach-Verglasung und teilweise elektrischen Raffstores sowie einer Warmwasser-Wärmepumpe. Eine Photovoltaikanlage mit 5,57 kWp-Leistung sorgt seit 2017 für eine nachhaltige Energieversorgung und zusätzliche Einnahmen durch einen bestehenden Einspeisevertrag. Modernisierungsarbeiten wurden in den vergangenen Jahren unter anderem bei den Zimmern, dem Stiegenhaus und der Einfriedung vorgenommen.



Zur hochwertigen Ausstattung zählen unter anderem maßgefertigte Tischlereinbauten, eine stilvolle Massivholztreppe, moderne Balkonverkleidungen aus Granit mit Glas- und Edelstahlgeländern sowie eine hochwertige HiFi-Hausanlage von Bang & Olufsen für alle Wohnräume.



Der Außenbereich bietet eine kleine Gartenfläche, eine großzügige Terrasse sowie zwei sonnige Balkone mit herrlichem Ausblick. Das Grundstück ist überschaubar und pflegeleicht – ideal für alle, die das Leben im Grünen genießen möchten, ohne viel Zeit in Gartenarbeit zu investieren. Zusätzlich stehen eine Garage im Untergeschoss mit elektrischem Tor sowie ein Carport zur Verfügung.



Die Lage der Immobilie ist zentral und vereint Ruhe und gute Infrastruktur: Einkaufsmöglichkeiten, Schulen, Ärzte und weitere Einrichtungen des täglichen Bedarfs sind in kurzer Zeit erreichbar, in nur ca. 7 Gehminuten gelangen Sie zum nächsten Bahnhof und in ca. 10 Minuten zur nächsten Bushaltestelle, zum Kino und ins Freibad. Mit dem Auto ist das Zentrum von Wolfsberg in ca. 4 Minuten und zu Fuß in ca. 20 Minuten zu erreichen. Ca. 5 Minuten von Ihrem künftigen Zuhause entfernt befindet sich die Autobahnauffahrt, von dort aus gelangen Sie in ca. 40 Minuten nach Klagenfurt und in ca. 1 Stunde nach Graz. Auch der Bahnhof Lavanttal mit Anschluss an die Koralmbahn liegt nur ca. 15 Fahrminuten entfernt, der ideale Ausgangspunkt für Berufspendler nach Klagenfurt und Graz.



Dieses gemütliche Einfamilienhaus überzeugt durch seinen gepflegten Zustand, großzügige Wohnflächen, einen privaten Wellnessbereich sowie eine traumhafte Aussicht. Ein ideales Zuhause für alle, die komfortables Wohnen in naturnaher Umgebung schätzen.



Überzeugen Sie sich gerne bei einer Besichtigung von dieser schönen Immobilie. Wir freuen uns auf Ihre Anfrage!



Profitieren Sie hier von den aktuellen Angeboten an Förderungen für Sanierungen vom Land. Gerne können wir für Sie einen Beratungstermin mit unserem Energieberater koordinieren, damit Sie sich näher über die Fördermöglichkeiten informieren können.



Benötigen Sie Unterstützung bei der Finanzierung der Immobilie? Wir kooperieren mit ausgewählten, unabhängigen Finanzierungsanbietern und können Ihnen gerne den Kontakt vermitteln, sodass Sie schnell, einfach und unverbindlich Finanzierungsvorschläge erhalten.



Die in den angegebenen Heizkosten enthaltenen Beträge umfassen sowohl den Stromverbrauch für die Beheizung der Immobilie als auch den allgemeinen Haushaltsstrom.



Für weitere Informationen bzw. Besichtigungen stehen wir Ihnen jederzeit gerne zur Verfügung. Wir bitten um Ihr Verständnis, dass wir Besichtigungen nur mit Angabe Ihrer vollständigen Kontaktdaten vornehmen, da wir dem Abgeber gegenüber nachweisverpflichtet sind.



Alle Angaben laut Abgeber - Irrtümer vorbehalten.



Nebenkosten Kaufvertrag:



3,5 % Grunderwerbsteuer



1,1 % Grundbuchseintragungsgebühr



Kaufvertragserrichtung und Treuhandschaft lt. Tarifordnung des Vertragserrichters



Provision 3 % vom Kaufpreis zzgl. MwSt.



Dieses Angebot ist unverbindlich, freibleibend, Zwischenverwertung vorbehalten.


Der Vermittler ist als Doppelmakler tätig.

Infrastruktur / Entfernungen

Gesundheit
Arzt <550m
Apotheke <475m
Krankenhaus <750m

Kinder & Schulen
Schule <375m
Kindergarten <500m
Höhere Schule <625m

Nahversorgung
Supermarkt <425m
Bäckerei <275m
Einkaufszentrum <1.700m

Sonstige
Bank <475m
Geldautomat <475m
Post <1.500m
Polizei <725m

Verkehr
Bus <250m
Autobahnanschluss <1.900m
Bahnhof <300m
Flughafen <1.775m

Angaben Entfernung Luftlinie / Quelle: OpenStreetMap

Eckdaten Objektnr. 3754/948

Art: Haus - Einfamilienhaus
Land: Österreich
Baujahr: 1972
Zustand: Gepflegt
Möbliert: Voll
Kaufpreis: 340.000,00
Provision: 3% des Kaufpreises zzgl. 20% USt.
Betriebskosten: 78,01 €
Heizkosten: 159,00 €
Wohnfläche: 150,00 m²
Grundstücksfl.: 522,00 m²
Bäder: 1
WC: 2
Balkone: 2
Terrassen: 1
Keller: 80,00 m²
Heizwärmebedarf:  C  86,00 kWh/m²a
fGEE:  D  1,84
Immobilie merken Exposé

Ausstattung

Elektro, Fußbodenheizung, Einbauküche, Bad mit Fenster, Badewanne, Dusche, Kabel/Satelliten-TV, Garage, Sauna, Wasch/Trockenraum


Immobilie anfragen


Ihre persönliche Beratung

RE/MAX Friends

Peter Dohr

RE/MAX Friends

T +43 463 503 944

H +43 664 266 32 96