Exklusive Penthouse-Wohnungen | Terrassen | Dachterrassen | 360° Rundumblick | Toplage 1180 | Nähe Kutschkermarkt

Wohnung - Penthouse, 1180 Wien


In begehrter Lage des 18. Bezirks vereint diese Wohngegend urbanes Lebensgefühl mit entspanntem Grün. Der beliebte Kutschkermarkt, charmante Cafés, Boutiquen und vielfältige Nahversorger befinden sich in unmittelbarer Nähe. Die Anbindung ist hervorragend – mit der U6 (Währinger Straße | Volksoper), der S-Bahn, Straßenbahnlinien sowie mehreren Busverbindungen. Für erholsame Stunden im Freien laden der Türkenschanzpark, der Pötzleinsdorfer Schlosspark und der nahegelegene Schubertpark zum Verweilen ein.

Beschreibung der Immobilie

Exklusive Penthouse-Wohnungen | Terrassen | Dachterrassen | 360° Rundumblick | Toplage 1180 | Nähe Kutschkermarkt

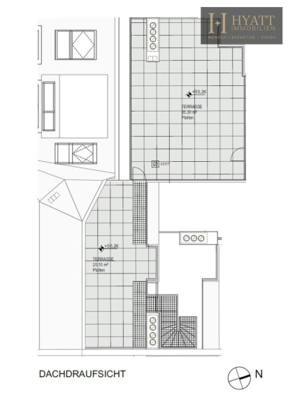
Diese außergewöhnliche Penthouse-Maisonette vereint Großzügigkeit, Privatsphäre und höchste Wohnqualität auf insgesamt ca. 200 m² Wohnfläche und ca. 82 m² Freiflächen. Auf zwei Etagen erstreckt sich ein durchdachtes Raumkonzept mit bis zu fünf Zimmern, mehreren begehbaren Schrankräumen, drei WCs, zwei Badezimmern – und einer Dachterrasse mit spektakulärem Rundumblick über ganz Wien.



Ein echtes Unikat innerhalb des Projekts – für alle, die das Besondere suchen.



RAUMAUFTEILUNG (ca. 200 m² Wohnfläche):




  • Großzügiger Wohn-Essbereich mit direktem Zugang zur hofseitigen Terrasse (ca. 26,8 m²)



  • Masterbedroom mit eigenem Bad und begehbarem Schrankraum



  • Zweites Schlafzimmer mit begehbarem Schrank und eigenem Arbeitszimmer



  • Drittes Schlafzimmer klassisch nutzbar



  • Im oberen Bereich zusätzlich ein Raum mit Potenzial für ein viertes Schlafzimmer oder Atelier



  • Zwei Badezimmer (jeweils mit Badewanne und Dusche)



  • Drei WCs 



  • Dachterrasse mit ca. 55,4 m² und beeindruckendem 360-Grad-Blick



  • 2 praktische Einlagerungsräume ca. 23 m²




Gesamtnutzfläche: ca. 282 m² inkl. Freiflächen
Wohnnutzung auf höchstem Niveau – vereint mit urbanem Weitblick



Garagenplatz optional um € 60.000,– verfügbar.



Die Wohnung ist Teil eines exklusiven Dachgeschossprojekts in einem stilvollen Wiener Altbau mit nur sieben Einheiten – gelegen in unmittelbarer Nähe zum Kutschkermarkt, Türkenschanzpark, Schubertpark und Aumannplatz im 18. Bezirk.






Wir weisen darauf hin, dass zwischen dem Vermittler und dem zu vermittelnden Dritten ein familiäres oder wirtschaftliches Naheverhältnis besteht.


Der Vermittler ist als Doppelmakler tätig.

Infrastruktur / Entfernungen

Gesundheit
Arzt <500m
Apotheke <500m
Klinik <500m
Krankenhaus <500m

Kinder & Schulen
Schule <500m
Kindergarten <500m
Universität <500m
Höhere Schule <500m

Nahversorgung
Supermarkt <500m
Bäckerei <500m
Einkaufszentrum <1.500m

Sonstige
Geldautomat <500m
Bank <500m
Post <500m
Polizei <1.000m

Verkehr
Bus <500m
U-Bahn <1.000m
Straßenbahn <500m
Bahnhof <1.000m
Autobahnanschluss <2.500m

Angaben Entfernung Luftlinie / Quelle: OpenStreetMap

Eckdaten Objektnr. 1945/267

Art: Wohnung - Penthouse
Land: Österreich
Baujahr: 2025
Zustand: Erstbezug
Alter: Altbau
Kaufpreis: 2.035.000,00
Provision: 3% des Kaufpreises zzgl. 20% USt.
Betriebskosten: 348,94 €
MwSt Gesamt: 38,35 €
Wohnfläche: 199,60 m²
Nutzfläche: 281,70 m²
Gesamtfläche: 281,70 m²
Zimmer: 4
Bäder: 2
WC: 3
Terrassen: 2
Keller: 22,82 m²
Heizwärmebedarf:  B  40,00 kWh/m²a
fGEE:  A++  0,50
Immobilie merken Exposé

Ausstattung

Parkett, Fliesen, Zentralheizung, Fußbodenheizung, Personenaufzug, Ostbalkon, Südbalkon, Westbalkon, Bad mit Fenster, Badewanne, Dusche, Kabel/Satelliten-TV, Garage, Tiefgarage


Immobilie anfragen


Ihre persönliche Beratung

Hyatt Immobilien GmbH

Sia Hyatt

Hyatt Immobilien GmbH

T +43 1 9561781

H +43 664 140 47 04