Repräsentative Gründerzeitvilla mit Erweiterungsbau

Haus - Einfamilienhaus, 1190 Wien


Sievering

Beschreibung der Immobilie

Repräsentative Gründerzeitvilla mit Erweiterungsbau

Zum Verkauf gelangt diese gekuppelte Villa auf einem steinverkleideten Sockel mit charakteristischer gründerzeitlicher Fassadengestaltung und einem eleganten Mansardendach. Die ursprüngliche Villa wurde im 19. Jahrhundert errichtet und im Jahr 2003 umfassend generalsaniert. Gartenseitig erfolgte eine architektonisch harmonische Erweiterung durch einen Neubau, der zusätzliche Wohnqualität schafft.



Die Liegenschaft beeindruckt durch ihre großzügige Raumstruktur, stilvolle Altbaudetails sowie vielfältige Nutzungsmöglichkeiten. Insgesamt bietet das Haus ein großzügiges Flächenangebot und eignet sich sowohl als repräsentativer Wohnsitz als auch für kombinierte Wohn- und Arbeitskonzepte.



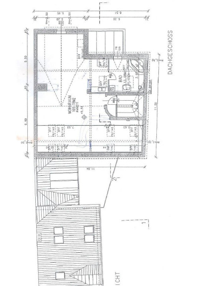
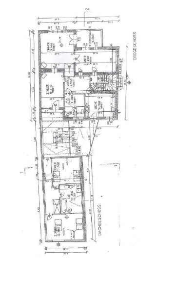
Flächenaufstellung / Raumaufteilung



Hochparterre (ca. 199,78 m² Wohnfläche zzgl. ca. 20,62 m² Terrassenfläche)



  • 6 Zimmer (5 Zimmer plus ca. 26 m² Wintergarten)
  • 1 Badezimmer
  • 2 separate WCs


Dachgeschoss (ca. 118,86 m²)



  • Loftartiger, großzügiger Raum mit abgeteiltem Schrankraum (ca. 120 m², teilbar)
  • 1 Badezimmer mit WC


Gästewohnung (ca. 69,38 m²)



Spa-Bereich (ca. 109,04 m²)



Garage (ca. 33,46 m²)



  • Platz für 2 PKWs


Bei der gegenständlichen Liegenschaft handelt es sich um eine sanierungsbedürftige Altbauvilla mit großem Entwicklungspotenzial. Eine aufrechte Baubewilligung liegt bereits vor. Eine Abbruchgenehmigung für den Bestand besteht jedoch nicht.



Für nähere Informationen oder einen Besichtigungstermin stehe ich jederzeit zur Verfügung!



Bernhard FRIEDRICH, MSc
+43 660 117 9020

bf@finallyhome.at


Wir weisen darauf hin, dass zwischen dem Vermittler und dem zu vermittelnden Dritten ein familiäres oder wirtschaftliches Naheverhältnis besteht.


Der Vermittler ist als Doppelmakler tätig.

Infrastruktur / Entfernungen

Gesundheit
Arzt <500m
Apotheke <500m
Klinik <1.500m
Krankenhaus <1.500m

Kinder & Schulen
Schule <500m
Kindergarten <500m
Universität <1.000m
Höhere Schule <1.500m

Nahversorgung
Supermarkt <500m
Bäckerei <500m
Einkaufszentrum <3.000m

Sonstige
Geldautomat <500m
Bank <500m
Post <1.000m
Polizei <500m

Verkehr
Bus <500m
U-Bahn <2.500m
Straßenbahn <1.000m
Bahnhof <1.500m
Autobahnanschluss <3.000m

Angaben Entfernung Luftlinie / Quelle: OpenStreetMap

Eckdaten Objektnr. 1819/68

Art: Haus - Einfamilienhaus
Land: Österreich
Baujahr: 1900
Alter: Altbau
Kaufpreis: 3.600.000,00
Provision: 3% des Kaufpreises zzgl. 20% USt.
Nutzfläche: 556,41 m²
Grundstücksfl.: 991,00 m²
Zimmer: 13
Bäder: 4
WC: 6
Immobilie merken Exposé

Ausstattung

Parkett, Fliesen, Gas, Zentralheizung, Einbauküche, Garage, Sauna, Swimmingpool


Immobilie anfragen


Ihre persönliche Beratung

Bernhard Friedrich

finallyHOMEreal GmbH

T +43 660 117 9020