Panorama-Offices Hietzing ganze Etage mit ca. 405m2, Erstbezug nach Renovierung

Büro / Praxis , 1130 Wien


Beschreibung der Immobilie

Panorama-Offices Hietzing ganze Etage mit ca. 405m2, Erstbezug nach Renovierung

Die Panorama-Offices Hietzing bieten ab sofort eine ganze Etage im 1. Stock des modernen Bürohauses zur Miete. Das 4-geschossige Gebäude befindet sich an der Schnittstelle von Lainzerstraße und Hietzinger Haupstrasse mit bester umliegender Infrastruktur sowie öffentlicher Anbindung im direkten Umfeld des Schönbrunner Schlossparks.



Die Fassade des Hauses wurde gerade saniert und von aussen mit eleganter neuer Beleuchtung versehen. Ebenfalls wurde ein Anschluss an Glasfaser Breitbandinternet geschaffen.



Im Erdgeschoss des Gebäudes befindet sich das beliebte Restaurant Marios, welches gerade ein komplettes Facelift erhielt. Gleich vis-á-vis des Hietzinger "Landmarks" sind das Plachutta Stammhaus Hietzing sowie das Cafe Dommayer. 



Die Bürofläche verfügt über grosszügige teils bodentiefe Fensterflächen und ist dadurch rundum natürlich belichtet. Das Office wurde für die künftigen Mieter renoviert. Raumweise Kühlung und teilweise ausliegende Beschattungen sorgen für angenehmes Klima in den warmen Monaten. 



Ein kleiner Balkon, vom Stiegenhaus, direkt vor dem Eingang in das office aus begehbar, kann von den Mietern benutzt werden (zb. Raucherbalkon).



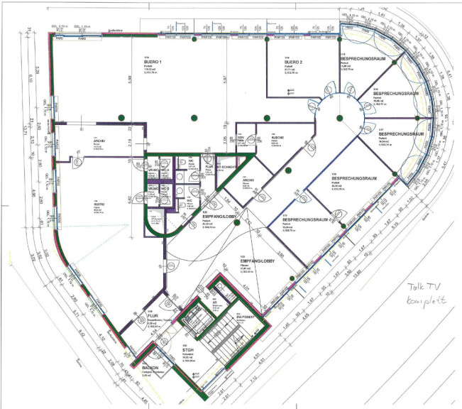
Der Officespace mit einer Gesamtfläche von ca. 405 m2 teilt sich wie folgt auf:



  • Flur
  • Empfangsbereich (teilbar) mit ca. 75,31m2
  • 6 Büroräume zwischen ca. 15 und ca. 22m2
  • 2 große Büroräume (ca. 66,44m2 und 110,42m2)
  • 3 weitere Räume (Archiv, EDV und Abstellraum
  • Küche
  • Sanitärräume mit insgesamt 4 Wcs


Garagenplätze können in der hauseigenen Tiefgarage angemietet werden. Derzeit wären bis zu 4 Stellplätze verfügbar.



Öffentliche Anbindung: U4 Station Hietzing, Bus 56A, 56B, 58A, 58B, Strassenbahnlinien 10,52 und 60.


Wir weisen darauf hin, dass zwischen dem Vermittler und dem zu vermittelnden Dritten ein familiäres oder wirtschaftliches Naheverhältnis besteht.


Der Vermittler ist als Doppelmakler tätig.

Infrastruktur / Entfernungen

Gesundheit
Arzt <500m
Apotheke <500m
Klinik <500m
Krankenhaus <2.000m

Kinder & Schulen
Schule <500m
Kindergarten <1.000m
Universität <1.500m
Höhere Schule <3.000m

Nahversorgung
Supermarkt <500m
Bäckerei <500m
Einkaufszentrum <2.500m

Sonstige
Geldautomat <500m
Bank <500m
Post <500m
Polizei <500m

Verkehr
Bus <500m
U-Bahn <500m
Straßenbahn <500m
Bahnhof <500m
Autobahnanschluss <4.000m

Angaben Entfernung Luftlinie / Quelle: OpenStreetMap

Eckdaten Objektnr. 5045/792

Art: Büro / Praxis
Land: Österreich
Zustand: Neuwertig
Alter: Neubau
Kaltmiete (netto): 6.684,81 €
Kaltmiete: 8.783,43 €
Miete / m²: 16,50 €
Provision: 3 Bruttomonatsmieten zzgl. 20% USt.
Betriebskosten: 2.098,62 €
MwSt Gesamt: 1.756,68 €
Nutzfläche: 405,14 m²
Bürofläche: 405,14 m²
Zimmer: 10
WC: 4
Heizwärmebedarf:  C  73,80 kWh/m²a
fGEE:  C  1,42
Immobilie merken Exposé

Ausstattung

Parkett, Fliesen, Teppichboden, Gas, Etagenheizung, Einbauküche, Personenaufzug, Tiefgarage


Immobilie anfragen


Ihre persönliche Beratung

Katrin Erhart Real Estate & Property e.U.

Katrin Erhart

Katrin Erhart Real Estate & Property e.U.

T + 43 6991 292 0650

H + 43 6991 292 0650