Attraktive Kindergartenfläche in zentraler Lage – 1100 Wien

Büro / Praxis , 1100 Wien


Beschreibung der Immobilie

Attraktive Kindergartenfläche in zentraler Lage – 1100 Wien

Attraktive Kindergartenfläche in zentraler Lage 



In gefragter Lage des 10. Wiener Gemeindebezirks gelangt eine großzügige und vielseitig nutzbare Kindergartenfläche im Erdgeschoss zur Vermarktung.



Die Liegenschaft befindet sich in einer urbanen, gewachsenen Wohngegend im Herzen von Favoriten und überzeugt durch eine ausgezeichnete Infrastruktur sowie eine hohe Nachfrage nach Kinderbetreuungsplätzen.




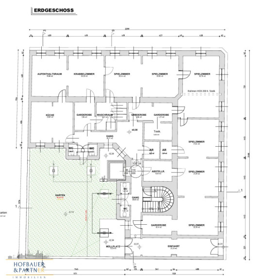
Objektbeschreibung



Der Kindergarten erstreckt sich über das Erdgeschoss und bietet eine Gesamtnutzfläche von ca. 286 m² sowie einen zugeordneten Gartenbereich.



Die Fläche überzeugt durch eine funktionale Raumaufteilung mit mehreren Spiel- und Aufenthaltsräumen, Nebenräumen sowie Sanitärbereichen und eignet sich ideal für den Betrieb einer Kinderbetreuungseinrichtung.



Zusätzlich steht ein innenliegender Gartenbereich zur Verfügung, der den Kindern einen geschützten Außenbereich bietet.



Der Kindergarten verfügt über mehrere Zugänge, darunter einen straßenseitigen Zugang direkt von der Hasengasse sowie weitere Erschließungen über das Stiegenhaus, was eine flexible Nutzung und Organisation ermöglicht.



Der Zustand der Fläche wird als sehr gut beschrieben.




Flächenaufstellung




  • Spielzimmer (mehrere Räume): ca. 20 m² – 32,75 m²



  • Krabbelzimmer: 20,28 m²



  • Aufenthaltsraum: 19,80 m²



  • Küche: 23,33 m²



  • Teeküche: 6,46 m²



  • Waschraum: 10,41 m²



  • Garderoben (mehrere): ca. 4,95 m² – 8,01 m²



  • Gang: 23,53 m²



  • Sanitärbereiche (WC): vorhanden



  • Abstellräume (mehrere): vorhanden




👉 Gesamtfläche: ca. 286,47 m²




Lage & Infrastruktur



Die Immobilie befindet sich im Herzen von Wien-Favoriten, einem der dynamischsten und bevölkerungsreichsten Bezirke Wiens.



Die Umgebung zeichnet sich insbesondere durch folgende Vorteile aus:




  • Dicht besiedeltes Wohngebiet mit hohem Bedarf an Kinderbetreuung



  • Sehr gute öffentliche Verkehrsanbindung (U-Bahn, Bus, Straßenbahn in unmittelbarer Nähe)



  • Umfangreiche Nahversorgung (Supermärkte, Apotheken, Geschäfte des täglichen Bedarfs)



  • Zahlreiche Parks, Spielplätze und Bildungseinrichtungen im Umfeld



  • Zentrale Lage mit schneller Erreichbarkeit der Wiener Innenstadt




Die Lage bietet somit ideale Voraussetzungen für einen nachhaltig erfolgreichen Kindergartenbetrieb.


Hinweis gemäß Energieausweisvorlagegesetz: Ein Energieausweis wurde vom Eigentümer bzw. Verkäufer, nach unserer Aufklärung über die generell geltende Vorlagepflicht, sowie Aufforderung zu seiner Erstellung noch nicht vorgelegt. Daher gilt zumindest eine dem Alter und der Art des Gebäudes entsprechende Gesamtenergieeffizienz als vereinbart. Wir übernehmen keinerlei Gewähr oder Haftung für die tatsächliche Energieeffizienz der angebotenen Immobilie.


Der Vermittler ist als Doppelmakler tätig.

Eckdaten Objektnr. 5498/460

Art: Büro / Praxis
Land: Österreich
Zustand: Gepflegt
Alter: Altbau
Kaltmiete (netto): 3.440,00 €
Kaltmiete: 4.510,00 €
Provision: 3 Bruttomonatsmieten zzgl. 20% USt.
Betriebskosten: 1.070,00 €
Nutzfläche: 286,47 m²
Zimmer: 7
WC: 2
Garten: 117,93 m²
Keller: 10,36 m²
Immobilie merken Exposé

Ausstattung

Einbauküche, Teeküche


Immobilie anfragen


Ihre persönliche Beratung

Hofbauer & Partner Immobilien GmbH

Emre Er

Hofbauer & Partner Immobilien GmbH

H +43 660 50 45 114