Untermiete - 155 m² am Hof

Büro / Praxis , 1010 Wien


Beschreibung der Immobilie

Untermiete - 155 m² am Hof

UNTERMIETE: In einem prächtigen Stilaltbau, in zentraler Lage, gelangt diese kleine Büroeinheit zur Untervermietung. Die Büroräume liegen im 1.Stock mit Lift erreichbar und sind mit einem klassischen Parkettboden ausgestattet.

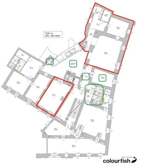
Die Einheit teilt sich in einen zusammenhängenden Bereich bestehend aus 3 Büroräumen, Teeküche, 1 WC und AR auf. 

Zusammen umfasst die eigene Bürofläche ca. 139 m². Allgemein genutzte Flächen wie WC, Gang, Empfangsbereich werden anteilig angerechnet mit ca. 16,25 m², gesamt: 155,88 m².



verfügbare Fläche: 
1.OG, Top 14: 155,88 m²

Nettomiete: € 3.490,75

BK: € 625,36 netto inkl. Heizung



Alle Preise verstehen sich zzgl. 20% Ust.




Durch die Lage zwischen dem Judenplatz und dem Goldenden Quartier ist die Lage sehr gut mit bester Infrastruktur des ersten Bezirks. 

Die öffentliche Erreichbarkeit ist durch die innerstädtlischen Buslinie 1A und 3A sowie die nahe gelegene U3 Station Herrengasse sehr gut. 



Öffentliche Verkehrsanbindung: 
U3 Station Herrengasse

Buslinien: 1A, 3A


Wir weisen darauf hin, dass zwischen dem Vermittler und dem zu vermittelnden Dritten ein familiäres oder wirtschaftliches Naheverhältnis besteht.

Infrastruktur / Entfernungen

Gesundheit
Arzt <500m
Apotheke <500m
Klinik <500m
Krankenhaus <1.000m

Kinder & Schulen
Schule <500m
Kindergarten <500m
Universität <500m
Höhere Schule <500m

Nahversorgung
Supermarkt <500m
Bäckerei <500m
Einkaufszentrum <1.000m

Sonstige
Geldautomat <500m
Bank <500m
Post <500m
Polizei <500m

Verkehr
Bus <500m
U-Bahn <500m
Straßenbahn <500m
Bahnhof <500m
Autobahnanschluss <3.500m

Angaben Entfernung Luftlinie / Quelle: OpenStreetMap

Eckdaten Objektnr. 7496

Art: Büro / Praxis
Land: Österreich
Baujahr: 1803
Alter: Altbau
Kaltmiete (netto): 3.490,75 €
Kaltmiete: 4.116,11 €
Provision: 3 BMM zzgl. 20% Ust
Betriebskosten: 625,36 €
MwSt Gesamt: 823,22 €
Nutzfläche: 155,88 m²
Bürofläche: 139,63 m²
Zimmer: 6
Heizwärmebedarf:  C  89,00 kWh/m²a
fGEE:  C  1,45
Immobilie merken Exposé

Ausstattung

Parkett, Fernwärme, Personenaufzug, Teeküche


Immobilie anfragen


Ihre persönliche Beratung

Colourfish Real Estate Immobilienmakler GmbH

Andrea Fiedler

Colourfish Real Estate Immobilienmakler GmbH

T +43 664 468 56 10

H +43 664 468 56 10