Leistbare Familienwohnung mit kleinem Balkon mitten im Grätzl

Wohnung , 1150 Wien


Die Fünfhausgasse überzeugt durch ihre exzellente Verkehrsanbindung, vollständige Nahversorgung und eine lebendige urbane Atmosphäre in einem Bezirk mit klarem Aufwertungspotenzial. Der Standort ist besonders geeignet für junge Familien. Im Herzen des 15. Bezirks, dem historischen Stadtteil Fünfhaus verbindet die Fünfhausgasse die Gumpendorf mit der Schmelz. Der Bezirk erlebt seit Jahren eine spürbare Aufwertung: Vor allem jüngere Bewohner und Familien schätzen die bunte, attraktive Urbanität des Grätzls (vor allem rund um die Äußere Mariahilferstraße bis hin zum Schwendermarkt). Die U6-Station Gumpendorfer Straße ist in nur 3 Minuten zu Fuß erreichbar, ebenso stehen die Buslinien 10A, 12A, 57A und 7A direkt in der Nähe zur Verfügung. Damit ist die Anbindung an den Westbahnhof (ca. 2 U-Bahn-Stationen), die Mariahilfer Straße und die Wiener Innenstadt ausgezeichnet. Auch Straßenbahn und Bahnhof sind in unter 500 Meter erreichbar. Die Wiener Stadthalle als bedeutendstes Konzert- und Veranstaltungszentrum Österreichs ist in ca. 15 Minuten zu Fuß erreichbar. Für sportliche Aktivitäten stehen der ASKÖ Freizeitpark Schmelz, die Fritz-Grassinger-Halle und das Universitätssportinstitut (USI) zur Verfügung. Spaziergänge entlang des Wienflusses oder im Sechshauserpark ergänzen das Freizeit­angebot.

Beschreibung der Immobilie

Leistbare Familienwohnung mit kleinem Balkon mitten im Grätzl

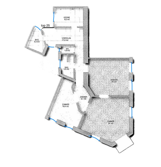
Eine großzügige und gepflegte 3-Zimmer-Wohnung bietet auf einer Wohnfläche von 116,27 m² plus Balkon ausreichend Platz für Familien. Der durchdachte Grundriss umfasst neben den lichtdurchfluteten Zimmern eine separate Küche und zwei praktische Badezimmer sowie eine separate Gästetoilette.  



Die liebevoll gepflegte Wohnung sucht neue Besitzer - im 3.OG (ohne Lift) haben Sie einen wunderbaren süd-west Blick über die Dächer Wiens und ein tägliches Sportprogramm inklusive.



Die Bilder sind mit KI visualisiert.




Die Raumaufteilung im Detail:



  • Vorraum
  • Badezimmer mit Fenster
  • Moderne, vollausgestattete Küche 
  • Wohn- und Esszimmer mit Balkon 
  • zwei Schlafzimmer 
  • Hauswirtschaftsraum (Abstellraum mit WC, Waschmaschinenanschluss und Waschbecken)
  • Gäste WC
  • Kellerabteil 


NOCH BIS Ende Juni von der GEBÜHRENBEFREIUNG bis 500.000€ profitieren und Geld sparen!


Wir weisen darauf hin, dass zwischen dem Vermittler und dem zu vermittelnden Dritten ein familiäres oder wirtschaftliches Naheverhältnis besteht.

Infrastruktur / Entfernungen

Gesundheit
Arzt <500m
Apotheke <500m
Klinik <500m
Krankenhaus <1.000m

Kinder & Schulen
Schule <500m
Kindergarten <500m
Universität <500m
Höhere Schule <1.500m

Nahversorgung
Supermarkt <500m
Bäckerei <500m
Einkaufszentrum <1.000m

Sonstige
Geldautomat <1.000m
Bank <1.000m
Post <500m
Polizei <500m

Verkehr
Bus <500m
U-Bahn <500m
Straßenbahn <500m
Bahnhof <500m
Autobahnanschluss <4.000m

Angaben Entfernung Luftlinie / Quelle: OpenStreetMap

Eckdaten Objektnr. 953

Art: Wohnung
Land: Österreich
Baujahr: 1900
Zustand: Gepflegt
Alter: Altbau
Kaufpreis: 459.000,00
Provision: 3% des Kaufpreises zzgl. 20% USt.
Betriebskosten: 268,32 €
MwSt Gesamt: 26,83 €
Wohnfläche: 116,27 m²
Zimmer: 3,50
Bäder: 1
WC: 2
Balkone: 1
Keller: 4,00 m²
Heizwärmebedarf:  C  209,00 kWh/m²a
fGEE:  C  3,19
Immobilie merken Exposé

Ausstattung

Parkett, Fliesen, Laminatboden, Gas, Etagenheizung, Einbauküche, Bad mit Fenster, Dusche


Immobilie anfragen


Ihre persönliche Beratung

IMMOROHR Immobilien GmbH

Viola Dollinger

Immorohr Immobilien Ges.m.b.H

T +43 664 889 859 43

H +43 664 889 859 43