Trendige Wohnung im Stuwerviertel, nahe Prater & Vorgartenmarkt

Wohnung , 1020 Wien , Wohlmutstraße


Vorgartenmarkt, Stuwerlviertel, Leopoldau, Messe Prater, Praterstern, Prater, Donauinsel

Beschreibung der Immobilie

Trendige Wohnung im Stuwerviertel, nahe Prater & Vorgartenmarkt

Zur Miete steht eine gemütliche, 2015 generalsanierte 2-Zimmer-Wohnung in einem gepflegten Wohnhaus, gelegen im 2. Liftstock und nur wenige Schritte vom beliebten Vorgartenmarkt entfernt.



Die Lage könnte kaum besser sein: Im aufstrebenden und begehrten Stuwerviertel, zwischen der U1 Vorgartenstraße und der U2 Messe-Prater, profitieren Sie von einer hervorragenden öffentlichen Anbindung und schnellen Wegen in alle Teile der Stadt. Der weitläufige Prater – Wiens größtes innerstädtisches Erholungs- und Freizeitareal – liegt praktisch vor der Haustüre und lädt zu Sport, Bewegung und entspannten Auszeiten im Grünen ein.



Auch kulinarisch gibt es hier viel zu entdecken: Die bekannte Mochi-Ramen-Bar am Vorgartenmarkt sowie die Pizzeria Il Mercato sorgen für eine lebendige Food-Szene direkt ums Eck und machen die Wohngegend besonders attraktiv.



Die Wohnung wird größtenteils unmöbliert vermietet.



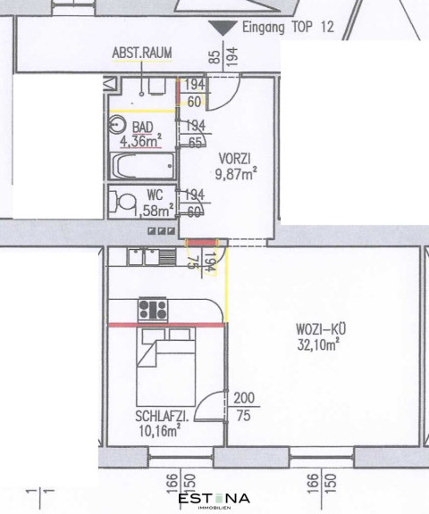
Raumaufteilung:
- großer Vorraum

- geräumiges Wohnzimmer mit optisch abgetrennter Küche

- Schlafzimmer

- Badezimmer mit Badewanne, Waschbecken und WM-Anschluss

- separate Toilette



Lage und Infrastruktur:
Die Wohnung in der Wohlmutstraße überzeugt durch ihre hervorragende Lage im Stuwerviertel zwischen der U1-Station Vorgartenstraße und U2-Station Messe-Prater. Beide sind in nur wenigen Minuten bequem zu Fuß erreichbar. Gleichzeitig befindet sich der charmante Vorgartenmarkt ganz in der Nähe und bietet vielfältige Einkaufsmöglichkeiten. Der Grüne Prater liegt ebenfalls fußläufig und lädt zu erholsamen Spaziergängen und Freizeitaktivitäten ein. Eine ideale Adresse für alle, die urbanes Leben, beste Anbindung und nahen Zugang zur Natur verbinden möchten.



Kosten:
Miete: € 1.070,00 inkl. BK und 10% USt.

Kaution: € 3.210,00



Für weitere Fragen oder persönliche Besichtigungswünsche wenden Sie sich bitte an Herrn Benedikt Wawra unter wawra@estina.at oder mobil unter 0676 331 85 44. 


Der Immobilienmakler erklärt, dass er – entgegen dem in der Immobilienwirtschaft üblichen Geschäftsgebrauch des Doppelmaklers – einseitig nur für den Vermieter tätig ist.

Eckdaten Objektnr. 26637

Art: Wohnung
Land: Österreich
Baujahr: 1959
Alter: Neubau
Gesamtmiete: 1.070,00
Kaltmiete (netto): 1.070,00 €
Kaltmiete: 1.070,00 €
Provision: Gemäß Erstauftraggeberprinzip bezahlt der Abgeber die Provision.
Wohnfläche: 58,07 m²
Zimmer: 2
Bäder: 1
WC: 1
Heizwärmebedarf:  D  105,08 kWh/m²a
fGEE:  G  4,57
Immobilie merken Exposé

Ausstattung

Fliesen, Parkett, Gas, Etagenheizung, Einbauküche, Wohnküche / offene Küche, Personenaufzug, Badewanne


Immobilie anfragen


Ihre persönliche Beratung

ESTINA Immobilien GmbH

Benedikt Wawra

WH2 Immobilienverwertungs GmbH

H +43 676 331 85 44