Flexibel beplanbarer Showroom / Bürofläche mit Straßenzugang
Büro / Praxis
- Bürofläche,
1220
Wien
Beschreibung der Immobilie
Flexibel beplanbarer Showroom / Bürofläche mit Straßenzugang
BESCHREIBUNGZur Vermietung gelangt eine attraktive Büro- bzw. Geschäftsfläche im Erdgeschoss des markanten Neubauprojekts DC Flats in der Wiener Donau City. Die Liegenschaft überzeugt durch ihre zeitgemäße Architektur, hochwertige Bauausführung sowie eine hervorragende Lage in einem der dynamischsten Business-Standorte Wiens.
Das Objekt befindet sich in unmittelbarer Nähe zu internationalen Unternehmen, modernen Bürogebäuden sowie zahlreichen Nahversorgern und Gastronomiebetrieben. Die ausgezeichnete Infrastruktur und die hohe Frequenz im Umfeld bieten ideale Voraussetzungen für eine nachhaltige geschäftliche Nutzung.
Die Bürofläche im Erdgeschoss verfügt über ein flexibles Raumkonzept und eignet sich hervorragend für klassische Büronutzung, Dienstleistungsbetriebe oder showroomartige Konzepte. Großzügige Raumstrukturen sowie moderne Gebäudetechnik schaffen ein professionelles und repräsentatives Arbeitsumfeld.
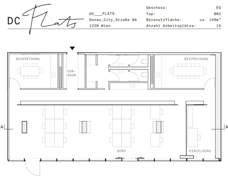
Von Seiten des Hauseigentümers werden die Sanitäreinheiten sowie der Bodenbelag bereitgestellt. Die weitere Ausgestaltung der Fläche – insbesondere allfällige Zwischenwände, CAT-Verkabelung, Bürobeleuchtung sowie eine Teeküche – erfolgt mieterseitig und ermöglicht eine individuelle Anpassung an die jeweiligen betrieblichen Anforderungen. Im Grundrissplan anbei wurde bereits eigentümerseitig ein Belegungsvorschlag für den zukünftigen Mieter vorgeplant.
VERFÜGBARKEIT
ab sofort
VERFÜGBARE MIETFLÄCHEN
4.OG 149 m² € 20,00
Betriebskosten € 2,98
Stellplätze: hauseigene öffentliche Tiefgarage vorhanden
AUSSTATTUNG
Elektrische Schiebetüre
zweiter Zugang mit Gegensprechanlage
getrennte WCs
Heizung und Kühlung über Bauteilaktivierung
Teeküchenanschlüsse
TECHNISCHE DETAILS
Neubau
Energiekennwerte:
Energieklasse: A
Heizwärmebedarf 19,12 kWh/m²a
LAGE UND VERKEHRSANBINDUNG
öffentlicher Verkehr:
U-Bahn: U1 (Kaisermühlen VIC)
Bus: 20B, 90A, 92A
INFRASTRUKTUR
Schulen, Kindergärten und Nahversorgungseinrichtungen wie Banken, Lebensmittelgeschäfte und Cafés sind vorhanden. Weitere Bürohäuser, Tech Gate Vienna, Geschäfte und Restaurants sowie ein vielfältiges Unterhaltungs-, Kultur- und Freizeitangebot bieten eine hervorragende Infrastruktur.
KAUTION
6 Bruttomonatsmieten
PROVISION
Im Falle eines Vertragsabschlusses beträgt unser Honorar lt. Maklerverordnung für Immobilienmakler, BGBI.262 und 297/1996, 3 Bruttomonatsmieten zzgl. 20 % Ust. Weiters möchten wir auf unsere allgemeinen Geschäftsbedingungen und den ausschließlichen Gerichtsstand Wien, Innere Stadt verweisen.
Alle Preisangaben verstehen sich pro Monat, zzgl. der gesetzlichen Ust. und Betriebskosten.
Weitere Objekte finden Sie auch auf unserer Website http://www.colliers.com/
Eckdaten Objektnr. 337/05824
| Art: | Büro / Praxis - Bürofläche |
| Land: | Österreich |
| Baujahr: | 2025 |
| Alter: | Neubau |
| Gesamtmiete: | 4.097,80 € |
| Kaltmiete (netto): | 2.972,00 € |
| Miete / m²: | 20,00 € |
| Provision: | 3BMM |
| Betriebskosten: | 442,83 € |
| MwSt Gesamt: | 682,97 € |
| Nutzfläche: | 148,60 m² |
| WC: | 2 |
| Heizwärmebedarf: | A 19,12 kWh/m²a |
| fGEE: | A 0,80 |
Ausstattung
Fernwärme, Zentralheizung, Personenaufzug
Ihre persönliche Beratung
MA Florian Bogner
Colliers International Immobilienmakler GmbH
T +43 1 535 53 05531
F +43 1 535 53 25