Typisch Wien – nur schöner! Altbau mit Wow-Faktor & Platz zum Leben – Jetzt entdecken!

Wohnung , 1050 Wien , Reinprechtsdorfer Straße


Willkommen in Margareten – einem der spannendsten und vielseitigsten Bezirke Wiens. Die Reinprechtsdorfer Straße verbindet urbanes Flair mit echtem Wiener Charakter: U-Bahn, Bus & Citybike in wenigen Minuten erreichbar Supermärkte, Bäckereien, Apotheken & Ärzte ums Eck Charmante Cafés, internationale Gastronomie & der beliebte Naschmarkt in der Nähe Kurze Wege in den 1. Bezirk, nach Mariahilf & zum Schlosspark Schönbrunn Beliebtes Wohngebiet für Kreative, Junge & alle, die das echte Wien schätzen

Beschreibung der Immobilie

Typisch Wien – nur schöner! Altbau mit Wow-Faktor & Platz zum Leben – Jetzt entdecken!

Typisch Wien – nur schöner! Altbau mit Wow-Faktor & Platz zum Leben – Jetzt entdecken!



Diese traumhafte 3-Zimmer-Wohnung in einem der schönsten Häuser der Reinprechtsdorfer Straße vereint klassischen Wiener Altbaucharme mit durchdachter Raumaufteilung und dem gewissen Etwas.  Man öffnet die Tür. Und plötzlich ist alles ruhig.

Das Licht fällt durch die hohen Fenster, streift den Stuck an der Decke, tanzt über den Parkettboden –

und in diesem Moment weiß man: Hier bin ich zu Hause.



Diese Wohnung hat kein lautes „Schau her“ –

sie hat dieses leise, tiefe „Bleib doch.“



Ein Wohnzimmer, das wie gemacht ist für Sonntage im Pyjama oder lange Abende mit Freunden.

Ein Entree, das Gäste empfängt, wie ein Gastgeber mit Stil.

Eine Küche, in der gekocht, gelebt, gelacht wird –

und ein Abstellraum, der sich anfühlt wie ein geheimer Schatzraum für all das, was Ordnung schafft.



Hier ist nichts zufällig.

Hier ist alles genau richtig.




✨ Highlights auf einen Blick:




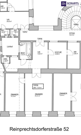
  • Ca. 71,52 m² Wohnfläche im 2. Stock eines gepflegten Altbaus



  • Großzügiges Wohnzimmer mit viel Licht und herrlichem Raumgefühl



  • Typisches Altbau-Entree mit Stuckdecke – stilvoll und einladend



  • Hohe Decken & klassische Altbautüren – echte Wiener Eleganz



  • Helles Schlafzimmer und vielseitiges drittes Zimmer



  • Separates Bad und WC – ideal im Alltag



  • Geräumige Küche mit Platz für Essbereich



  • Großer Abstellraum – perfekt als Speisekammer, Haushaltsraum oder Weinkeller



  • Haus mit Lift, gepflegtem Stiegenhaus & schöner Fassade



  • Ideal für Singles, Paare, Kreative oder Anleger






Jetzt besichtigen – bevor es zu spät ist!



Bei konkretem Interesse senden wir Ihnen sehr gerne weiterführende Dokumente zu, wie:



o Grundbuchauszug



o Wohnungseigentumsvertrag



o Nutzwertgutachten



o Eigentümerversammlungsprotokoll (Falls vorhanden) etc...



www.schantl-ith.at





Wir weisen darauf hin, dass zwischen dem Vermittler und dem zu vermittelnden Dritten ein familiäres oder wirtschaftliches Naheverhältnis besteht.


Der Vermittler ist als Doppelmakler tätig.

Infrastruktur / Entfernungen

Gesundheit
Arzt <250m
Apotheke <250m
Klinik <750m
Krankenhaus <750m

Kinder & Schulen
Schule <250m
Kindergarten <250m
Universität <750m
Höhere Schule <750m

Nahversorgung
Supermarkt <250m
Bäckerei <250m
Einkaufszentrum <1.000m

Sonstige
Geldautomat <250m
Bank <250m
Post <500m
Polizei <500m

Verkehr
Bus <250m
U-Bahn <250m
Straßenbahn <750m
Bahnhof <750m
Autobahnanschluss <3.500m

Angaben Entfernung Luftlinie / Quelle: OpenStreetMap

Eckdaten Objektnr. 296479

Art: Wohnung
Land: Österreich
Baujahr: 1914
Alter: Altbau
Kaufpreis: 399.000,00
Kaufpreis / m²: 5.562,53 €
Provision: 3% des Kaufpreises zzgl. 20% USt.
Wohnfläche: 71,73 m²
Nutzfläche: 71,73 m²
Zimmer: 2,50
Bäder: 1
WC: 1
Keller: 3,00 m²
Heizwärmebedarf:  D  128,00 kWh/m²a
fGEE:  E  2,51
Immobilie merken Exposé

Ausstattung

Fliesen, Parkett, Gas, Etagenheizung, Einbauküche, Personenaufzug, Bad mit Fenster, Badewanne, Kabel/Satelliten-TV


Immobilie anfragen


Ihre persönliche Beratung

Schantl ITH Immobilientreuhand GmbH

Dejan Ljepoja, MBA

Schantl ITH Immobilientreuhand GmbH

T +43 664 307 00 09

H +43 660 199 20 22