Ihr Haus in Wien mit Garten | Bewilligter Ausbau auf 257 m² – seltene Gelegenheit

Haus , 1140 Wien , Hütteldorfer Straße


Die Hütteldorfer Straße 321 liegt im beliebten 14. Bezirk Penzing – einer Wohngegend, die urbane Infrastruktur mit viel Grün verbindet. ✅ U-Bahn, S-Bahn, Straßenbahn & Bus in Gehdistanz (U4 Hütteldorf) ✅ Nahversorgung, Cafés, Schulen und Ärzte direkt in der Umgebung ✅ Nähe zu Schönbrunn und Wienerwald – Erholung praktisch vor der Haustüre Eine Lage, die besonders bei Familien und Eigennutzern gefragt ist – gut angebunden, gewachsen und mit stabilem Wertpotenzial.

Beschreibung der Immobilie

Ihr Haus in Wien mit Garten | Bewilligter Ausbau auf 257 m² – seltene Gelegenheit

Ihr Haus in Wien mit Garten | Bewilligter Ausbau auf 257 m² – seltene Gelegenheit



Im ruhigen hinteren Hofbereich gelegen, entsteht hier die seltene Möglichkeit, ein eigenständiges Haus mit großem Garten und Dachterrasse mitten in Wien zu realisieren.



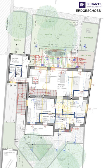
Aktuell umfasst das Bestandshaus rund 150 m² Wohnfläche.

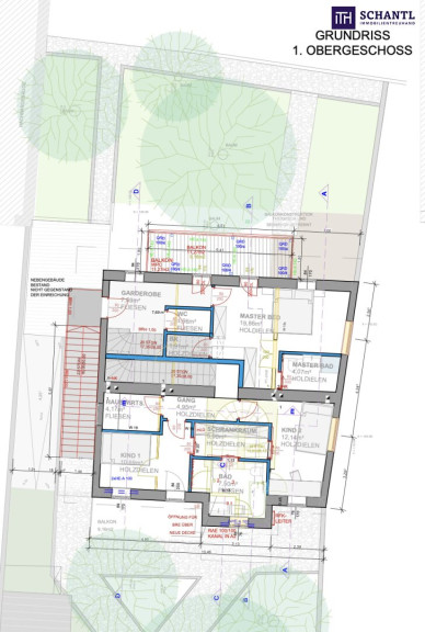
Eine rechtskräftige Baubewilligung für den Ausbau auf 257,41 m² Wohnnutzfläche liegt bereits vor.



Zusätzlich bietet die Planung:




  • ca. 118 m² privaten Garten



  • ca. 61 m² Dachterrasse



  • zusätzliche Balkone




Damit erwerben Sie nicht nur Bestand – sondern eine fertig genehmigte Projektgrundlage mit massivem Wertsteigerungspotenzial.



Ob großzügiges Einfamilienhaus mit Garten, repräsentatives Stadthaus oder clevere Investmentlösung – die Struktur lässt mehrere Konzepte zu.



Ein Haus mit Garten in Wien ist selten.

Ein Haus mit bewilligtem Ausbau und Dachterrasse ist außergewöhnlich.




Highlights



🌿 Absolute Ruhelage im geschützten Hof

🌳 118 m² privater Garten

🌇 61 m² Dachterrasse laut Planung

📐 257,41 m² genehmigte Wohnnutzfläche

🏗 Rechtskräftige Baubewilligung

🏡 Flexible Nutzungsmöglichkeiten

🚋 Sehr gute öffentliche Anbindung




Kaufpreis: € 450.000,-





Jetzt besichtigen – bevor es zu spät ist!



Bei konkretem Interesse senden wir Ihnen sehr gerne weiterführende Dokumente zu, wie:



o Grundbuchauszug



o Wohnungseigentumsvertrag



o Nutzwertgutachten



o Eigentümerversammlungsprotokoll (Falls vorhanden) etc...



www.schantl-ith.at


Hinweis gemäß Energieausweisvorlagegesetz: Ein Energieausweis wurde vom Eigentümer bzw. Verkäufer, nach unserer Aufklärung über die generell geltende Vorlagepflicht, sowie Aufforderung zu seiner Erstellung noch nicht vorgelegt. Daher gilt zumindest eine dem Alter und der Art des Gebäudes entsprechende Gesamtenergieeffizienz als vereinbart. Wir übernehmen keinerlei Gewähr oder Haftung für die tatsächliche Energieeffizienz der angebotenen Immobilie.

Infrastruktur / Entfernungen

Gesundheit
Arzt <250m
Apotheke <500m
Klinik <1.750m
Krankenhaus <1.250m

Kinder & Schulen
Schule <250m
Kindergarten <250m
Universität <1.750m
Höhere Schule <3.500m

Nahversorgung
Supermarkt <250m
Bäckerei <500m
Einkaufszentrum <3.250m

Sonstige
Geldautomat <500m
Bank <500m
Post <500m
Polizei <1.000m

Verkehr
Bus <250m
U-Bahn <750m
Straßenbahn <250m
Bahnhof <750m
Autobahnanschluss <4.250m

Angaben Entfernung Luftlinie / Quelle: OpenStreetMap

Eckdaten Objektnr. 296482

Art: Haus
Land: Österreich
Zustand: Sanierungsbeduerftig
Kaufpreis: 450.000,00
Kaufpreis / m²: 1.397,52 €
Wohnfläche: 150,00 m²
Nutzfläche: 322,00 m²
Garten: 120,00 m²
Immobilie merken Exposé

Immobilie anfragen


Ihre persönliche Beratung

Schantl ITH Immobilientreuhand GmbH

Dejan Ljepoja, MBA

Schantl ITH Immobilientreuhand GmbH

T +43 664 307 00 09

H +43 660 199 20 22