TOP Anlageobjekt in Feldkirchen bei Graz! Modernes Wohn- und Ordinationshaus mit Zahnarztpraxis im Erdgeschoss und großzügiger Mietwohnung im Obergeschoss!

Haus , 8073 Feldkirchen bei Graz , Obere Seeparkgasse


Die Liegenschaft befindet sich in einer der begehrtesten Wohn- und Geschäftslagen von Feldkirchen bei Graz. Der Standort zeichnet sich durch eine ideale Kombination aus ruhigem Wohnumfeld, hervorragender Erreichbarkeit und optimaler Infrastrukturversorgung aus. Eingebettet in ein gepflegtes Wohngebiet profitiert die Immobilie von einer angenehmen Nachbarschaft, großzügigen Grünflächen und der Nähe zu sämtlichen Einrichtungen des täglichen Bedarfs. Einkaufsmöglichkeiten, Schulen, Kinderbetreuung, medizinische Versorgung sowie gastronomische Angebote sind in wenigen Minuten erreichbar. Die Verkehrsanbindung ist ausgezeichnet: Über regionale Hauptverkehrswege sind sowohl die Grazer Innenstadt als auch der Flughafen Graz-Thalerhof in kurzer Zeit erreichbar. Öffentliche Verkehrsmittel befinden sich ebenfalls in bequemer Nähe und sorgen für eine sehr gute Anbindung an das Stadtgebiet und das umliegende Umland. Durch die zentrale und dennoch ruhige Lage bietet der Standort sowohl für den Praxisbetrieb als auch für Wohnzwecke einen äußerst attraktiven Rahmen. Das Umfeld ist geprägt von stetiger Entwicklung, moderner Wohnbebauung und einer nachhaltigen Nachfrage nach Wohn- und Gewerbeflächen – ideale Voraussetzungen für eine langfristige und wertstabile Immobilieninvestition.

Beschreibung der Immobilie

TOP Anlageobjekt in Feldkirchen bei Graz! Modernes Wohn- und Ordinationshaus mit Zahnarztpraxis im Erdgeschoss und großzügiger Mietwohnung im Obergeschoss!

TOP Anlageobjekt in Feldkirchen bei Graz! Modernes Wohn- und Ordinationshaus mit Zahnarztpraxis im Erdgeschoss und großzügiger Mietwohnung im Obergeschoss!



In einer begehrten Wohnlage von Feldkirchen bei Graz befindet sich diese außergewöhnliche Liegenschaft, die Wohnen und Arbeiten ideal verbindet. Es handelt sich um ein Gebäude, in dem sich im Erdgeschoss eine etablierte Zahnarztpraxis und im Obergeschoss eine großzügige Mietwohnung befinden. Das Grundstück bietet solide Bauqualität, moderne Gebäudetechnik und langfristig gesicherte Mieterträge.



5 Facts zur Liegenschaft



  1. Grundstücksgröße: 986 m² mit markant abfallender Topografie
  2. Gesamtnutzfläche: rund 476 m² (Erdgeschoss 272 m², Obergeschoss 204 m²)
  3. Nutzung: Zahnarztpraxis im Erdgeschoss, Mietwohnung im Obergeschoss
  4. Bauweise: Massivbau mit Stahlbetondecken, Vollwärmeschutz und Flachdach
  5. Heizung: Luft‑Wärmepumpe mit Fußbodenheizung und Fancoils; Fernwärmeanschluss vorhanden


10 Highlights der Immobilie



  1. Langfristige, unbefristete Mietverhältnisse für stabile Einnahmen
  2. Voll ausgestattete Zahnarztpraxis mit mehreren Behandlungsräumen und Röntgen
  3. Großzügige Mietwohnung mit Terrasse, Fitnessraum und direktem Garagenzugang
  4. 3‑fach verglaste Kunststoff‑Alu-Fenster mit außenliegendem Sonnenschutz
  5. Hochwertige, massive Bauausführung für nachhaltigen Werterhalt
  6. Effiziente Gebäudetechnik durch moderne Luft‑Wärmepumpe am Dach
  7. Terrassenflächen auf Nord-, Ost- und Südseite
  8. Strukturierte Außenanlagen und befestigte Stellplätze
  9. Widmung WA 0,2–0,4 im Aufschließungsgebiet – hohes Entwicklungspotenzial
  10. Direkter Wohnungseingang über die Doppelgarage


Objektbeschreibung – Wohnen und Arbeiten perfekt kombiniert



Die Liegenschaft liegt in einer ruhigen und dennoch gut angebundenen Wohnlage in Feldkirchen bei Graz. Die Hanglage, die sich nach Osten öffnet, verleiht dem Gebäude eine markante architektonische Ausprägung.



Erdgeschoss – Zahnarztpraxis



Die Ordination umfasst:



  • Empfangs- und Warteraum
  • zwei große Ordinationsräume sowie zusätzliche Behandlungsbereiche
  • Röntgenraum
  • Aufenthaltsraum mit Küche
  • mehrere Technik- und Lagerräume
  • drei Sanitär- bzw. WC‑Bereiche
  • vorgelagerte Terrassen an Nord-, Ost- und Südseite


Die Oberflächen sind funktional und hochwertig gestaltet:

Feinsteinzeug in Gängen und Nassräumen, Kautschukboden in den Behandlungsräumen und Parkett in Nebenbereichen.



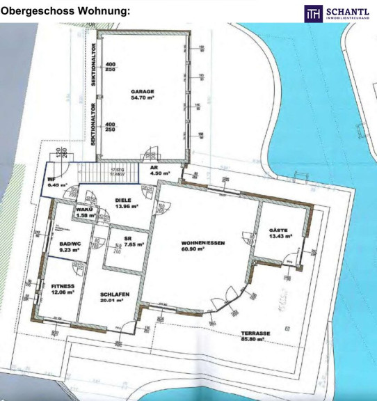
Obergeschoss – Mietwohnung



Die großzügige Wohnung bietet:



  • offenen Wohn‑/Essbereich mit Terrasse
  • Schlafzimmer mit Schrankraum
  • Gästezimmer
  • Fitnessraum
  • Bad/WC
  • Vorraum und Abstellraum
  • direkten Zugang zur Doppelgarage


Parkettböden dominieren den Wohnbereich, während Nassräume mit Feinsteinzeug ausgeführt sind. Das Raumkonzept ist hell, offen und ideal für modernes Wohnen.



Erdgeschoss – Zahnarztpraxis 



  • Nettomiete inkl. Parkplätzen und Einrichtung: € 6.611,20 pro Monat
  • Bruttovorschreibung inkl. Betriebs- und Heizkosten: € 8.706,08 pro Monat
  • Erhaltungspflichten liegen überwiegend beim Mieter


Obergeschoss – Mietwohnung



  • Nettomiete inkl. Garage und Einrichtung: € 2.348,55 pro Monat
  • Bruttovorschreibung inkl. Betriebs- und Heizkosten: € 2.985,21 pro Monat
  • Erhaltungspflichten beim Mieter


Gesamte monatliche Mieteinnahmen



€ 8.959,75 netto pro Monat



€ 11.691,29 brutto pro Monat



Worauf noch warten?



Vereinbaren Sie noch heute eine Besichtigung oder eine persönliche Beratung mit uns!



Sie wollen Ihre Immobilie verkaufen? Dann sind Sie bei uns goldrichtig!

Wir sind gerne für Sie da und unterstützen Sie unverbindlich bei der Bewertung Ihrer Immobilie. Mit viel Sorgfalt stellen wir Ihnen alle wichtigen Informationen und Unterlagen zusammen, damit Sie die besten Entscheidungen treffen können.



In Kooperation mit unserer SFI Vermögenstreuhand begleiten wir Sie bei der Verwirklichung Ihres Traumobjekts und unterstützen Sie beim nachhaltigen Vermögensaufbau. Mit unseren erfahrenen Experten sorgen wir dafür, dass Sie die besten Konditionen erhalten – damit Ihre Träume Wirklichkeit werden!



http://www.schantl-ith.at in Kooperation mit www.sfi-invest.com 



Die Angaben über das angebotene Objekt erfolgen mit der Sorgfalt eines ordentlichen Immobilienmaklers; für die Richtigkeit solcher Angaben, die auf Informationen der über das Objekt Verfügungsberechtigten beruhen, wird keine Gewähr geleistet!


Hinweis gemäß Energieausweisvorlagegesetz: Ein Energieausweis wurde vom Eigentümer bzw. Verkäufer, nach unserer Aufklärung über die generell geltende Vorlagepflicht, sowie Aufforderung zu seiner Erstellung noch nicht vorgelegt. Daher gilt zumindest eine dem Alter und der Art des Gebäudes entsprechende Gesamtenergieeffizienz als vereinbart. Wir übernehmen keinerlei Gewähr oder Haftung für die tatsächliche Energieeffizienz der angebotenen Immobilie.

Infrastruktur / Entfernungen

Gesundheit
Arzt <750m
Apotheke <2.250m
Klinik <8.000m
Krankenhaus <5.750m

Kinder & Schulen
Schule <750m
Kindergarten <250m
Universität <7.000m
Höhere Schule <7.750m

Nahversorgung
Supermarkt <1.000m
Bäckerei <1.750m
Einkaufszentrum <4.000m

Sonstige
Geldautomat <1.000m
Bank <1.000m
Post <2.250m
Polizei <1.000m

Verkehr
Bus <500m
Straßenbahn <4.500m
Autobahnanschluss <2.000m
Bahnhof <750m
Flughafen <1.500m

Angaben Entfernung Luftlinie / Quelle: OpenStreetMap

Eckdaten Objektnr. 295583

Art: Haus
Land: Österreich
Baujahr: 2013
Alter: Neubau
Kaufpreis: 1.490.000,00
Provision: 3% des Kaufpreises zzgl. 20% USt.
Nutzfläche: 476,00 m²
Grundstücksfl.: 986,00 m²
Terrassen: 1
Immobilie merken Exposé

Ausstattung

Fliesen, Parkett, Fußbodenheizung, Zentralheizung, Einbauküche, Garage, Parkplatz


Immobilie anfragen


Ihre persönliche Beratung

Schantl ITH Immobilientreuhand GmbH

Nikolaus Kronabitter

Schantl ITH Immobilientreuhand GmbH

T +436645411047

H +43 664 2540410