LAGE, LAGE, LAGE! Um´s Eck von Marriott und Ronacher!

Wohnung , 1010 Wien,Innere Stadt


Beschreibung der Immobilie

LAGE, LAGE, LAGE! Um´s Eck von Marriott und Ronacher!

ANMERKUNG: Es handelt sich um eine Verhandlungsbasis. Der endgültige Verkaufspreis kann tiefer oder höher sein, abhängig  von den Angeboten, vorbehaltlich Zustimmung des Eigentümers.



Wohn- und Schlafzimmer wurden virtuell mittels KI möbliert!



Die Adresse: Seilerstätte 10, 1010 Wien



Die Wohnung im zweiten Stock dieses – im Jahr 1910 errichteten – Wohnhauses, ist ein typisches Wohnhaus aus dem alten Wien.



Der Zugang ist durch die Stiege 1 – die im Jahr 1960 als Wiederaufbau errichtet wurde und in der auch ein asiatisches Restaurant untergebracht ist –  über den Innenhof, der im Gegensatz dazu schon ein typischer Altbau Innenhof ist, in dem wohl ehemalige Stallungen gewesen sein könnten.



Das Haus selbst, die Stiege 2, versprüht Altwiener Charme mit dicken Mauern, Stiegen, die schon viel gesehen haben und Bassena am Gang. Auch die zeitgenössischen Fenster in der Wohnung, das Fischgrätparkett und die 3 Meter hohen Räume passen perfekt dazu.



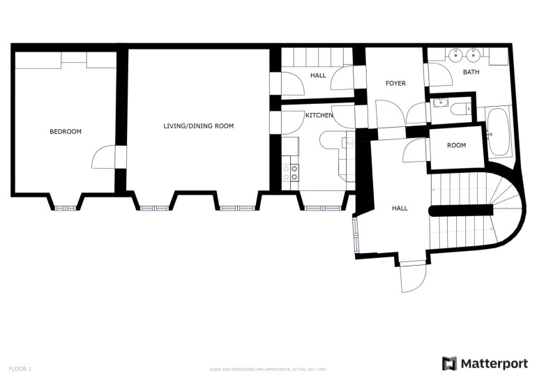
Auf einer Wohnfläche von insgesamt 65,39m² erwartet Sie ein gut geschnittenes Wohnzimmer mit über 24m², ein Schlafzimmer mit über 17m², eine geräumige Küche mit Fenster, ein Bad mit Wanne und Doppelwaschbecken, ein getrenntes WC, ein Vorraum mit über 6m² und ein Abstellraum mit ca. 3m². Ein Kellerabteil ist ebenfalls vorhanden.



Es besteht leichter Renovierungsbedarf. Das betrifft die Wände/Tapeten und die Böden im Vorraum.



Die Wohnung befindet sich in der zweiten (hinteren) Stiege des Wohnhauses, alle Zimmer sind in den Innenhof ausgerichtet. Sie haben also nicht nur den Vorteil einer zentralen Wohnlage, sondern sind auch noch abgeschirmt gegen die Geräuschkulisse der Außenwelt!



Von hier aus sind Sie nicht nur rasch auf der Kärtnerstraße und am Parkring, auch Restaurants, Cafes, historische und touristische Sehenswürdigkeiten sowie Einkaufsmöglichkeiten sind in Fußnähe!





AUF EINEN BLICK:



  • Baujahr ca. 1910
  • 2. Stock OHNE Lift 
  • Ca. 65,39m² Wohnfläche
  • Raumhöhe ca. 3m
  • 1 Wohnzimmer, 1 Schlafzimmer, separate Küche (mit Fenster), Bad mit Wanne, Abstellraum
  • Kellerabteil ist vorhanden
  • Zentrale Lage
  • Fußnähe zu allen Sehenswürdigkeiten im ersten Bezirk
  • Fußnähe zur U-Bahn
  • Ruhelage




DIE LAGE:



Genial! Hier, in der Seilerstätte 10, erleben Sie auf Schritt und Tritt Geschichte. Um die Ecke befinden sich das - vor allem für seine Musicalaufführungen bekannte - Ronacher Theater und das Hotel Marriott.



In wenigen Gehminuten sind Sie am Stadtpark, am Stephansplatz, am Stubentor und an allen anderen wichtigen Plätzen im ersten Bezirk. Die U1, U3 sowie die Straßenbahn Linie 1 und 2 sind ganz nah. Falls Sie ein Auto besitzen, finden Sie unmittelbar neben dem Haus die Seilerstättengarage / https://hegenbart.at/garage/





DIE MONATLICHEN KOSTEN INKL. UST.: € 294,26



  • € 91,55 Reparaturrücklage
  • € 151,05 Betriebskosten
  • € 51,66 Darlehen (bis 10.07.2038) 




DER KAUFPREIS:



EUR 629.000.- (zzgl. 3,6% Maklerprovision inkl. 20% USt.)





Unter bestimmten Voraussetzungen (Anmeldung als Hauptwohnsitz, ...), kommen Sie jetzt in den Genuss der Gebührenbefreiung von der Grundbucheintragungsgebühr (1,1%) und der Eintragungsgebühr des Pfandrechts (1,2%).





SIE SIND NOCH UNSCHLÜSSIG, OB IHRE FINANZIERUNG GESICHERT IST?



Ihre Hausbank benötigt im Normalfall 3-4 Wochen, um Ihnen mitzuteilen, ob Ihr Kreditantrag bewilligt wird. Unser Finanzierungspartner sagt Ihnen nicht nur anhand Ihrer Unterlagen in kürzester Zeit, ob die Finanzierung klappen wird, er sorgt auch für den besten und günstigsten Wohnkredit, da er Zugang zu den besten Angeboten aller relevanten Banken hat.



Last but not least: Unser Finanzberater kostet Sie nichts, denn er bekommt seine Provision von der finanzierenden Bank!





Ich freue mich auf Ihre Anfrage, bitte ausschließlich über das Inserat unter Angabe Ihrer vollständigen Daten. Für zusätzliche Auskünfte stehe ich Ihnen auch gerne telefonisch zur Verfügung.





Die von uns gemachten Angaben beruhen auf Informationen und Mitteilungen durch Dritte, insbesondere durch die Verkäufer und sind daher ohne Gewähr.


Wir weisen darauf hin, dass zwischen dem Vermittler und dem zu vermittelnden Dritten ein familiäres oder wirtschaftliches Naheverhältnis besteht.


Der Vermittler ist als Doppelmakler tätig.

Infrastruktur / Entfernungen

Gesundheit
Arzt <500m
Apotheke <500m
Klinik <1.000m
Krankenhaus <1.000m

Kinder & Schulen
Schule <500m
Kindergarten <500m
Universität <500m
Höhere Schule <500m

Nahversorgung
Supermarkt <500m
Bäckerei <500m
Einkaufszentrum <500m

Sonstige
Geldautomat <500m
Bank <500m
Post <500m
Polizei <500m

Verkehr
Bus <500m
U-Bahn <500m
Straßenbahn <500m
Bahnhof <500m
Autobahnanschluss <3.000m

Angaben Entfernung Luftlinie / Quelle: OpenStreetMap

Eckdaten Objektnr. 4868

Art: Wohnung
Land: Österreich
Baujahr: 1910
Möbliert: Voll
Alter: Altbau
Kaufpreis: 629.000,00
Betriebskosten: 137,32 €
MwSt Gesamt: 13,73 €
Wohnfläche: 65,39 m²
Zimmer: 2
Bäder: 1
WC: 1
Keller: 4,00 m²
Heizwärmebedarf:  C  86,20 kWh/m²a
fGEE:  D  1,83
Immobilie merken Exposé

Ausstattung

Fliesen, Steinboden, Parkett, Gas, Zentralheizung, Einbauküche, Badewanne, Kabel/Satelliten-TV


Immobilie anfragen


Ihre persönliche Beratung

Perfect Deal Immobilien OG

Thomas Kisch

Perfect Deal Immobilien OG

T +43 699 172 00 604