+Helle, gemütliche 3 -Zimmer + mit 36 m² Wohnküche und 7,8 m² Balkon + grüner Innenhof, Wiengrenze, ruhig, 1. OG, Dachgeschoss, D+

Wohnung - Dachgeschoß, 2333 Leopoldsdorf


+Bei Wien, Ruhelage, 30er Zone, Zentrum Leopoldsdorf+

Beschreibung der Immobilie

+Helle, gemütliche 3 -Zimmer + mit 36 m² Wohnküche und 7,8 m² Balkon + grüner Innenhof, Wiengrenze, ruhig, 1. OG, Dachgeschoss, D+

Gemütliches wohnen vor den Toren Wiens



Wohnungsbeschreibung:



Diese ruhige helle 3 Zimmerwohnung liegt im 1. OG eines in 1997er Jahren ausgebauten Dachgeschosses.



Direkt link zur 360 Grad online Tour: https://my.matterport.com/show/?m=qdHzeREhHUW



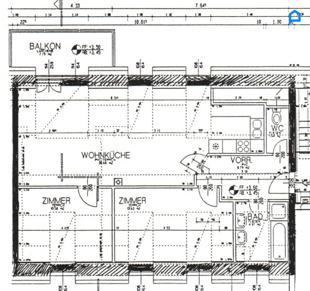
Raumaufteilung: Wohnfläche: ca. 74,57m² plus 7,79m² Balkon



  • Vorraum: ca. 6,79 m²
  • Bad : ca. 4,97 m²Neu renoviert und verfliest mit Dusche und Handwaschbecken ( auch noch Platz für eine Badewanne)
  • Zimmer 1: ca. 13,63 m²
  • Zimmer 2: ca. 10,58 m²
  • Wohnküche Zimmer 3: ca. 36,66m²
  • WC: Neu ca. 1,94m²
  • Balkon: Innenhofgartenseitig: ca. 7,79 m²


Der Kaufpreis: Nur 269.900,--



Lagebeschreibung:



Leopoldsdorf ist ein lebenswerter Ort, der durch seine Nähe zu Wien, die gute Anbindung und die umfassende lokale Infrastruktur besticht. Kindergärten, Schulen, Nahversorger, medizinische Einrichtungen und die schnelle Erreichbarkeit von Wien und anderen wichtigen Orten machen Leopoldsdorf zu einem idealen Wohnort für Familien, Pendler und alle, die eine hohe Lebensqualität in einer gut angebundenen und dennoch ruhigen Umgebung suchen.



Die Umgebung von Leopoldsdorf ist geprägt von landwirtschaftlichen Nutzflächen und kleinen Wäldern, die sich ideal für Spaziergänge und Naturerlebnisse eignen. Die Gemeinde bemüht sich, die natürliche Umgebung zu bewahren und gleichzeitig den Einwohnern ein modernes Lebensumfeld zu bieten.



Kurz nach Oberlaa, im Süden von Wien gelegen ist Leopoldsdorf durch die sehr gute öffentliche Anbindung zu Wien - Oberlaa und Siebenhirten begehrt.

Direkt im Ort finden Sie, Kindergarten, Volksschule, sehr viele Nahversorger, Ärzte, Apotheke und auch weitere gewerbliche Betriebe. Durch die Nähe zu Wien, Schwechat und SCS, alles mit Autobahnanschluss, ebenfalls sehr gut zu erreichen.



Gesundheitseinrichtungen:



  1. Ärzte und Gesundheitszentren: In Leopoldsdorf gibt es einige Hausärzte und Fachärzte, die grundlegende medizinische Versorgung anbieten.


Öffentliche Dienstleistungen:



  1. Gemeindeamt: Das Gemeindeamt ist die zentrale Anlaufstelle für administrative Belange, wie z.B. Meldeangelegenheiten, Passanträge und andere behördliche Dienstleistungen.
  2. Postamt: Leopoldsdorf verfügt über ein Postamt, das alle notwendigen postalische Dienste wie Brief- und Paketzustellung sowie Finanzdienstleistungen anbietet.


Freizeit- und Kultureinrichtungen:



  1. Sportanlagen: Die Gemeinde bietet verschiedene Sporteinrichtungen, darunter Sportplätze, Tennisplätze , ortseigener Golfclub, Badeteich- Biotop, Radfahrwege.
  2. Kulturelle Einrichtungen: In Leopoldsdorf gibt es selbstverständlich auch kulturelle Einrichtungen wie ein örtliches Gemeindekulturzentrum, das für Veranstaltungen, Feiern und Versammlungen genutzt wird.




Öffentliche Verkehrsmittel, Infrastruktur:



Busverbindungen: Leopoldsdorf ist gut an das öffentliche Verkehrsnetz angebunden, mit regelmäßigen Busverbindungen, die die Gemeinde mit den umliegenden Städten und Wien verbinden. Die Verkehrsanbindung an Wien ist hervorragend.



Die Nähe zu wichtigen Straßen wie der S1 und A4 ermöglicht eine schnelle Anfahrt mit dem Auto. Auch der Flughafen Wien-Schwechat ist nur eine kurze Autofahrt entfernt, 



Bahnhöfe: In der Nähe von Leopoldsdorf gibt es Bahnhöfe, die eine Verbindung zur Wiener Stadtbahn und anderen Regionalverbindungen bieten.





Wir bitten um Verständnis, dass auf Grund der Nachweispflicht gegenüber dem Eigentümer nur Anfragen mit vollständigen Kontaktdaten (Name, Adresse, Telefon Nr., Email) beantwortet werden können.





Für Fragen und Besichtigungen rufen Sie bitte Herrn Ing .Posch unter 0699/15115000 . Gerne senden Sie uns auch Ihre schriftliche Anfrage an robert@posch-immobilien.at



Wir freuen uns auf Ihre Anfrage, Ihren Anruf!



Sie wollen Ihre Wohnung, Ihr Haus, Ihr Grundstück verkaufen? Gerne bewerten wir Ihre Immobilie völlig unverbindlich! Buchen Sie gleich jetzt Ihr kostenfreies Beratungsgespräch unter office@posch-immobilien.at


Der Vermittler ist als Doppelmakler tätig.

Eckdaten Objektnr. 6546

Art: Wohnung - Dachgeschoß
Land: Österreich
Baujahr: 1997
Zustand: Modernisiert
Alter: Neubau
Kaufpreis: 269.901,00
Betriebskosten: 167,22 €
MwSt Gesamt: 16,72 €
Wohnfläche: 74,57 m²
Nutzfläche: 82,36 m²
Zimmer: 3
Bäder: 1
WC: 1
Balkone: 1
Immobilie merken Exposé

Ausstattung

Fliesen, Parkett, Gas, Etagenheizung, Einbauküche, Bad mit Fenster, Dusche, Kabel/Satelliten-TV


Immobilie anfragen


Ihre persönliche Beratung

Posch Immobilien

Ing. Robert Posch

Posch Immobilien

T +43 699 151 15000

H +43 699 151 15000