Traumhafte 3-Zimmerwohnung mit Balkon, Nähe Schloss Hetzendorf

Wohnung , 1120 Wien


Beschreibung der Immobilie

Traumhafte 3-Zimmerwohnung mit Balkon, Nähe Schloss Hetzendorf

Im Falle der Notwendigkeit einer Fremdfinanzierung Ihrer Wunschimmobilie ermittelt unser Wohnbau-Finanzierungsexperte gerne die optimale Finanzierungslösung und findet das passende Zins- und Konditionsangebot für Sie. Er vergleicht die aktuellen Angebote aller relevanten Banken und Bausparkassen. Der Angebotsvergleich kann aus einem Portfolio von über 120 Banken erfolgen. Das Erstgespräch ist für Sie kostenfrei und unverbindlich, gerne auch bei Ihnen vor Ort. So sparen Sie Ihre wertvolle Zeit und erhalten eine professionelle und unabhängige Finanzierungslösung vom Spezialisten. Sprechen Sie uns wegen eines Termins gerne an.



 



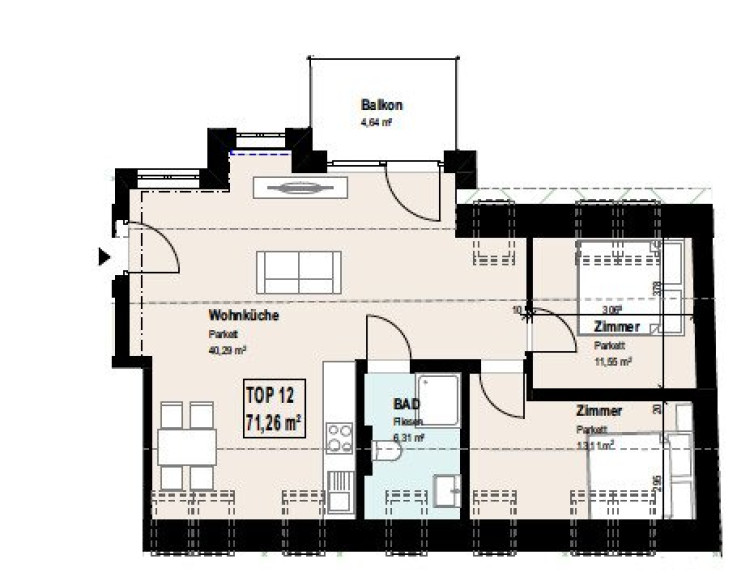
Zum Verkauf gelangt eine wunderschöne 3-Zimmer-Wohnung im beliebten 12. Wiener Gemeindebezirk.



Wir freuen uns, Ihnen die Gelegenheit bieten zu dürfen, eine moderne, im Jahr 2023 fertiggestellte Wohnung zu erwerben. Die ca. 71 m² große Einheit befindet sich im zweiten Dachgeschoss und ist bequem mit dem Lift erreichbarund überzeugt durch eine optimale und durchdachte Raumaufteilung.

Das gesamte Gebäude wird umweltfreundlich und effizient mittels Wärmepumpe beheizt. Eine Fußbodenheizung sorgt für angenehme Wärme in sämtlichen Räumen. Zusätzlich besteht die Möglichkeit, Garagenabstellplätze für etwa 100 Euro monatlich zu mieten. Der Wohnung ist selbstverständlich ein Kellerabteil zugeordnet.



Beim Betreten der Wohnung gelangen Sie direkt in die großzügige Wohnküche. Von hier aus erreichen Sie die beiden Schlafzimmer sowie das Badezimmer mit WC. Ein Balkon mit ca. 5 m² rundet das Wohnangebot perfekt ab. Die Küche ist bereits im Kaufpreis inkludiert.



Ein weiterer Pluspunkt dieser Wohnung ist die hochwertige Ausstattung: Eine Klimaanlage sorgt auch an heißen Sommertagen für angenehme Temperaturen, während außenliegende elektrische Rollläden zusätzlichen Komfort sowie optimalen Sonnenschutz bieten.



Die Wohnung eignet sich ideal für Paare, Familien oder anspruchsvolle Eigennutzer, die modernen Wohnkomfort und eine effiziente Nutzung der Wohnfläche schätzen.



Ein weiterer Vorteil ist die ausgezeichnete Infrastruktur: Die Straßenbahnhaltestelle ist in nur 2 Gehminuten erreichbar. In unmittelbarer Umgebung befinden sich zahlreiche Geschäfte des täglichen Bedarfs, Apotheken, Schulen, Restaurants und Cafés. Die öffentliche Anbindung ist durch die Straßenbahnlinie 62 sowie diverse Buslinien bestens gewährleistet.



Ein besonderes Highlight ist die hervorragende Lage: Das idyllische Schloss Hetzendorf sowie der beliebte Franz-Hübel-Park befinden sich in unmittelbarer Nähe und laden zu erholsamen Spaziergängen und Freizeitaktivitäten im Grünen ein.



Für nähere Informationen zur Infrastruktur sowie detaillierte Unterlagen fordern Sie bitte unser Exposé an.



Überzeugen Sie sich selbst von diesem attraktiven Objekt! Für Besichtigungen und weitere Informationen stehen wir Ihnen jederzeit gerne zur Verfügung.



Herr Aleksandar Mihajlovic, MSc

national - Tel: 0660 652 5500
international - Tel: +43 660 652 5500
e-mail: mihajlovic@lifestyle-properties.at


Wir weisen darauf hin, dass zwischen dem Vermittler und dem zu vermittelnden Dritten ein familiäres oder wirtschaftliches Naheverhältnis besteht.


Der Vermittler ist als Doppelmakler tätig.

Infrastruktur / Entfernungen

Gesundheit
Arzt <500m
Apotheke <500m
Klinik <1.500m
Krankenhaus <2.000m

Kinder & Schulen
Schule <500m
Kindergarten <500m
Universität <2.500m
Höhere Schule <3.000m

Nahversorgung
Supermarkt <500m
Bäckerei <500m
Einkaufszentrum <2.500m

Sonstige
Geldautomat <1.000m
Bank <1.000m
Post <1.000m
Polizei <1.000m

Verkehr
Bus <500m
U-Bahn <2.000m
Straßenbahn <500m
Bahnhof <1.500m
Autobahnanschluss <2.000m

Angaben Entfernung Luftlinie / Quelle: OpenStreetMap

Eckdaten Objektnr. 5230

Art: Wohnung
Land: Österreich
Baujahr: 2023
Alter: Neubau
Kaufpreis: 415.000,00
Provision: 3% des Kaufpreises zzgl. 20% USt.
Wohnfläche: 71,26 m²
Zimmer: 3
Bäder: 1
WC: 1
Balkone: 1
Heizwärmebedarf:  B  35,63 kWh/m²a
fGEE:  A  0,71
Immobilie merken Exposé

Ausstattung

Parkett, Fliesen, Etagenheizung, Fußbodenheizung, Wohnküche / offene Küche, Einbauküche, Personenaufzug, Tiefgarage


Immobilie anfragen


Ihre persönliche Beratung

IM Lifestyle Properties GmbH

Aleksandar Mihajlovic

Lifestyle Properties

T +43 1 512 14 84

H +43 660 6525500

F +43 1 512 14 84