Urbaner Wohnkomfort auf zwei Ebenen- Exklusive Maisonette in Ottakring
Wohnung
- Maisonette,
1160
Wien
Beschreibung der Immobilie
Urbaner Wohnkomfort auf zwei Ebenen- Exklusive Maisonette in Ottakring
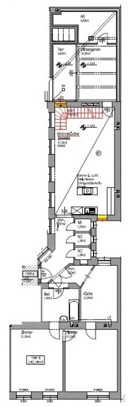
Diese modernisierte 5-Zimmer-Maisonette in der Fröbelgasse präsentiert sich als hochwertig zusammengelegte Wohneinheit mit klar strukturiertem Raumkonzept auf zwei Ebenen. Die Verbindung der beiden ursprünglichen Wohnungen wurde technisch wie gestalterisch sorgfältig umgesetzt und schafft ein großzügiges, zeitgemäßes Wohnumfeld.Der Wohn- und Kochbereich befindet sich auf der unteren Ebene und bildet den zentralen Lebensmittelpunkt der Wohnung. Die moderne Küche fügt sich harmonisch in den offen gestalteten Raum ein und ermöglicht einen fließenden Übergang zwischen Kochen, Essen und Wohnen. Großzügige Fensterflächen sorgen für eine helle Atmosphäre und unterstreichen den hochwertigen Charakter des Bereichs, der sowohl für den Alltag als auch für repräsentative Anlässe ideal geeignet ist. Die Sanitärräume wurden im Zuge der Modernisierung vollständig erneuert und entsprechen einem gehobenen Ausstattungsstandard. Durch seine ruhige Lage innerhalb der Wohnung lässt sich der Wintergarten der Raum flexibel als Büro oder persönlicher Arbeitsbereich gestalten, ohne den harmonischen Gesamteindruck der Wohnräume zu beeinträchtigen.
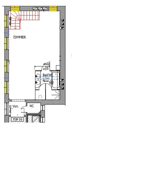
Das Master Schlafzimmer auf der oberen Ebene bietet einen großzügigen, klar strukturierten Rückzugsbereich, der durch seine ruhige Lage innerhalb der Wohnung überzeugt. Das angrenzende Badezimmer en suite ist modern ausgestattet und ermöglicht einen komfortablen, privaten Zugang ohne Wege durch den Wohnbereich. Die Kombination aus privater Schlafzone und hochwertigem Bad schafft einen abgeschlossenen Wohnbereich, der den Anspruch an zeitgemäßen Wohnkomfort auf hohem Niveau erfüllt.
Die Maisonette zeichnet sich durch ihre besondere Kombination aus moderner Architektur, klarer Linienführung und einem außergewöhnlich durchdachten Grundriss aus. Die vertikale Raumaufteilung schafft eine klare Trennung zwischen Wohn- und Privatbereich, während die hochwertige Zusammenlegung der Einheiten ein großzügiges, selten verfügbares Wohnvolumen innerhalb eines klassischen Wiener Altbaus ermöglicht. Diese Verbindung aus zeitgemäßer Modernisierung und struktureller Besonderheit verleiht der Wohnung ihren exklusiven Charakter.
Darüber hinaus bietet die Immobilie eine zusätzliche Flexibilität: Ein Teil der Wohnung verfügt über einen eigenen, separaten Eingang und kann bei Bedarf vermietet werden, während der Hauptbereich weiterhin selbst genutzt wird. Dieses Konzept eröffnet sowohl wohnliche als auch wirtschaftliche Vorteile und macht die Maisonette besonders attraktiv für anspruchsvolle Käufer.
Lagebeschreibung:
Der 16. Bezirk zählt seit Jahren zu den dynamisch wachsenden Wohnlagen Wiens. Die kontinuierliche Aufwertung des Bezirks zeigt sich in einer langfristig positiven Preisentwicklung, die durch steigende Quadratmeterpreise und eine anhaltend hohe Nachfrage gestützt wird. Besonders modernisierte Bestandsobjekte und hochwertig ausgeführte Altbauwohnungen gehören zu den wertstabilsten Segmenten, da sie ein knappes Angebot bedienen und ein überdurchschnittliches Entwicklungspotenzial aufweisen.
Eigennutzer profitieren von einem Wohnumfeld, das funktionale Infrastruktur mit hoher Lebensqualität verbindet. Verbesserte öffentliche Räume, vielfältige kulturelle Angebote und eine gute Versorgungslage erhöhen den täglichen Komfort und machen den Bezirk zu einem nachhaltig attraktiven Standort. Diese Mischung aus urbaner Dynamik und stabilen Rahmenbedingungen unterstützt sowohl eine wertbeständige Wohnnutzung als auch eine zukunftssichere Investition.
Damit präsentiert sich die Maisonette in der Fröbelgasse 47 als eine der wenigen Immobilien in dieser Lage, die hochwertige Wohnqualität mit einem klar erkennbaren Wertsteigerungspotenzial verbindet.
Eckdaten Objektnr. 141/85296
| Art: | Wohnung - Maisonette |
| Land: | Österreich |
| Kaufpreis: | 990.000,00 € |
| Provision: | 3% |
| Betriebskosten: | 346,00 € |
| Sonstige Kosten: | 157,70 € |
| MwSt Gesamt: | 34,60 € |
| Wohnfläche: | 186,50 m² |
| Zimmer: | 5 |
| Bäder: | 2 |
| Heizwärmebedarf: | D 146,00 kWh/m²a |
| fGEE: | D 2,17 |
Ausstattung
Gas, Etagenheizung
Ihre persönliche Beratung
Dieser Makler ist ein offizielles Mitglied des IR – ir.at Mehr Erfahren
