Bright Side - Tag der offenen Tür am 20.03.2026 von 15 -17 Uhr - exklusive & außergewöhnliche Eigentumswohnung in Gmunden am Sonnenhang - Wohnen für Anspruchsvolle Top 4

Wohnung - Terrassenwohnung, 4810 Gmunden


Beschreibung der Immobilie

Bright Side - Tag der offenen Tür am 20.03.2026 von 15 -17 Uhr - exklusive & außergewöhnliche Eigentumswohnung in Gmunden am Sonnenhang - Wohnen für Anspruchsvolle Top 4

Bright Side - Tag der offenen Tür am 20.03.2026 von 15 -17 Uhr in 4810 Gmunden, Am Sonnenhang 52



Wir freuen uns Sie begrüßen zu dürfen!





6 luxuriöse Einheiten mit privatem Pool und traumhaftem Weitblick



In bester Lage am malerischen Sonnenhang in Gmunden entsteht ein architektonisches Meisterwerk mit nur sechs außergewöhnlichen Wohneinheiten. Die moderne Formensprache trifft auf zeitlose Eleganz – ein Rückzugsort für Menschen mit höchsten Ansprüchen.



Privatsphäre mit Panoramablick

Durch versetzte Baukörper und die durchdachte Höhenstaffelung bietet jede Einheit maximale Privatsphäre – bei gleichzeitig atemberaubender Aussicht auf Gmunden und den Traunsee. Großzügige Terrassen mit eigenem Pool erweitern den Wohnraum nach außen und schaffen exklusive Wohlfühlbereiche unter freiem Himmel.



Wohnen auf der Sonnenseite des Lebens

Lichtdurchflutete Räume, intelligente Grundrisse und eine hochwertige Bauweise vereinen sich zu einem Wohngefühl, das gleichermaßen stilvoll wie behaglich ist. Willkommen auf der hellen Seite des Wohnens – Welcome to the bright side.



Technik mit Weitblick

Für nachhaltigen Komfort sorgt eine zentrale Sole-Wasser-Wärmepumpe, die Heizung, Kühlung und Warmwasser effizient in einem System bündelt. So wird modernes Wohnen mit ökologischem Bewusstsein harmonisch verbunden.



Auf einen Blick

• 6 exklusive Wohneinheiten

• Jede Einheit mit großzügiger Terrasse und privatem Pool

• Höchste Privatsphäre und traumhafter Panoramaausblick

• Zentrale Sole-Wasser-Wärmepumpe für Heizung, Kühlung & Warmwasser

• Erstklassige Bauqualität in begehrter Lage von Gmunden

Infrastruktur / Entfernungen

Gesundheit
Arzt <1.500m
Apotheke <1.500m
Krankenhaus <2.500m
Klinik <3.000m

Kinder & Schulen
Schule <1.000m
Kindergarten <1.000m

Nahversorgung
Supermarkt <1.500m
Bäckerei <1.500m
Einkaufszentrum <2.500m

Sonstige
Bank <1.500m
Geldautomat <1.500m
Post <1.000m
Polizei <1.500m

Verkehr
Bus <500m
Straßenbahn <1.000m
Bahnhof <1.000m
Autobahnanschluss <8.000m
Flughafen <6.500m

Angaben Entfernung Luftlinie / Quelle: OpenStreetMap

Eckdaten Objektnr. 1068/5012

Art: Wohnung - Terrassenwohnung
Land: Österreich
Baujahr: 2025
Zustand: Erstbezug
Alter: Neubau
Kaufpreis: 2.140.780,00
Provision: 3% des Kaufpreises zzgl. 20% USt.
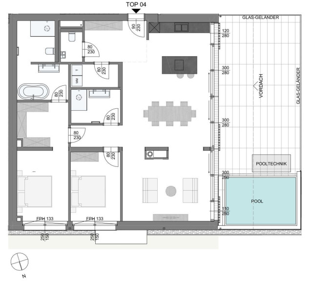
Wohnfläche: 117,00 m²
Zimmer: 3
Bäder: 2
WC: 2
Terrassen: 1
Keller: 14,00 m²
Heizwärmebedarf:  C  52,00 kWh/m²a
fGEE:  A  0,75
Immobilie merken Exposé

Ausstattung

Zentralheizung, Personenaufzug, Swimmingpool


Immobilie anfragen


Ihre persönliche Beratung

Sabine Wenzel

Traunsee Immobilien

T +43 7612 89 232

H +43 676 300 40 62

F +43 7612 89 232-30