Anlegertipp Neubauwohnung (Top 7) - „Picknick am Bauplatz“ am 10. April

Wohnung , 4694 Ohlsdorf


Beschreibung der Immobilie

Anlegertipp Neubauwohnung (Top 7) - „Picknick am Bauplatz“ am 10. April

Zentral. Zeitgemäß. Zuhause. – 12 Neubauwohnungen in Ohlsdorf, Angerweg 2





Einladung zum „Picknick am Bauplatz“



Bevor die Bagger rollen und das Fundament für Ihr neues Zuhause in Ohlsdorf gelegt wird, laden wir Sie herzlich zu einem Infotag ein. Besuchen Sie uns direkt auf der grünen Wiese – dort, wo bald modernes Wohnen entsteht.



  • WANN: Freitag, 10. April 2026
  • ZEIT: 15:00 bis 17:00 Uhr
  • WO: Bauplatz-Wiese (Zufahrt über den Angerweg 2, 4694 Ohlsdorf)


Wir sind persönlich für Sie da: Haben Sie Fragen zum Projekt, zu den Grundrissen oder zum Bauablauf? Wir beantworten sie Ihnen gerne am 10.4. direkt vor Ort in ungezwungener Atmosphäre.




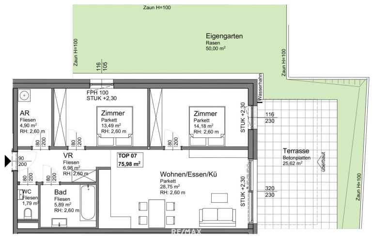
Top 7 ist eine attraktive 3-Zimmer-Wohnung im Erdgeschoss mit einer überdachten Terrasse und einem eigenen Garten, ideal für entspannte Stunden im Freien. Der offene Wohnbereich schafft eine moderne und einladende Atmosphäre. Die Wohnung verfügt über zwei Schlafzimmer und ein Badezimmer, das wahlweise mit Dusche oder Badewanne ausgestattet werden kann. Ein geräumiger Abstellraum mit Waschmaschinenanschluss bietet zusätzlichen Stauraum und praktischen Komfort.



Kaufpreis netto: € 347.328,23

zuzüglich 20 % Ust = € 416.793,88

Kaufpreis für Eigennutzer: € 399.150,00





Attraktive Anlegerwohnungen in Ohlsdorf – Ihr Investment mit kostenloser Erstvermietung

Sichern Sie sich eine von 12 Anlegerwohnungen in bester Lage von Ohlsdorf am Angerweg! Diese hochwertigen Wohneinheiten mit Wohnflächen von 42 m² bis 110 m² bieten nicht nur erstklassige Ausstattung, sondern auch eine perfekte Investitionsmöglichkeit.



Ihr Investment-Vorteil:



🔹 Kostenlose Erstvermietung auf Wunsch – sorgenfreier Start für Anleger

🔹 Nettopreise zzgl. 20 % USt. – ideal für umsatzsteuerpflichtige Käufer

🔹 Hohe Wohn- und Vermietungsqualität – durchdachte Raumaufteilung und moderne Ausstattung



Attraktive Features für Mieter & Kapitalanleger:



✔ Großzügige Terrassen oder Eigengärten für höchsten Wohnkomfort

✔ Energieeffiziente Luftwärmepumpe & Fußbodenheizung für geringe Betriebskosten

✔ Barrierefreier Zugang mit Lift für nachhaltige Vermietbarkeit

✔ Tiefgaragenplätze für stressfreies Parken

✔ Schöne Parkettböden & stilvolle Fliesen – wertige Materialien für langfristige Qualität

✔ Individuelle Planung noch möglich – gestalten Sie nach Ihren Anforderungen



Perfekte Lage für stabile Mieteinnahmen:



📍 Zentrale & ruhige Wohnsiedlung – wenige Gehminuten ins Ortszentrum

🛍 Top-Infrastruktur – Nahversorger, Einkaufsmöglichkeiten & Schulen in direkter Umgebung

🌿 Freizeitparadies – Nähe zu Traunsee, Traunstein & zahlreichen Erholungsgebieten

🚗 Beste Verkehrsanbindung – schnelle Erreichbarkeit durch Autobahnnähe



🔑 Jetzt provisionsfrei direkt vom Bauträger investieren!



Nutzen Sie diese Gelegenheit für ein sicheres & wertbeständiges Immobilieninvestment. Kontaktieren Sie uns für weitere Informationen oder einen Beratungstermin.



Besuchen Sie unsere Projektseite und erfahren Sie mehr: www.angerweg-zwei.at

Infrastruktur / Entfernungen

Gesundheit
Arzt <500m
Apotheke <2.500m
Krankenhaus <5.500m
Klinik <3.000m

Kinder & Schulen
Schule <500m
Kindergarten <500m

Nahversorgung
Supermarkt <500m
Bäckerei <500m
Einkaufszentrum <4.500m

Sonstige
Bank <500m
Geldautomat <500m
Post <500m
Polizei <3.000m

Verkehr
Bus <500m
Straßenbahn <4.500m
Bahnhof <4.000m
Autobahnanschluss <4.000m
Flughafen <5.500m

Angaben Entfernung Luftlinie / Quelle: OpenStreetMap

Eckdaten Objektnr. 1068/4962

Art: Wohnung
Land: Österreich
Baujahr: 2025
Zustand: Erstbezug
Kaufpreis: 347.328,23
Wohnfläche: 75,98 m²
Zimmer: 3
Bäder: 1
WC: 1
Terrassen: 1
Garten: 50,00 m²
Keller: 3,89 m²
Heizwärmebedarf: 40,00 kWh/m²a
Immobilie merken Exposé

Ausstattung

Erdwärme, Personenaufzug


Immobilie anfragen


Ihre persönliche Beratung

Traunsee Immobilien

Christian Sammer

Traunsee Immobilien

T +43 7612 89 232

H +43 650 31 71 003

F +43 7612 89 232-30