Eigentumswohnung mit großem Garten in der Villa Luise

Wohnung , 4810 Gmunden


Beschreibung der Immobilie

Eigentumswohnung mit großem Garten in der Villa Luise

Zum Kauf gelangt das Gartengeschoss der historischen Villa Luise mit parkähnlichem Charakter, am Ende der schönen Gmundner Esplanade - wenige Gehminuten vom bekannten Schloss Toscana und -park entfernt. Sowohl ein öffentlicher Zugang zum See als auch ein Freibad befinden sich in unmittelbarer Nähe.

Die Villa wurde von der namensgebenden hessischen Landgräfin Prinzessin Luise (Tochter von Kaiser Wilhelm I von Preußen) Mitte des 19. Jhdts. im Stil der italienischen Neorenaissance errichtet. Die Ursprungspläne dazu stammen wahrscheinlich (nicht gesichert) vom berühmten dänischen Ringstraßenarchitekten Theophil Hansen.

Derzeit ist ein Architekturbüro in diesen Räumlichkeiten untergebracht. Von diesem stammen auch die einreichfähigen, mit dem Bauamt der Gemeinde bereits abgestimmten Pläne einer Umgestaltungsmöglichkeit, die im Kaufpreis bereits inkludiert sind. Diese stellen eine denkbare Möglichkeit einer maximalen Wertschöpfung der Immobilie dar. Die Kosten des damit verbundenen Umbaus sind NICHT Bestandteil des Kaufpreises und wären vom Erwerber zu tragen. Geplant wären unter anderem eine eigen Zufahrt, Garage, Pool, Poolhaus und Glashaus...

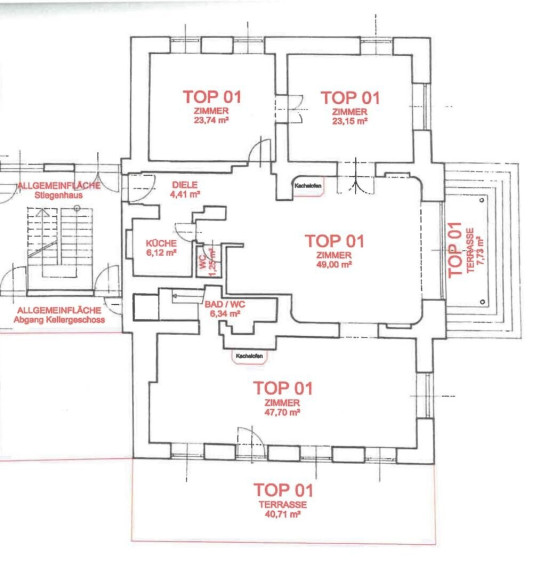
Aufgrund der langjährigen Nutzung als Büro verfügt dieses Geschoss über 4 Zimmer, Teeküche und Toilette - für Wohnzwecke ist eine dementsprechende Adaptierung des neuen Eigentümers erforderlich. Eine denkbare Umsetzung liegt bereits mit den Plänen des Architekten vor.

Eine Nutzung als Ferienimmobilie ist genehmigungsfrei möglich.


Der Vermittler ist als Doppelmakler tätig.

Infrastruktur / Entfernungen

Gesundheit
Arzt <500m
Apotheke <1.000m
Krankenhaus <1.000m
Klinik <1.000m

Kinder & Schulen
Schule <500m
Kindergarten <1.000m

Nahversorgung
Supermarkt <1.000m
Bäckerei <1.000m
Einkaufszentrum <1.500m

Sonstige
Bank <500m
Geldautomat <500m
Post <1.000m
Polizei <500m

Verkehr
Bus <500m
Straßenbahn <500m
Bahnhof <1.500m
Autobahnanschluss <6.500m
Flughafen <7.500m

Angaben Entfernung Luftlinie / Quelle: OpenStreetMap

Eckdaten Objektnr. 1068/4231

Art: Wohnung
Land: Österreich
Zustand: Gepflegt
Alter: Altbau
Kaufpreis: 1.395.000,00
Provision: 3% des Kaufpreises zzgl. 20% USt.
Wohnfläche: 162,00 m²
Zimmer: 4
Terrassen: 2
Stellplätze: 1
Garten: 1.094,89 m²
Heizwärmebedarf:  G  281,00 kWh/m²a
fGEE:  E  2,51
Immobilie merken Exposé

Ausstattung

Gas, Etagenheizung


Immobilie anfragen


Ihre persönliche Beratung

Traunsee Immobilien

Margit Haider

Traunsee Immobilien

T +43 7612 89 232

H +43 699 16 89 23 20

F +43 7612 89 23230