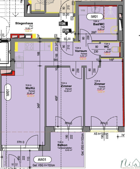
3-Zimmer Familienwohnung-Terrasse südseitig-Erstbezug

Wohnung - Etage, 1220 Wien,Donaustadt


Die angrenzende Kirschenallee mit Schulen, Fußball-/Tennisverein und einer großen Parkanlage mit Spiel- & Sportplätzen ist nur wenige Gehminuten entfernt. Ebenso die Esslinger Hauptstrasse, die nicht nur zahlreiche Möglichkeiten für Nahversorgung bietet, sondern auch den Anschluss zum öffentlichen Nahverkehr hat. Der Nationalpark Lobau ist weniger als 1 km entfernt. Die Buslinien 26a / 98a nach Aspern und 88a in Richtung Seestadt brauchen nur wenige Minuten bis zu einer U2 Station. Die U2 bringt einen binnen 15-20 Minuten in das pulsierende Wiener Stadtzentrum. In der nahegelegenen Seestadt (ca. 1.5 km Entfernung) finden Sie die nächste Bücherei, Ärzte für Mensch & Tier, Restaurants und den wunderschönen Asperner See.

Beschreibung der Immobilie

3-Zimmer Familienwohnung-Terrasse südseitig-Erstbezug

Neubau Projekt im Herzen von Wien Essling mit 19 schlüsselfertigen Eigentumswohnungen auf Eigengrund.



Die hochwertig ausgestatteten 2-4 Zimmer Wohnungen verfügen alle über einen Außenbereich – entweder Garten, Balkon, Terrasse oder Loggia.



Alle Einheiten werden schlüsselfertig verkauft und sind hochwertig ausgestattet.



AUSSTATTUNG:

Kunststoff / Alu Fenster mit 3-fach Verglasung

Beschattung Raffstores

Dachflächenfenster Kipp-/Schwing Fenster von Velux

Wohnungseingangstüre EI²30-C Brandschutz in Sicherheitsklasse WK 1 oder 2 mit Mehrfach Verriegelung, Türspion & Beschläge in Chrom von Firma DANA oder KUNEX

Innentüren glatt mit Beschlägen aus Chrom

Freisprechanlage (ohne Video) von Bticino oder gleichwertig

Ausstattung der Badezimmer mit Sanitärgegenständen von Laufen, Geberit, Grohe und Hans Grohe. Handtuchheizkörper mit E-Patrone.

Vorräume, Badezimmer und WC´s werden mit Feinsteinzeug Minimum Größe 60x60 cm ausgestattet.

Wohnräume, Küche – Parkett (Eiche) wird vollflächig verklebt.

Terrassenbelag – Steinplatten 120 x 60 

Klimaanlagen Vorbereitung im Dachgeschoss

Energieeffiziente Luft-Wärmepumpe mit Heizzentrale im Keller

Regelung der Heizung in den Wohnungen über ein Raumthermostat

Fußbodenheizung in allen Räumen



SONSTIGES:

Kein Baurecht, kein Pachtgrund - Eigengrund



HAFTUNGSAUSSCHLUSS:

Wir weisen darauf hin, dass sämtliche Daten im vorliegenden Angebot, sowie die von unserem Büro an Sie weitergegebenen Auskünfte, vom Eigentümer der Immobilie zur Verfügung gestellt wurden. Ebenso sind Informationen von Dritten (z.B. behördliche Informationen) eingeholt worden, auch für diese können wir unsererseits keinerlei Haftung für deren uneingeschränkte Richtigkeit übernehmen. 

Infrastruktur / Entfernungen

Gesundheit
Arzt <1.000m
Apotheke <500m
Klinik <2.000m
Krankenhaus <4.000m

Kinder & Schulen
Schule <500m
Kindergarten <500m
Universität <1.000m
Höhere Schule <1.500m

Nahversorgung
Supermarkt <500m
Bäckerei <500m
Einkaufszentrum <2.500m

Sonstige
Geldautomat <2.500m
Bank <1.000m
Post <1.000m
Polizei <2.000m

Verkehr
Bus <500m
U-Bahn <1.500m
Straßenbahn <2.500m
Bahnhof <1.500m
Autobahnanschluss <5.500m

Angaben Entfernung Luftlinie / Quelle: OpenStreetMap

Eckdaten Objektnr. 7831/57

Art: Wohnung - Etage
Land: Österreich
Baujahr: 2025
Zustand: Erstbezug
Alter: Neubau
Kaufpreis: 349.000,00
Provision: 3% des Kaufpreises zzgl. 20% USt.
Wohnfläche: 55,43 m²
Nutzfläche: 64,83 m²
Zimmer: 3
WC: 1
Terrassen: 1
Heizwärmebedarf:  B  45,10 kWh/m²a
fGEE:  A+  0,70
Immobilie merken Exposé

Ausstattung

Fliesen, Parkettboden, Fußbodenheizung, Personenaufzug, Südbalkon, Dusche


Immobilie anfragen


Ihre persönliche Beratung

NIS Immobilien GmbH

Nicole Strassmeier

NIS Immobilien GmbH

T +43 676 380 66 24

H +43 676 3806624