PROVISIONSFREI ! Exklusive Eigentumswohnungen mit Freifläche , Erstbezug Nachhaltig

Wohnung , 2344 Maria Enzersdorf


Das Projekt befindet sich in Maria Enzersdorf und bietet eine ideale Kombination aus Natur, Ruhe und urbaner Infrastruktur. In unmittelbarer Umgebung finden Sie: Nahversorger, Apotheke und Ärztezentrum Kindergärten und Schulen Busverbindungen nach Mödling, Perchtoldsdorf und Wien das Landesklinikum Mödling Für Freizeit und Erholung liegen Naturpark Föhrenberge, Weinberge sowie die Burg Liechtenstein nur wenige Minuten entfernt. Die Anbindung an die A2, S1 und A21 ist ebenfalls schnell erreichbar und ermöglicht eine rasche Verbindung nach Wien und in die umliegenden Regionen.

Beschreibung der Immobilie

PROVISIONSFREI ! Exklusive Eigentumswohnungen mit Freifläche , Erstbezug Nachhaltig

Exklusive Neubau-Eigentumswohnungen mit Freiflächen – „Die Oase“ in Maria Enzersdorf



Projektbeschreibung



Willkommen in „Die Oase“ in Maria Enzersdorf – einem exklusiven Neubauprojekt mit hochwertig ausgestatteten Eigentumswohnungen in ruhiger Grünlage südlich von Wien. Das Projekt verbindet modernes Wohnen, nachhaltige Bauweise und hervorragende Infrastruktur zu einem Wohnkonzept mit hoher Lebensqualität. 



Insgesamt umfasst das Projekt 26 Wohnungen, jede individuell geplant und mit großzügigen Freiflächen wie Terrassen, Loggien oder privaten Gärten. Die Architektur legt besonderen Wert auf lichtdurchflutete Räume, offene Grundrisse und eine hochwertige Materialauswahl. 



Die Wohnungen sind ideal für Singles, Paare oder Familien, die urbanen Komfort mit ruhigem Wohnen im Grünen verbinden möchten.





Wohnungsangebot




  • 1 bis 5 Zimmer Wohnungen



  • Gartenwohnungen mit privaten Grünflächen



  • Wohnungen mit Loggia oder großzügigen Terrassen



  • exklusive Penthouses mit Dachterrassen und Weitblick



  • individuell geplante Grundrisse – jede Einheit ein Unikat




Kaufpreise ab ca. € 293.300,- (je nach Größe und Lage der Wohnung). 





Ausstattung & Highlights



Die Wohnungen überzeugen durch hochwertige Ausstattung und nachhaltige Technik:




  • Luftwärmepumpe (Energieeffizienz A++)



  • Photovoltaikanlage und begrünte Dächer



  • Fußbodenheizung



  • hochwertige 3-fach verglaste Aluminiumfenster



  • edles Eichenparkett und großformatige Feinsteinzeugfliesen



  • hochwertige Bad- und Fliesenausstattung von Porcelanosa



  • Vorbereitung für Klimaanlage



  • großzügige Terrassen, Loggien oder Eigengärten



  • Edelstahlgeländer und hochwertige Holzfassade



  • Lift und direkter Zugang zur Garage



  • E-Mobilitäts-Lademöglichkeiten




Die Bauweise mit Holz- und Massivbauelementen sowie moderner Dämmung sorgt für niedrige Betriebskosten und ein angenehmes Raumklima



Interesse geweckt?



Für Fragen oder die Vereinbarung eines Besichtigungstermins steht Ihnen Frau Magalie Felsinger gerne zur Verfügung:



📞 0664 103 20 25
🌐 www.ringsmuth-immobilien.at



Irrtümer und Änderungen vorbehalten.

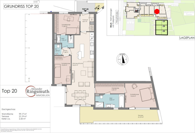
4-Zimmer-Dachgeschosswohnung – „Die Oase“ Maria Enzersdorf



In der modernen Wohnanlage „Die Oase“ in Maria Enzersdorf steht diese großzügige 4-Zimmer-Dachgeschosswohnung zum Verkauf. Sie überzeugt durch eine durchdachte Raumaufteilung, helle Wohnbereiche und eine großzügige Terrasse für zusätzlichen Wohnkomfort im Freien.



Eckdaten:




  • Wohnfläche: 99,17 m²



  • Wohnen/Küche 36,60 m²



  • 1 Schlafzimmer 10,03 m²



  • 2 Schlafzimmer 11,06 m²



  • 3 Schlafzimmer 15,34 m²



  • Garderobe 6,45 m²



  • Bad 8,25 m²



  • Bad 3,96 m²



  • WC 1,59 m²



  • Gang 1,08 m²



  • Vorraum 4,81 m²



  • Terrasse/Balkon: 21,19 m²



  • Kellerabteil: 2,35 m²




Raumaufteilung und Wohngefühl
Der offene Wohn- und Essbereich bildet das Zentrum der Wohnung und bietet Zugang zur Terrasse. Die weiteren drei Zimmer eignen sich ideal als Schlafzimmer, Kinderzimmer oder Homeoffice. Große Fensterflächen sorgen für viel Tageslicht und ein freundliches, offenes Ambiente.



Außenbereich
Die großzügige Terrasse erweitert den Wohnraum nach außen und bietet viel Platz für Erholung und Freizeitgestaltung.





Interesse geweckt?



Für Fragen oder die Vereinbarung eines Besichtigungstermins steht Ihnen Frau Magalie Felsinger gerne zur Verfügung:



📞 0664 103 20 25
🌐 www.ringsmuth-immobilien.at



Irrtümer und Änderungen vorbehalten.

Infrastruktur / Entfernungen

Gesundheit
Arzt <500m
Apotheke <500m
Klinik <1.000m
Krankenhaus <1.000m

Kinder & Schulen
Schule <500m
Kindergarten <500m
Höhere Schule <1.500m

Nahversorgung
Supermarkt <500m
Bäckerei <500m
Einkaufszentrum <1.000m

Sonstige
Bank <500m
Geldautomat <500m
Post <500m
Polizei <500m

Verkehr
Bus <500m
U-Bahn <5.500m
Straßenbahn <5.000m
Bahnhof <1.000m
Autobahnanschluss <3.000m

Angaben Entfernung Luftlinie / Quelle: OpenStreetMap

Eckdaten Objektnr. 16776

Art: Wohnung
Land: Österreich
Baujahr: 2025
Zustand: Erstbezug
Alter: Neubau
Kaufpreis: 886.000,00
Provision: Provision bezahlt der Abgeber.
Betriebskosten: 247,18 €
Wohnfläche: 99,17 m²
Zimmer: 4
Bäder: 2
WC: 2
Keller: 2,35 m²
Heizwärmebedarf:  B  46,00 kWh/m²a
fGEE:  A  0,73
Immobilie merken Exposé

Ausstattung

Parkett, Fliesen, Fußbodenheizung, Personenaufzug, Badewanne, Dusche, Tiefgarage


Immobilie anfragen


Ihre persönliche Beratung

Alexander Ringsmuth GmbH

Magalie Felsinger

Alexander Ringsmuth GmbH

T 01 3709098

H 06641032025