10 Minuten zum Auhof Center! ERSTBEZUG! Doppelhaushälfte mit 170 m2 Wohnfläche in ruhiger Wohnlage mit Grünblick!

Haus - Doppelhaushälfte, 3001 Mauerbach


Untermauerbach an der Grenze zum 14. Wiener Bezirk

Beschreibung der Immobilie

10 Minuten zum Auhof Center! ERSTBEZUG! Doppelhaushälfte mit 170 m2 Wohnfläche in ruhiger Wohnlage mit Grünblick!

ERSTBEZUG, Doppelhaushälfte in Untermauerbach in absoluter Grünruhelage! 10 Minuten zum Auhof Center! 



Sollten Sie einen Besichtigungstermin wünschen, ersuchen wir Sie, diesen ausschließlich telefonisch unter 0699 12 47 15 92 mit Herrn Bigus zu vereinbaren.



+ Ziegelmassivbauweise 

+ 2 Parkplätzen vor der Tür

+ Fussbodenheizung mittels effizienter Vaillant Erdwärmepumpe

+ Fussbodenkühlung mittels Erdwärmepumpe

+ Inklusive Küche, Badezimmerausstattung und Zentralstaubsauger 

+ 5 Zimmer, 170,19 m² Wohnnutzfläche, 22,43 m² Terrasse, 13,80 m2 Balkon, Haus A mit 135,53 m² Garten bzw. Haus B mit 133,70 m² Garten

+ bereits fertiggestellt und sofort bezugsbereit!



Vermietet wird eine Doppelhaushälfte in Ziegelmassivbauweisein Untermauerbach welche neu errichtet wurde. Das Haus verfügt über 5 Zimmer und die Wohnfläche beläuft sich auf 170,19 m2 aufgeteilt auf drei Geschosse. Der Garten ist 133,70 m2 groß. Das Haus ist bereits fertiggestellt und kann sofort bezogen werden. 



Das Haus teilt sich wie folgt auf: 



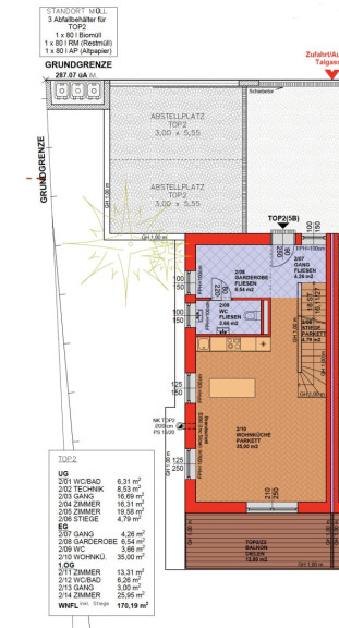
Erdgeschoß mit 49,46 m2:



- ein großzügiger Eingangsbereich

- eine 35 m2 große Wohnküche mit Ausgang zum 13,80 m2 großen Balkon

- ein separate Toilette mit Handwaschbecken und Fenster 



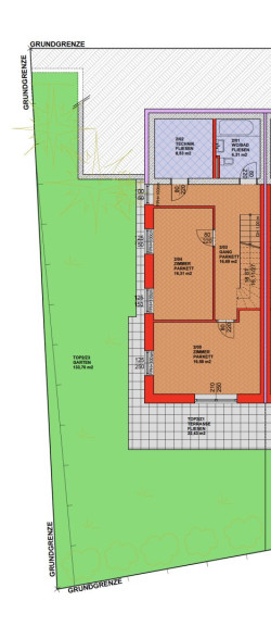
Im 72,21 m2 großen Untergeschoss:



- ein geräumiger Flur von dem aus alle Räume separat begehbar sind

- ein 19,58 m2 großes, helles Schlafzimmer mit Zugang zur 22,43 m2 großen Terrasse und 133,70 m2 großen Garten 

- ein weiteres zirka 16,31 m2 großes Schlafzimmer

- ein geräumiges Badezimmer mit Badewanne und Toilette

- ein Technikraum 



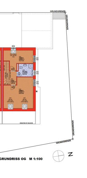
Im 48,82 m2 großen Obergeschoss:



- ein 13,31 m2 Arbeits- oder Schlafzimmer

- ein geräumiges Badezimmer mit Dusche und Toilette

- ein 25,95 m2 großes Schlafzimmer



Es sind 2 Autoabstellplätze vorhanden. Die Beheizung und Kühlung erfolgt über eine Fußbodenheizung bzw. Fussbodenkühlung mit einer effizienten Erdwärmepumpe von Vaillant. Ein 375 Liter Warmwasserspeicher ist installiert. 



Infrastruktur:



Die Lage des Hauses ist als absolute Ruhelage in einer Wohnsiedlung zu bezeichnen. Der nächstgelegene Bahnhof befindet sich 4,5 km entfernt und ist der Bahnhof Hadersdorf ( Schnellbahn 50) im 14. Wiener Gemeindebezirk. Supermärkte, Billa und Spar befindet sich auf der Hauptstraße in Mauerbach. Der nächstgelegene Kindergarten und die Volksschule sowie die nächste Apotheke befinden sich ebenfalls in Mauerbach, 4 Autominuten entfernt. Das Einkaufszentrum Auhof und die A1 Westautobahn ist in 10 Autominuten erreichbar. 



Öffentliche Verkehrsmittel: Bus 450, Bus 458, Bahnhof Hadersdorf in 4,5 km erreichbar, Schnellbahn S50 Richtung U4 Hütteldorf, U3, U6 Westbahnhof 



Kosten & Dauer:



Hauptmiete inkl. Betriebskosten und Ust: 2.490,30,- Euro pro Monat 
Heizkosten und Stromkosten nach Verbrauch! 

Kaution: 10.000 Euro 

Das Haus wird auf 5 Jahre befristet mit Verlängerungsoption vermietet. 

Verfügbar AB SOFORT! 





Verfügbare Einheiten:



Haus 5A: 170,19 m² Wohnnutzfläche, 22,43 m² Terrasse, 13,80 m2 Balkon, 135,53 m² Garten

Haus 5B: 170,19 m² Wohnnutzfläche, 22,43 m² Terrasse, 13,80 m2 Balkon, 133,70 m² Garten - RESERVIERT

Haus 3A: 189,07 m² Wohnnutzfläche, 27,51m² Terrasse, 12,50 m2 Balkon, 80,87 m² Garten



Kontakt und Besichtigungstermine



Sollten Sie einen Besichtigungstermin wünschen, ersuchen wir Sie, diesen ausschließlich telefonisch unter 0699 12 47 15 92 mit Herrn Bigus zu vereinbaren.








Der Immobilienmakler erklärt, dass er – entgegen dem in der Immobilienwirtschaft üblichen Geschäftsgebrauch des Doppelmaklers – einseitig nur für den Vermieter tätig ist.

Infrastruktur / Entfernungen

Gesundheit
Arzt <1.000m
Apotheke <1.000m
Klinik <8.000m
Krankenhaus <7.000m

Kinder & Schulen
Schule <3.500m
Kindergarten <3.500m
Universität <4.500m
Höhere Schule <10.000m

Nahversorgung
Supermarkt <1.000m
Bäckerei <2.500m
Einkaufszentrum <4.500m

Sonstige
Geldautomat <2.000m
Bank <2.000m
Post <2.500m
Polizei <1.000m

Verkehr
Bus <500m
Straßenbahn <6.500m
U-Bahn <7.000m
Bahnhof <4.000m
Autobahnanschluss <4.500m

Angaben Entfernung Luftlinie / Quelle: OpenStreetMap

Eckdaten Objektnr. 5565

Art: Haus - Doppelhaushälfte
Land: Österreich
Baujahr: 2022
Zustand: Erstbezug
Alter: Neubau
Gesamtmiete: 2.490,40
Kaltmiete (netto): 2.094,00 €
Kaltmiete: 2.264,00 €
Provision: Gemäß Erstauftraggeberprinzip bezahlt der Abgeber die Provision.
Betriebskosten: 170,00 €
MwSt Gesamt: 226,40 €
Wohnfläche: 170,19 m²
Zimmer: 5
Bäder: 2
WC: 3
Balkone: 1
Terrassen: 1
Stellplätze: 2
Garten: 133,70 m²
Heizwärmebedarf:  B  36,50 kWh/m²a
fGEE:  A+  0,70
Immobilie merken Exposé

Ausstattung

Parkett, Fliesen, Erdwärme, Fußbodenheizung, Wohnküche / offene Küche, Bad mit Fenster, Badewanne, Dusche, Parkplatz, Wasch/Trockenraum


Immobilie anfragen


Ihre persönliche Beratung

Immobilienquartier

Peter Bigus

immobilienquartier IQ OG

T +43699 124 715 92

H +43699 124 715 92