Attraktives Geschäftslokal | Graumann Lofts

Einzelhandel , 4050 Traun , Bahnhofstraße 10


Beschreibung der Immobilie

Attraktives Geschäftslokal | Graumann Lofts

> Traun | Geschäftslokal | Mieten <
Die Graumann-Lofts im Erdgeschoss sind moderne, nutzungsoffene Räume für Ihre Geschäftstüchtigkeit.



Sie haben eine starke Geschäftsidee und suchen den idealen Standort dafür?

Dieses Geschäftslokal im Erdgeschoss der Graumann-Lofts bietet beste Voraussetzungen für Ihren erfolgreichen Auftritt.



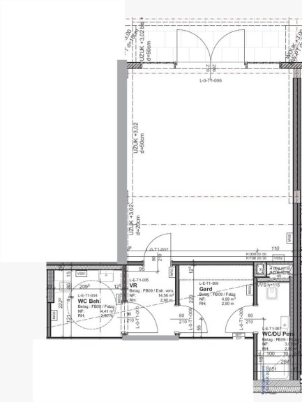
Die Einheit überzeugt mit einem barrierefreien Zugang, rund 47 m² Nutzfläche und einer beeindruckenden Raumhöhe von ca. 3 Metern. Eine moderne Nasszelle mit Dusche, Waschbecken und WC ist selbstverständlich vorhanden.



Besonderes Highlight ist die großzügige Schaufensterfront entlang der Trauner Einkaufsstraße: Hier rücken Sie Ihre Produkte und Dienstleistungen wirkungsvoll ins Blickfeld – sichtbar, präsent und einladend.



Das neuwertige Gebäude liegt in absoluter Zentrumslage und punktet mit hoher Frequenz. Die Lofts in den oberen Geschoßen sowie rund 90 neue Wohnungen im Graumann-Viertel sorgen für lebendiges Umfeld und kaufkräftige Laufkundschaft. Zusätzlich ist Traun Standort zahlreicher nationaler und internationaler Großunternehmen – ein Umfeld, das wirtschaftliche Stärke und Potenzial vereint.



Top-Argumente der Geschäftslokale:
- Sanitärbereich mit Dusche, WC und Waschbecken

- Boden: versiegelter Estrich, Fliesen im Sanitärbereich

- Heizung: Fernwärme, Konvektoren

- Kühlung: Konvektoren mit Wasser-Wasser-Kälteaggregat mittels Grundwasserbrunnen

- Tiefgaragen-Stellplätze, Oberflächenstellplätze, Fahrradabstellplätze

- Leuchtschilder vor jedem Geschäftseingang

- flexible Vertragsdauer (Mindestvertragsdauer 1 Jahr)

- Untervermietung ausdrücklich erlaubt

- sehr gute Infrastruktur vor der Haustür

- Geschäftslokal schon ab € 647,- netto exkl. BK



Lage
Rund um die Graumann-Lofts sind in unmittelbarer Nähe Post, Banken, Stadtamt und das Bezirksgericht. Straßenbahn, Zug und Bus fahren fast direkt vor der Haustüre los. Die Nähe zum Flughafen und die gute Erreichbarkeit sowohl mit dem PKW als auch mit den öffentlichen Verkehrsmitteln verstärken diesen Standort. Auch Nahversorger, Gastronomie und medizinische Versorgung sind direkt vor Ort. Für Selbstständige bieten die 26.000 Unternehmen im Umkreis ein starkes ökonomisches Netzwerk aus zukünftigen Partnern und Kunden.



Direkt neben den Lofts ergänzen drei moderne Stadthäuser das Ensemble – eingebettet in eine grüne Ruheoase mit hoher Aufenthaltsqualität. Das neu entwickelte, zukunftsorientierte Stadtviertel verbindet Wohnen und Arbeiten auf ideale Weise: Rund 300 Menschen haben hier ihr Zuhause gefunden, etwa 150 gehen im Viertel ihrer beruflichen Tätigkeit nach..



Kosten und Dauer
Die angegebenen Preise verstehen sind exkl. Betriebskosten



Die Heiz- und Kühlkosten werden direkt über Zähler ermittelt und entsprechend nach Verbrauch abgerechnet.

Als Nebenkosten ist die Vergebührung des Mietvertrages zu berücksichtigen. Diese richtet sich flexibel nach der Dauer des Mietvertrages.



Wir können Ihnen eine flexible Vertragsdauer anbieten. Die Mindestvertragsdauer beträgt 1 Jahr.

Eine Untervermietung der Räumlichkeiten ist ausdrücklich erlaubt und auch erwünscht.



Fazit
Nutzen Sie diese Topgelegenheit und starten Sie los!

Ihr Konzept und Ihre Geschäftstüchtigkeit sind gefragt!



Unverbindliches, freibleibendes Angebot. Informationen nach bestem Wissen und Gewissen vom Abgeber erhalten - für die Richtigkeit wird keine Haftung übernommen. Irrtümer, Druckfehler und Änderungen vorbehalten. Besichtigungen und Beratungen erfolgen kostenlos, lediglich im Falle einer erfolgreichen Vermittlungstätigkeit ist die gesetzliche bzw. angeführte Provision in Höhe von 3 Bruttomonatsmieten zzgl. 20% USt. zur Zahlung fällig. Es besteht zwischen dem Vermittler und dem Abgeber ein wirtschaftliches Naheverhältnis. Der Vermittler ist als Doppelmakler tätig

Noch nichts gefunden? Wir informieren Sie über geeignete Immobilienangebote noch vor allen anderen.
Legen Sie jetzt Ihren individuellen Suchagenten unter folgendem Link an. Wir schicken Ihnen passende Immobilien exklusiv vorab zu.

Suchagent anlegen - https://boss-immobilien.service.immo/registrieren/de


Wir weisen darauf hin, dass zwischen dem Vermittler und dem zu vermittelnden Dritten ein familiäres oder wirtschaftliches Naheverhältnis besteht.


Der Vermittler ist als Doppelmakler tätig.

Infrastruktur / Entfernungen

Gesundheit
Arzt <150m
Apotheke <200m
Klinik <1.625m
Krankenhaus <7.850m

Kinder & Schulen
Kindergarten <300m
Schule <250m
Universität <5.725m
Höhere Schule <9.925m

Nahversorgung
Supermarkt <150m
Bäckerei <125m
Einkaufszentrum <2.575m

Sonstige
Bank <100m
Geldautomat <100m
Post <400m
Polizei <225m

Verkehr
Bus <25m
Straßenbahn <300m
Bahnhof <1.075m
Autobahnanschluss <2.425m
Flughafen <4.125m

Angaben Entfernung Luftlinie / Quelle: OpenStreetMap

Verfügbare Flächen

Stiege/Bauteil


Stockwerk
Top
Art
Fläche
Terrasse
Nettomiete/m²
BK/m²

-
-
Einzelhandel
46,70 m2
-
-

verfügbare flächen

Stiege/Bauteil

Stockwerk
Top
Art
Fläche
Teilbar ab
Terrasse
Nettomiete/m2 von-bis
BK/m2
-
-
Einzelhandel
46,70 m2
-
-
-
-

Eckdaten Objektnr. 3834

Art: Einzelhandel
Land: Österreich
Baujahr: 2022
Zustand: Erstbezug
Alter: Neubau
Kaltmiete (netto): 647,00 €
Kaltmiete: 647,00 €
Provision: 3 Bruttomonatsmieten zzgl. 20% USt.
Nutzfläche: 46,70 m²
Zimmer: 1
Bäder: 1
WC: 1
Heizwärmebedarf:  B  35,00 kWh/m²a
fGEE:  A  0,83
Immobilie merken Exposé

Ausstattung

Fußbodenheizung, Zentralheizung, Personenaufzug, Dusche, Parkplatz, Tiefgarage


Immobilie anfragen


Ihre persönliche Beratung

BOSS Immobilien GmbH

Ing. Thomas Zitta

BOSS Immobilien GmbH

T +43 7229 66 33 6 17

H +43 664 85 85 218