#SQ - 3 ZIMMER MIT DACHTERRASSE UND GARAGE NÄHE SCHÖNBRUNN

Wohnung - Loft-Studio-Atelier, 1120 Wien


Die Liegenschaft befindet sich in sehr guter Lage, direkt bei Schönbrunn! Kindergärten, Schulen sowie Geschäfte für den täglichen Bedarf befinden sich in Gehreichweite. Die Innenstadt ist ca. 15 Minuten mit dem Auto entfernt oder direkt mit der U4 innerhalb von 10 Minuten zu erreichen. Für all Jene, die gerne Sport betreiben oder einfach nur einen gemütlichen Spaziergang machen möchten, bietet sich Schönbrunn perfekt an - nur 2 Minuten zu Fuß entfernt. Öffentliche Verkehrsmittel: U4, Bus 10A

Beschreibung der Immobilie

#SQ - 3 ZIMMER MIT DACHTERRASSE UND GARAGE NÄHE SCHÖNBRUNN

Zum Verkauf gelangt ein helles und ruhig gelegenes Objekt mit Dachterrasse direkt bei Schönbrunn!

Eine Garage ist im Haus vorhanden. Ein Stellplatz kann gegen Aufpreis erworben werden.



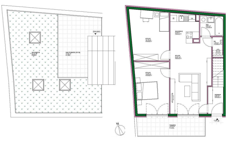
Eckdaten im Überblick:



Gewichtete WNFL: ca. 110,05m²

Wohnfläche: ca. 70,82m²

Terrasse: 2 (ca. 28,43m²)

Dachgarten: 2 (ca. 50,03m²)

Küche: ja, komplett ausgestattet

Zimmer: 3

Bad: 1

WC: 1

Garage: optional

Lift: ja



Raumaufteilung:
Vorraum

Wohnzimmer mit Wohnküche

2 Schlafzimmer, hofseitig

Bad mit Badewanne

sep. WC mit Waschbecken

Terrasse



2. Ebene:
Terrasse und Dachgarten



Kosten:
KP: EUR 590.000,--

Provision: 3% vom Kaufpreis zzgl. 20% USt.



Stellplatz: EUR 20.000,--


Wir weisen darauf hin, dass zwischen dem Vermittler und dem zu vermittelnden Dritten ein familiäres oder wirtschaftliches Naheverhältnis besteht.


Der Vermittler ist als Doppelmakler tätig.

Infrastruktur / Entfernungen

Gesundheit
Arzt <500m
Apotheke <500m
Klinik <500m
Krankenhaus <2.500m

Kinder & Schulen
Schule <500m
Kindergarten <500m
Universität <1.000m
Höhere Schule <1.500m

Nahversorgung
Supermarkt <500m
Bäckerei <1.000m
Einkaufszentrum <500m

Sonstige
Geldautomat <1.000m
Bank <1.000m
Post <500m
Polizei <1.000m

Verkehr
Bus <500m
U-Bahn <500m
Straßenbahn <1.000m
Bahnhof <500m
Autobahnanschluss <3.000m

Angaben Entfernung Luftlinie / Quelle: OpenStreetMap

Eckdaten Objektnr. 21412

Art: Wohnung - Loft-Studio-Atelier
Land: Österreich
Baujahr: 2015
Alter: Neubau
Kaufpreis: 590.000,00
Provision: 3% des Kaufpreises zzgl. 20% USt.
Betriebskosten: 254,20 €
MwSt Gesamt: 25,42 €
Wohnfläche: 70,82 m²
Zimmer: 3
Bäder: 1
WC: 1
Terrassen: 2
Garten: 50,03 m²
Heizwärmebedarf:  C  63,20 kWh/m²a
fGEE:  A  0,80
Immobilie merken Exposé

Ausstattung

Fliesen, Parkett, Fernwärme, Wohnküche / offene Küche, Personenaufzug, Badewanne, Kabel/Satelliten-TV


Immobilie anfragen


Ihre persönliche Beratung

STADTQUARTIER Home GmbH

Mona Taghavi

STADTQUARTIER Real Estate Group

T +43650 2311113

H +43650 2311113