Provisionsfrei im Florea: Helle 3-Zimmer Wohnung mit Balkon – ruhige Wohnlage

Wohnung - Etage, 2201 Gerasdorf bei Wien


Beschreibung der Immobilie

Provisionsfrei im Florea: Helle 3-Zimmer Wohnung mit Balkon – ruhige Wohnlage

Ein Zuhause zwischen Natur und Stadt



Mit Floréa entsteht im 22. Wiener Gemeindebezirk ein modernes, provisionsfreies Wohnprojekt, das urbanes Wohnen mit einer naturnahen Umgebung verbindet. Die Wohnanlage umfasst 33 Eigentumswohnungen sowie eine Geschäftsfläche im Erdgeschoss und bietet ein vielseitiges Wohnangebot für unterschiedliche Lebenssituationen.   



Die Wohnungen verteilen sich über mehrere Geschosse und bieten durchdachte 2- bis 4-Zimmer-Grundrisse mit Wohnflächen von etwa 36 m² bis rund 83 m². Großzügige Fensterflächen sorgen für helle Räume und schaffen eine angenehme Wohnatmosphäre.  



Ein besonderes Merkmal des Projekts ist das konsequent umgesetzte Freiflächenkonzept: Jede Wohnung verfügt über eine private Außenfläche – sei es in Form eines Balkons, einer Terrasse, eines Eigengartens oder einer großzügigen Dachterrasse. Dadurch erweitert sich der Wohnraum nach draußen und schafft zusätzlichen Raum zum Entspannen und Genießen.  



Auch architektonisch setzt das Gebäude einen modernen Akzent. Klare Linien, helle Fassadenflächen und grüne



Gestaltungselemente prägen das Erscheinungsbild und verleihen der Anlage eine freundliche und zeitgemäße Ausstrahlung.



Neben den Wohnungen stehen praktische Gemeinschaftsbereiche wie Fahrrad- und Kinderwagenräume zur Verfügung. Eine hauseigene Tiefgarage mit Stellplätzen ermöglicht komfortables Parken direkt im Gebäude.  



So entsteht mit Floréa ein Wohnprojekt, das modernes Wohnen, großzügige Freiräume und eine angenehme Umgebung miteinander verbindet.





Das Projekt im Überblick



  • Neubauprojekt mit 33 Eigentumswohnungen
  • zusätzliche Geschäftsfläche im Erdgeschoss
  • 2- bis 4-Zimmer-Wohnungen
  • Wohnflächen von ca. 36 m² bis ca. 83 m²
  • Wohnungen mit Balkon, Terrasse, Eigengarten oder Dachterrasse
  • Wohnhausanlage über mehrere Geschosse
  • Tiefgarage mit PKW-Stellplätzen
  • Fahrradabstellräume und Kinderwagenraum im Gebäude
  • modernes Wohnprojekt in der Donaustadt 




Ausstattungshighlights



Bei der Planung der Wohnungen wurde besonderer Wert auf eine hochwertige und zeitgemäße Ausstattung gelegt, die Komfort und Energieeffizienz miteinander verbindet.



  • Fußbodenheizung in allen Wohnungen
  • Wärmeversorgung über eine energieeffiziente Luft-Wasser-Wärmepumpe
  • hochwertige Sanitärausstattung in Bad und WC
  • Fliesen in den Nassräumen
  • Parkettböden in Wohn- und Schlafräumen
  • großzügige Fensterflächen für helle Wohnräume
  • private Freiflächen bei jeder Wohnung
  • energieeffiziente Bauweise mit guten Energiekennwerten (HWB rund 28 kWh/m²a, fGEE ca. 0,74)




Lage



Die Wohnanlage Floréa befindet sich im 22. Wiener Gemeindebezirk und liegt in einer Wohngegend, die sich durch ihre angenehme Kombination aus naturnaher Umgebung und guter Infrastruktur auszeichnet.



In der Umgebung stehen zahlreiche Einkaufsmöglichkeiten für den täglichen Bedarf zur Verfügung. Supermärkte, Geschäfte und weitere Nahversorger sorgen für eine komfortable Versorgung im Alltag. Ergänzt wird das Angebot durch Gastronomiebetriebe und unterschiedliche Dienstleister im Umfeld.  



Auch Familien profitieren von der guten Infrastruktur: Kindergärten, Schulen sowie weitere Bildungseinrichtungen befinden sich in der näheren Umgebung und sind bequem erreichbar. Medizinische Einrichtungen wie Arztpraxen und Apotheken tragen zusätzlich zu einer gut ausgebauten Nahversorgung bei.  



Die Anbindung an den öffentlichen Verkehr ist ebenfalls sehr gut. Mehrere Buslinien sowie Straßenbahnverbindungen in der Umgebung ermöglichen eine rasche Verbindung innerhalb des Bezirks und zu wichtigen Verkehrsknotenpunkten. Von dort bestehen Anschlüsse an die U-Bahnlinien U1 und U6, wodurch auch andere Stadtteile sowie die Wiener Innenstadt gut erreichbar sind.  



Ein besonderer Vorteil der Lage ist die Nähe zu zahlreichen Grün- und Freizeitflächen. Der Hirschstettner Badeteich zählt zu den beliebten Erholungsgebieten der Donaustadt und lädt zu entspannten Stunden am Wasser ein. Auch Parks und Grünanlagen sowie die Blumengärten Hirschstetten bieten vielfältige Möglichkeiten für Spaziergänge, Sport oder Freizeit im Grünen.  



Darüber hinaus befinden sich größere Einkaufs- und Freizeitangebote wie das Donauzentrum sowie die weitläufigen Erholungsgebiete rund um Donauinsel und Donaupark in komfortabler Reichweite. Damit verbindet die Lage naturnahe Ruhe mit den Vorteilen einer urbanen Infrastruktur.





Renderings: Symbolbilder (c) bildraum.at / IC-KI Visualisierungen

Infrastruktur / Entfernungen

Gesundheit
Arzt <3.000m
Apotheke <1.500m
Klinik <4.500m
Krankenhaus <4.500m

Kinder & Schulen
Schule <1.000m
Kindergarten <2.000m
Universität <4.000m
Höhere Schule <5.500m

Nahversorgung
Supermarkt <1.500m
Bäckerei <1.500m
Einkaufszentrum <3.500m

Sonstige
Bank <1.500m
Geldautomat <1.500m
Post <1.500m
Polizei <1.500m

Verkehr
Bus <500m
U-Bahn <2.500m
Straßenbahn <4.500m
Bahnhof <1.000m
Autobahnanschluss <2.500m

Angaben Entfernung Luftlinie / Quelle: OpenStreetMap

Eckdaten Objektnr. 1939/217167

Art: Wohnung - Etage
Land: Österreich
Baujahr: 2025
Zustand: Erstbezug
Alter: Neubau
Kaufpreis: 353.500,00
Provision: Provision bezahlt der Abgeber.
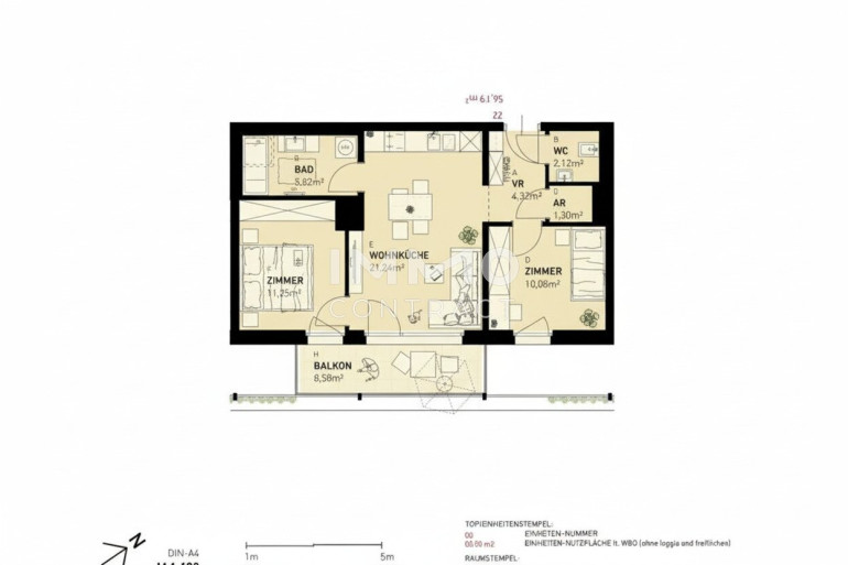
Wohnfläche: 56,00 m²
Zimmer: 3
Bäder: 1
WC: 1
Balkone: 1
Keller: 3,30 m²
Heizwärmebedarf:  B  28,30 kWh/m²a
fGEE:  A  0,74
Immobilie merken Exposé

Ausstattung

Fliesen, Parkett, Fußbodenheizung, Zentralheizung, Personenaufzug, Garage, Tiefgarage


Immobilie anfragen


Ihre persönliche Beratung

IMMOcontract Immobilien Vermittlung GmbH

Aneta Nosalek

IMMOcontract Immobilien Vermittlung GmbH

T +436605691519

H +436605691519