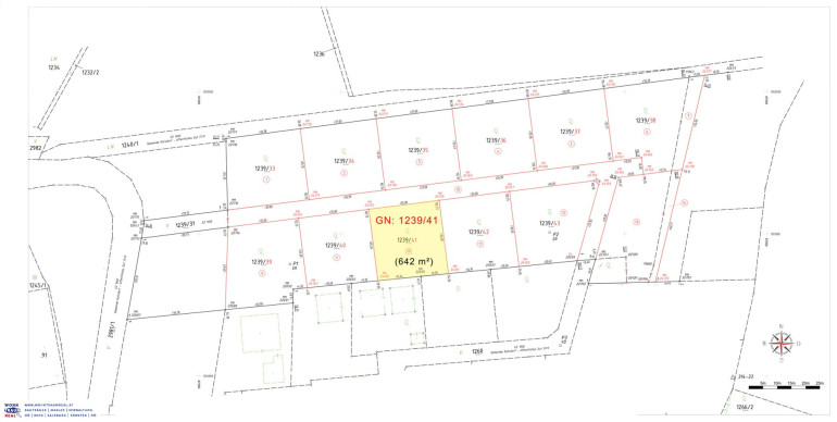
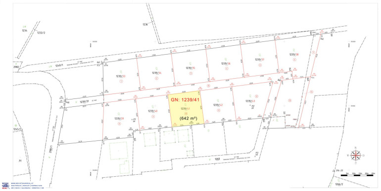
doppelhaus ruhstetten – gst. 1239/41 | 122 m² | haus + grundstück € 435.000 | top 2

Haus - Doppelhaushälfte, 4223 Ruhstetten


ruhige wohnlage in ruhstetten bei katsdorf. die siedlung entsteht in leicht erhöhter lage mit blick über die umliegenden felder und das mühlviertler hügelland. gleichzeitig sind die wirtschaftsstandorte im zentralraum schnell erreichbar: linz / pregarten / gallneukirchen einkaufsmöglichkeiten, schulen und kinderbetreuung befinden sich in kurzer distanz. die lage verbindet ländliche ruhe mit der nähe zur landeshauptstadt linz.

Beschreibung der Immobilie

doppelhaus ruhstetten – gst. 1239/41 | 122 m² | haus + grundstück € 435.000 | top 2

andere schreiben romane über ihr „traumhaus“.

wir sagen einfach, wie es ist.



bei hammahäusern gibt’s koa blabla.



👉 die meisten warten auf bessere preise – genau das hat sie die letzten jahre am meisten geld gekostet.



in ruhstetten bei katsdorf entsteht derzeit ein neues wohngebiet.

mehrere grundstücke wurden bereits verkauft und die ersten häuser werden in den kommenden monaten entstehen.

genau deshalb gibt es jetzt noch auf dem grundstück 1239/41 wird ein doppelhaus umgesetzt.


es handelt sich um ein doppelhaus mit genau zwei haushälften – kein reihenhaus


geplant ist ein modernes doppelhaus mit rund 122 m² wohnfläche pro haushälfte.




angebot pro haushälfte:



ca. 122 m² wohnfläche

eigener garten

terrasse

2 stellplätze



preis:



€ 435.000 pro haushälfte inklusive grundstück



baubeginn kann nach projektvergabe kurzfristig erfolgen.




finanzierung



viele glauben, ein hausbau scheitert am eigenkapital.

tatsächlich sind – je nach persönlicher situation – finanzierungen bereits ab rund 10 % eigenmittel möglich.

aktuell werden teilweise auch fixzinssätze unter 3 % angeboten.




wer ein fertiges haus sucht, ist hier falsch.

wer sein haus bauen möchte, ist hier richtig.

Infrastruktur / Entfernungen

Gesundheit
Arzt <3.500m
Apotheke <5.500m
Klinik <8.500m

Kinder & Schulen
Schule <3.000m
Kindergarten <3.000m
Höhere Schule <6.500m
Universität <6.500m

Nahversorgung
Supermarkt <3.000m
Bäckerei <3.000m
Einkaufszentrum <8.500m

Sonstige
Bank <3.000m
Geldautomat <3.000m
Post <3.500m
Polizei <5.000m

Verkehr
Bus <500m
Bahnhof <1.500m
Autobahnanschluss <6.000m

Angaben Entfernung Luftlinie / Quelle: OpenStreetMap

Eckdaten Objektnr. 5576/3546

Art: Haus - Doppelhaushälfte
Land: Österreich
Baujahr: 2025
Alter: Neubau
Kaufpreis: 435.000,00
Provision: 3% des Kaufpreises zzgl. 20% USt.
Wohnfläche: 122,00 m²
Zimmer: 5
Bäder: 2
WC: 2
Terrassen: 1
Stellplätze: 2
Heizwärmebedarf:  B  35,60 kWh/m²a
fGEE:  A+  0,58
Immobilie merken Exposé

Ausstattung

Estrichboden, Fliesen, Parkett, Fußbodenheizung, Zentralheizung, Bad mit Fenster, Dusche, Parkplatz


Immobilie anfragen


Ihre persönliche Beratung

Wohntraumreal GmbH

Jakob Hammer

Wohntraumreal GmbH

T +43 660 444 7272