Erstbezug „ein viertel grün in Wiener Neustadt“ – 2-Zimmer-Gartenwohnung für Singles & Paare

Wohnung , 2700 Wiener Neustadt , Stadionstraße


Mitten im Grünen und doch mitten im Leben: Das Wohnprojekt „ein viertel grün“ vereint modernen Wohnkomfort mit einer erstklassigen Lage – direkt gegenüber der Merkurcity in Wiener Neustadt. Hier treffen Ruhe, Natur und Stadtleben aufeinander – und schaffen einen Wohnraum, der keinerlei Wünsche offen lässt. In diesem neuen Stadtquartier finden Sie das passende Zuhause: mit gut durchdachten Grundrissen, großzügigen Freiflächen. Die ausgezeichnete Lage macht Ihren Alltag leichter. Das Stadtzentrum, der Bahnhof sowie die Autobahn A2 sind in wenigen Minuten erreichbar. Zahlreiche Nahversorger, Schulen, Kindergärten und medizinische Einrichtungen befinden sich in unmittelbarer fußläufiger Nähe. Die Merkurcity direkt gegenüber sorgt für kurze Wege beim Einkaufen. Die zweitgrößte Stadt Niederösterreichs bietet nicht nur hervorragende Infrastruktur, sondern auch ein breites Freizeit- und Kulturangebot sowie vielfältige Gastronomie, regelmäßige Veranstaltungen, Konzerte und Ausstellungen.

Beschreibung der Immobilie

Erstbezug „ein viertel grün in Wiener Neustadt“ – 2-Zimmer-Gartenwohnung für Singles & Paare

Willkommen in Ihrem neuen Zuhause in Wiener Neustadt!



In unserem erstklassigen Wohnquartier bleiben keine Wünsche offen! Hier trifft modernes und zentrumnahes Wohnen auf naturnahe Umgebung - ideal für junge Familien, Paare sowie Einzelpersonen die Wert auf Lebensqualität, Gemeinschaft und Nachhaltigkeit legen.



Familien sind hier bestens versorgt. Direkt im Quartier befindet sich ein moderner Kindergarten. Hier werden Ihre Kleinen optimal betreut - und das ganz in Ihrer Nähe. Nach dem Kindergarten können sich die Kinder noch auf den diversen Spielgeräten austoben. Für die Eltern ist mit Sitzgelegenheiten gesorgt.



Ein eigener Quartierstreff auf dem Areal sorgt für regen Austausch unter Nachbarn und lässt garantiert neue Freundschaften bei Groß und Klein entstehen. 



Das gesamte Areal ist verkehrsberuhigt und umgeben von Grünflächen. Sie müssen jedoch aufgrund der hervorragenden Lage nicht auf die Annehmlichkeiten der Stadt verzichten. 



Sie genießen all die Vorzüge eines urbanen Lebensstil mitten im Grünen!



Hier die Details zu unserem Projekt im Überblick:



  • 39 geförderte Mietwohnungen
  • 2 - 4 Zimmer, ca. 51 m² - 89 m²
  • alle Wohnungen mit Eigengarten und Terrasse bzw. Balkon oder Dachterrasse
  • hochwertige Laminatböden
  • gut durchdachte Grundrisse
  • Tiefgaragenstellplatz, bereits in der Miete inkludiert
  • Fahrrad- und Kinderwageneinstellräume
  • Einlagerungsräume
  • Personenaufzug
  • Müllraum
  • effiziente Photovoltaikanlage am Dach
  • kontrollierte Wohnraumlüftung mit Wärmerückgewinnung und zentraler Lüftungsanlage
  • HWB Wert ca. 23,66 kWh/m²a, fGEE ca. 0,63
  • Fertigstellung voraussichtlich Frühjahr 2026

Willkommen in Ihrem neuen Zuhause!



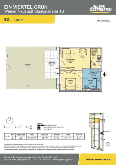
Diese moderne 2-Zimmer-Gartenwohnung bietet Singles und Paaren ein stilvolles Zuhause mit hoher Lebensqualität. Auf rund 52 m² erwarten Sie helle Räume und ein durchdachtes Wohnkonzept – ideal für alle, die Komfort und ein angenehmes Wohnambiente schätzen.



Als Erstbezug genießen Sie ein neues Zuhause, das Sie ganz nach Ihren eigenen Vorstellungen gestalten können. Die gut geplante Raumaufteilung sorgt für ein harmonisches Wohngefühl.



Der großzügige Wohnbereich mit integrierter Kochnische bildet das Herzstück der Wohnung. Von hier aus gelangen Sie direkt auf die Terrasse und in Ihre private Gartenoase – perfekt für entspannte Stunden im Freien, gemütliche Abende oder gesellige Treffen.



Das Schlafzimmer ist separat vom Vorraum aus begehbar und bietet einen schönen Blick in den eigenen Garten.



Ein praktischer Abstellraum direkt bei der Kochnische kann ideal auch als Speisekammer genutzt werden und sorgt für zusätzlichen Stauraum.



Das Badezimmer ist modern ausgestattet und verfügt über Dusche, Waschbecken, WC sowie einen Waschmaschinenanschluss.



Ein Tiefgaragenstellplatz ist bereits in der Miete inkludiert und rundet dieses attraktive Angebot perfekt ab.



Befristung: unbefristet, 1 Jahr Kündigungsverzicht 3 Monate Kündigungsfrist



Bezug: voraussichtlich Frühjahr 2026



Energiekennzahlen:  Der Heizwärmebedarf  beträgt ca. 23,66 kWh/m²a Klasse A und der Gesamtenergieeffizienz-Faktor ca. 0,63 Klasse A+.



Die monatliche Miete beläuft sich auf € 670,57 inkl. BK und Ust. und der einmalige Finanzierungsbeitrag beträgt € 18.032,--




Genießen Sie die Vorzüge einer urbanen Umgebung, ohne auf die Ruhe und den Komfort eines eigenen Gartens verzichten zu müssen. Diese Gartenwohnung in Wiener Neustadt bietet Ihnen die perfekte Kombination aus modernem Wohnen und Lebensqualität. 

Noch nichts gefunden? Wir informieren Sie über geeignete Immobilienangebote noch vor allen anderen.
Legen Sie jetzt Ihren individuellen Suchagenten unter folgendem Link an. Wir schicken Ihnen passende Immobilien exklusiv vorab zu.

Suchagent anlegen - https://heimat-oesterreich.service.immo/registrieren/de

Infrastruktur / Entfernungen

Gesundheit
Arzt <1.000m
Apotheke <250m
Klinik <2.500m
Krankenhaus <1.000m

Kinder & Schulen
Schule <250m
Kindergarten <500m
Höhere Schule <1.750m
Universität <2.000m

Nahversorgung
Supermarkt <250m
Bäckerei <750m
Einkaufszentrum <250m

Sonstige
Bank <750m
Geldautomat <750m
Post <750m
Polizei <750m

Verkehr
Bus <250m
Autobahnanschluss <3.250m
Bahnhof <1.250m
Flughafen <2.250m

Angaben Entfernung Luftlinie / Quelle: OpenStreetMap

Eckdaten Objektnr. 5093

Art: Wohnung
Land: Österreich
Baujahr: 2025
Zustand: Erstbezug
Alter: Neubau
Gesamtmiete: 670,57
Kaltmiete (netto): 670,57 €
Kaltmiete: 670,57 €
Wohnfläche: 51,52 m²
Zimmer: 2
Bäder: 1
WC: 1
Terrassen: 1
Stellplätze: 1
Garten: 57,00 m²
Keller: 3,33 m²
Heizwärmebedarf:  A  23,66 kWh/m²a
fGEE:  A+  0,63
Immobilie merken Exposé

Ausstattung

Fliesen, Laminatboden, Personenaufzug, Dusche, Tiefgarage


Immobilie anfragen


Ihre persönliche Beratung

Theresa Günzl

Heimat Österreich gemeinnützige Wohnungs- und Siedlungsgesellschaft m.b.H.

T +43 1 9823601 645

H +43 676 371 78 05