Niedrigenergie Einfamilienhaus (Ziegelmassiv!) | PV-Anlage, LWP | 4 Zimmer | Keller, Eigengarten, Terrasse & Carport

Haus - Doppelhaushälfte, 2460 Bruck an der Leitha , Ernst Bayer-Gasse


Wohnen in Bruck an der Leitha vereint eine angenehme Wohnumgebung mit kurzen Wegen zu allem, was im täglichen Leben wichtig ist. Als Bezirkshauptstadt bietet Bruck eine sehr gute Infrastruktur und bleibt dabei überschaubar und lebenswert. Supermärkte, ärztliche Versorgung und weitere Einrichtungen des täglichen Bedarfs sind schnell erreichbar. Auch das Einkaufszentrum „Shopping Bruck“ liegt nur wenige Minuten entfernt und ergänzt das vielseitige Angebot vor Ort. Für Familien besonders attraktiv ist die gute Verteilung von Kindergärten, Schulen und Spielplätzen, sodass sich viele Wege einfach und bequem gestalten lassen. Zur hohen Lebensqualität trägt auch das charmante Umfeld bei. Die historische Altstadt von Bruck an der Leitha mit ihren Gassen, Cafés und kleinen Treffpunkten schafft eine Atmosphäre, die den Ort besonders lebenswert macht. Ob ein Kaffee zwischendurch, ein Spaziergang durch das Zentrum oder ein Eis mit den Kindern, hier zeigt sich Wohnen auch von seiner genussvollen Seite. Gleichzeitig überzeugt Bruck mit einem breiten Bildungsangebot, das von städtischen Landeskindergärten über Volksschule und Mittelschule bis hin zu weiterführenden Schulen wie BG/BRG sowie HAK/HAS reicht. Das schafft Sicherheit und Perspektive über viele Lebensphasen hinweg. Auch für Pendlerinnen und Pendler ist der Standort sehr attraktiv. Mit dem Auto erreicht man rasch die A4 Ostautobahn sowie wichtige regionale Verbindungen wie die B10 in Richtung Wien und Flughafen Schwechat. Darüber hinaus bestehen ab Bruck an der Leitha direkte Zugverbindungen nach Wien Hauptbahnhof mit einer Fahrzeit von rund 28 Minuten. Das macht den Arbeitsweg gut planbar und sorgt dafür, dass man nach einem langen Tag schnell wieder zuhause ist. Wer Erholung und Bewegung im Freien schätzt, findet auch dafür beste Voraussetzungen. Die Lage an der Leitha und am Rand des Leithagebirges lädt zu Spaziergängen, Laufrunden und Radausflügen ein. Ein besonderes Highlight ist der Harrachpark bei Schloss Prugg, ein weitläufiger, großteils öffentlich zugänglicher Landschaftspark, der sich ideal für entspannte Stunden im Grünen eignet. Auch der Neusiedler See ist gut erreichbar und bietet an warmen Tagen eine schöne Möglichkeit für spontane Auszeiten am Wasser.

Beschreibung der Immobilie

Niedrigenergie Einfamilienhaus (Ziegelmassiv!) | PV-Anlage, LWP | 4 Zimmer | Keller, Eigengarten, Terrasse & Carport

Modernes Wohnen im Grünen,

nahe der Altstadt von Bruck a.d. Leitha



In Bruck an der Leitha (Ernst Bayer-Gasse 5) bieten 13 Einfamilien- und Doppelhäuser, Raum für alle, die das Leben gern nach draußen erweitern: Frühstück auf der Terrasse, Spielen im Eigengarten, Ankommen in einem Zuhause, das sich leicht anfühlt. Ziegelmassiv und als Niedrigenergiehaus geplant, belagsfertig übergeben und bereit für den nächsten Lebensabschnitt – mit durchdachten Details, die Komfort spürbar und Kosten kalkulierbar machen. Nur noch wenige Einheiten verfügbar!



Auf einen Blick:



  • 13 Einfamilien- und Doppelhäuser, fertiggestellt – nur noch wenige Einheiten verfügbar!
  • 95 bis 123 m² Wohnnutzfläche
  • Eigengarten mit Terrasse + 2 PKW-Abstellplätze tw. mit Carport
  • Mit oder ohne Keller
  • Niedrige Energiekosten: PV-Anlage, Luftwärmepumpe (Heizen & Kühlen), Fußbodenheizung, Warmwasseraufbereitung, Fenster mit 3-fach Verglasung, Sonnenschutz bei allen Fenstern/Fenstertüren (Raffstores & Außenrollläden)
  • Hochwertige Ziegelmassivbauweise & TÜV AUSTRIA Baubegleitung
  • Zusammenarbeit mit namhaften regionalen Partnerbetrieben (u.a. Leitl, Rekord, Vaillant, Bramac, Knauf, Wienerberger)
  • Fixpreis & Finanzierungshilfe, Wohnbauförderung möglich!
  • Direkt vom Bauträger, ohne Maklerkosten, ohne Grundbuch-Eintragungsgebühr (bis 01.07.2026 lt. Befreiung von der Grundbuch-Eintragungsgebühr bei Erwerb von Wohnraum - BMJ)
  • Strom-, Wasser- & Kanalanschlussgebühren sowie Aufschließungsabgabe im Kaufpreis inkludiert
  • 3 Jahren Gewährleistung ab Schlüsselübergabe
  • Preise ab € 460.900



Der Haustyp „Sky²“ steht für kompaktes Wohnen mit großzügigem Gefühl: Auf drei Ebenen verteilen sich rund 150 m² Nutzfläche – durchdacht geplant und angenehm offen. Mittelpunkt des Hauses ist die helle Wohnküche, die direkt auf die Terrasse und in den sonnigen Garten führt. Ein Ort für gemeinsames Kochen, Spielen, Ankommen – und für Tage, die sich nach Zuhause anfühlen.



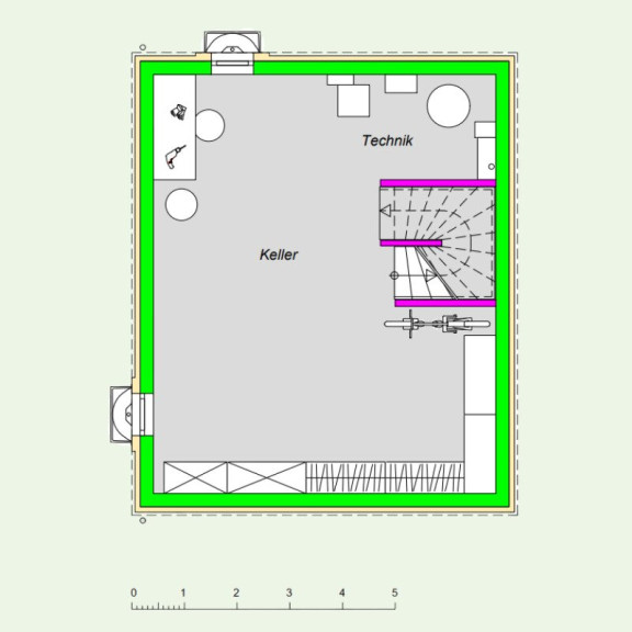
Die Vollunterkellerung schafft wertvollen Raum für alles, was im Familienalltag Platz braucht: Stauraum, Vorräte, Hobby oder Fitness. Drei Schlafzimmer bieten Rückzugsmöglichkeiten für jedes Familienmitglied. Im Obergeschoss sorgt eine Raumhöhe von bis zu 3,50 m für spürbare Weite und ein besonders luftiges Wohngefühl. Massiv in Ziegelbauweise errichtet und ausgestattet mit Luftwärmepumpe, Fußbodenheizung und PV-Anlage, verbindet „Sky²“ nachhaltigen Komfort mit niedrigeren Energiekosten. Zwei Parkplätze sind inklusive – weil ich besser wohnen will.



Das Haus wird belagsfertig übergeben – die Fertigstellung kann in Eigenregie erfolgen oder nach Übergabe durch professionelle Handwerksbetriebe. Eine Firmenliste ist auf Anfrage bei der Kaufberatung erhältlich.





Betriebskosten pauschal rd. € 220,-- / Monat inkl. Ust. exkl. Heizkosten.

Die Betriebskosten für die Stellplätze sind hier bereits enthalten.



Jetzt unverbindlich informieren und Finanzierungsmöglichkeiten für den Weg ins Eigenheim entdecken!





Famosahaus - Qualität und Erfahrung seit mehr als 25 Jahren.

Einziehen & Wohlfühlen! Provisionsfrei, direkt vom Bauträger!





Disclaimer – Visualisierungen / KI-bearbeitete Fotos:
Die dargestellten Schaubilder wurden teilweise digital bearbeitet bzw. mithilfe künstlicher Intelligenz visualisiert. Sie dienen ausschließlich der beispielhaften Darstellung von Einrichtungs- und Gestaltungsmöglichkeiten und stellen keinen verbindlichen Ausführungs- oder Lieferumfang dar. Maßgeblich für die tatsächliche Ausführung sind ausschließlich die vertraglichen Vereinbarungen, Bau- und Ausstattungsbeschreibungen sowie die genehmigten Pläne. Abweichungen in Ausstattung, Materialien, Farben, Möblierung oder Bepflanzung sind möglich.

Infrastruktur / Entfernungen

Gesundheit
Arzt <1.000m
Apotheke <1.500m
Klinik <1.250m

Kinder & Schulen
Schule <250m
Kindergarten <1.250m

Nahversorgung
Supermarkt <1.000m
Bäckerei <1.250m
Einkaufszentrum <2.750m

Sonstige
Bank <1.250m
Geldautomat <1.250m
Polizei <1.000m
Post <1.750m

Verkehr
Bus <500m
Autobahnanschluss <1.250m
Bahnhof <2.000m

Angaben Entfernung Luftlinie / Quelle: OpenStreetMap

Eckdaten Objektnr. 2165/53

Art: Haus - Doppelhaushälfte
Land: Österreich
Baujahr: 2025
Zustand: Erstbezug
Alter: Neubau
Kaufpreis: 460.900,00
Betriebskosten: 220,00 €
Wohnfläche: 95,00 m²
Nutzfläche: 150,00 m²
Grundstücksfl.: 245,00 m²
Zimmer: 4
Bäder: 1
WC: 2
Terrassen: 1
Stellplätze: 2
Garten: 140,00 m²
Keller: 54,00 m²
Heizwärmebedarf:  B  31,50 kWh/m²a
fGEE:  A+  0,59
Immobilie merken Exposé

Ausstattung

Fußbodenheizung, Bad mit Fenster, Parkplatz, Carport


Immobilie anfragen


Ihre persönliche Beratung

Famosahaus Bauträger GmbH

Famosahaus Bauträger GmbH

Famosahaus Bauträger GmbH

T +43 1 817 18 07