Kleines Büro mit Parkettboden und Entwicklungspotenzial in Traun

Büro / Praxis , 4050 Traun , Leondinger Straße 40


Die Immobilie in der Leondinger Straße 4050 Traun besticht durch ihre hervorragende Lage. Umgeben von einer Vielzahl wichtiger Einrichtungen wie Arztpraxen, Apotheken, Schulen und Supermärkten, bietet sie eine optimale Erreichbarkeit für Kunden und Mitarbeiter. Auch Bäckereien, Banken und Geldautomaten befinden sich in der Nähe. Zudem sorgt die ausgezeichnete Anbindung an öffentliche Verkehrsmittel wie Bus und Bahnhof für eine hohe Flexibilität. Ideal für Büro oder Praxis!

Beschreibung der Immobilie

Kleines Büro mit Parkettboden und Entwicklungspotenzial in Traun

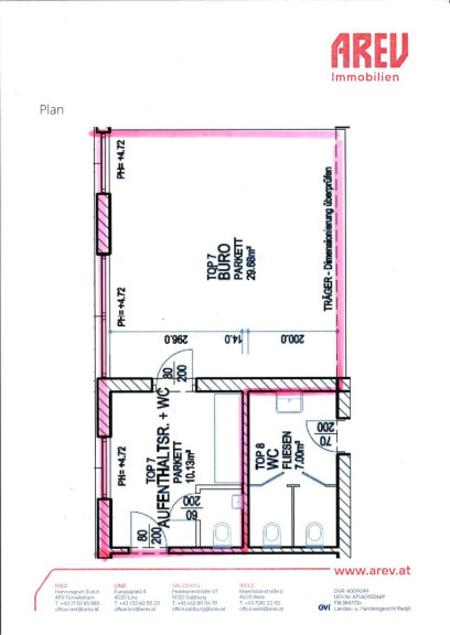
Die ca. 41 m² große Bürofläche in Traun befindet sich aktuell in einem einfachen, funktionalen Zustand und wird vom Eigentümer saniert. Bereits vorhanden ist ein Parkettboden, der der Einheit eine angenehme und warme Grundatmosphäre verleiht.



Die Fläche überzeugt durch ihre helle Ausrichtung und eine gut nutzbare Raumaufteilung, die nach Abschluss der Sanierungsarbeiten ein zeitgemäßes und professionelles Arbeitsumfeld bietet.



Eine Toilette sowie eine kleine Teeküche sind in der Einheit integriert und sorgen für praktischen Komfort im Büroalltag.



Nach der Renovierung entsteht hier ein kompaktes, gepflegtes Büro, ideal für Einzelunternehmer oder kleine Teams, die eine effiziente Fläche mit ansprechender Grundausstattung suchen.



Die Heizkosten betragen dzt € 34,03 zzgl. der gesetzlich vorgeschriebenen USt.



Unverbindliches, freibleibendes Angebot. Informationen nach bestem Wissen und Gewissen vom Abgeber erhalten - für die Richtigkeit wird keine Haftung übernommen. Mündliche Nebenabreden zum angebotenen Objekt bedürfen zu Ihrer Wirksamkeit der Schriftform. Irrtümer, Druckfehler und Änderungen vorbehalten. Es besteht zwischen dem Vermittler und dem Abgeber ein wirtschaftliches Naheverhältnis.




Wir weisen darauf hin, dass zwischen dem Vermittler und dem zu vermittelnden Dritten ein familiäres oder wirtschaftliches Naheverhältnis besteht.


Der Vermittler ist als Doppelmakler tätig.

Infrastruktur / Entfernungen

Gesundheit
Arzt <150m
Apotheke <450m
Klinik <1.050m
Krankenhaus <5.275m

Kinder & Schulen
Kindergarten <1.100m
Schule <475m
Universität <3.350m
Höhere Schule <7.425m

Nahversorgung
Supermarkt <75m
Bäckerei <25m
Einkaufszentrum <1.925m

Sonstige
Bank <400m
Geldautomat <400m
Post <2.025m
Polizei <2.325m

Verkehr
Bus <25m
Straßenbahn <1.750m
Bahnhof <450m
Autobahnanschluss <2.725m
Flughafen <5.225m

Angaben Entfernung Luftlinie / Quelle: OpenStreetMap

Eckdaten Objektnr. 1937/7645996

Art: Büro / Praxis
Land: Österreich
Kaltmiete (netto): 278,80 €
Kaltmiete: 344,40 €
Provision: 3 Bruttomonatsmieten zzgl. 20% USt.
Betriebskosten: 65,60 €
MwSt Gesamt: 68,88 €
Nutzfläche: 41,00 m²
Immobilie merken Exposé

Immobilie anfragen


Ihre persönliche Beratung

Michaela Hochreiter

AREV Immobilien GmbH

T +43 732 605533 364

H +43 664 8185330