Top moderne Bürofläche in erstklassigem Neubau - verfügbar ab Juli 2026

Büro / Praxis - Bürofläche, 6971 Hard


Landstraße 114a, 6971 Hard

Beschreibung der Immobilie

Top moderne Bürofläche in erstklassigem Neubau - verfügbar ab Juli 2026

Kmenta & Partner Immobilienmakler GmbH in Kooperation mit Perfekt Immo GmbH



Modernes Gebäude mit gemischter Nutzung in Bodenseenähe





In attraktiver Lage von Hard, nicht weit vom Ufer des Bodensees entfernt, entsteht ein moderner Neubau, der Wohnen, Arbeiten und Gewerbe in zeitgemäßer Architektur miteinander verbindet. Die Lage an der Harder Rheinstraße sowie direkt am internationalen Bodenseeradweg sorgt für eine ausgezeichnete Verkehrsanbindung und eröffnet zugleich vielfältige Freizeitmöglichkeiten. Ob mit dem Fahrrad, zu Fuß oder mit dem Auto – die Wege in Richtung Bodenseeufer, ins Ortszentrum von Hard oder in die umliegenden Gemeinden sind kurz und komfortabel. Diese Kombination aus naturnaher Umgebung, guter Infrastruktur und moderner Bauweise macht das Projekt zu einem besonders attraktiven Wohnort für Singles, Paare und Familien.



Der Neubau besteht aus einem architektonisch klar gestalteten Gebäudekomplex mit zwei Hauptgebäuden, die sich eine gemeinsame Garage teilen. Während eines der Gebäude in naher Zukunft als Hotel ausgeführt wird, befindet sich im zweiten Baukörper, der bereits in Errichtung ist, ein Wohn- und Geschäftsgebäude, in dem die hier angebotenen Wohnungen und Büroflächen ab Juli 2026 zur Vermietung stehen. Dieses Gebäude gliedert sich in zwei in ihrer Höhe abgestufte Baukörper. Der größere Teil beherbergt Wohn-, Büro- und Geschäftseinheiten, während im angrenzenden Bereich eine Halle zur gewerblichen Nutzung vorgesehen ist. Ein moderner, behindertengerechter Aufzug verbindet sämtliche Ebenen miteinander und sorgt für eine komfortable Erreichbarkeit aller Bereiche.



Im Untergeschoss befinden sich die Garagenflächen mit den Stellplätzen. Zusätzlich stehen Fahrradabstellplätze zur Verfügung, was insbesondere für Nutzer des nahegelegenen Bodenseeradwegs einen praktischen Mehrwert darstellt. Darüber hinaus befinden sich im Untergeschoss ein Müllraum, Lagerflächen sowie die erforderlichen Technikräume. Jede Einheit verfügt außerdem über ein eigenes Kellerabteil im UG, das zusätzlichen Stauraum bietet.



Das Erdgeschoss ist mit flexibel einteilbaren Gewerbeeinheiten ausgestattet. Im Außenbereich steht ein Kinderspielplatz zur Verfügung, der besonders für Familien eine attraktive Ergänzung darstellt. Im ersten Obergeschoss befinden sich sowohl Büroflächen als auch erste Wohneinheiten, während das zweite und dritte Obergeschoss ausschließlich dem Wohnen vorbehalten sind und eine ruhige Wohnatmosphäre bieten.



Die Wohnungen und die Büros überzeugen durch großzügige Fensterflächen, die für viel Tageslicht sorgen und ein helles, freundliches Raumgefühl schaffen. Auch technisch entspricht das Gebäude modernen Anforderungen an Energieeffizienz. Die Wärmeversorgung erfolgt über eine monovalente Wärmepumpe mit zentraler Warmwasseraufbereitung. Ergänzend dazu wird auf dem Dach eine Photovoltaikanlage installiert, die zur nachhaltigen Energieversorgung beiträgt.



Die Ausstattung der Räume wurde hochwertig und zeitlos gewählt. Innentüren mit weiß-matter Beschichtung sorgen für ein modernes Erscheinungsbild. Holz-Alu-Fenster mit dreifacher Isolierverglasung gewährleisten eine ausgezeichnete Wärmedämmung und sind mit Sonnenschutz an allen Fenstern ausgestattet. Jede Einheit verfügt über eine Leerverrohrung für Telekabel und Telefonanschluss sowie über eine Gegensprechanlage mit Türöffner. Für angenehme Wärme sorgt eine Fußbodenheizung in allen Wohnräumen.



In den Wohnungen wird in Vorraum, Küche, Wohnzimmer und Schlafzimmer wird helles Eichenparkett verlegt, das eine warme und wohnliche Atmosphäre schafft. Badezimmer und WC sind mit Fliesen bzw. Feinsteinzeug ausgestattet. Die Küchen verfügen über cremeweiße Küchenblöcke inklusive Arbeitsplatte und Oberschränken sowie über ein Einbaubackrohr mit Cerankochfeld, einen Kühlschrank mit integriertem Gefrierfach und eine Spüle. Die Badezimmer sind mit einem weißen Waschtisch, Rechteckspiegel, einer WC-Anlage mit Tiefspüler sowie einer Duschanlage mit Duschtrennwand ausgestattet.



Ergänzt wird das Wohnangebot durch attraktive Loggien, die einen angenehmen Außenbereich schaffen und zum Entspannen einladen. Durch die Kombination aus moderner Architektur, hochwertiger Ausstattung und der Nähe zum Bodenseeufer entsteht hier ein Wohnumfeld, das Komfort, Funktionalität und Lebensqualität miteinander verbindet.



Die Büros werden mit pflegeleichtem Linoleum und Fliesen als Bodenbeläge ausgestattet. Die Badezimmer werden elegant ausgestattet und die Büros erhalten eine hochwertige Einbauküche in cremeweiß. Durch die offene Raumplanung sind bei Bedarf Wände flexibel einziehbar.





ECKDATEN:



Objekttyp: Neubauprojekt mit 24 Wohnungen, 2 Büros und 3 Geschäften



voraussichtl. Fertigstellung: Juli 2026



Personenaufzug: vorhanden, behindertengerecht



Heizung | Befeuerung: Fußbodenheizung | Zentralheizung | Luftwärmepumpe



Energieausweis: in Arbeit



Widmung: Bau-Mischgebiet





Mietwohnungen:



Ausstattung: cremeweiße Einbauküchen, Badezimmereinrichtung



Fenster: 3-fach verglast, mit Sonnenschutz



Böden: Parkett und Fliesen





Büroflächen:



Ausstattung: cremeweiße Einbauküchen, Badezimmereinrichtung



Fenster: 3-fach verglast, mit Sonnenschutz



Böden: Linoleum und Fliesen





Haben wir Ihr Interesse geweckt? Dann melden Sie sich gerne bei uns und überzeugen Sie sich im Rahmen eines persönlichen Besichtigungstermins selbst von diesem attraktiven Neubauprojekt. Wir stehen Ihnen jederzeit für weitere Informationen zur Verfügung und freuen uns darauf, Ihnen Ihr mögliches neues Zuhause in Hard präsentieren zu dürfen.

Großzügige, flexible Bürofläche in hochmodernem Neubau zu vermieten:





In Hard, nur rund zwei Kilometer vom Bodenseeufer entfernt, gelangen in einem modernen Neubau ab Juli 2026 diese erstklassige Bürofläche zur Vermietung. Die Lage an der Harder Rheinstraße sowie direkt am internationalen Bodenseeradweg bietet eine gute Verkehrsanbindung und zahlreiche Freizeitmöglichkeiten in der Bodenseeregion.



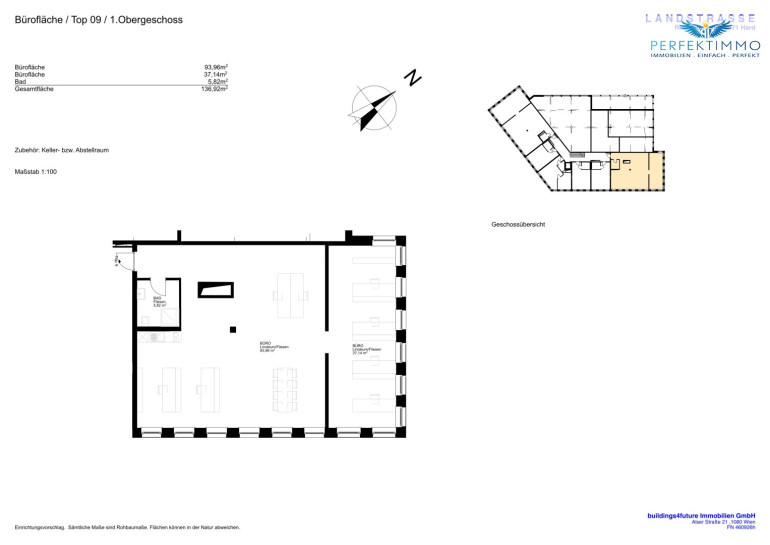
Die Büroeinheit Top 09 befindet sich im ersten Obergeschoss des neu errichteten Wohn- und Geschäftsgebäudes und ist bequem über einen behindertengerechten Aufzug erreichbar. Auf rund 136,92 m² Nutzfläche bietet sie eine großzügige und gut durchdachte Raumaufteilung. Große Fensterflächen sorgen für viel Tageslicht und schaffen ein angenehmes Aufenthaltsgefühl.



Die Ausstattung überzeugt durch hochwertige und zeitlose Materialien. In den Büroräumen ist Linoleum verlegt, während im Bad pflegeleichte Fliesen beziehungsweise Feinsteinzeug zum Einsatz kommen. Eine moderne Einbauküche in cremeweißer Ausführung ist bereits vorhanden. Für angenehme Wärme sorgt eine Fußbodenheizung. Holz-Alu-Fenster mit dreifacher Isolierverglasung und Sonnenschutz sorgen zusätzlich für ein angenehmes Raumklima.



Zur Wohnung gehört ein Kellerabteil im Untergeschoss. Ausreichend Tiefgaragenplätze können bei Bedarf gegen Aufpreis angemietet werden.





TOP 9: Bürofläche im 1. Obergeschoß





Raumaufteilung:



Bürofläche: 93,96 m²



Bürofläche: 37,14 m²



Bad/WC: 5,82 m²



Nutzfläche: 136,92 m²





Zubehör:



Keller-/Abstellraum





monatliche Kosten:



Miete netto: 2.050,00 € 



zzgl. 20 % USt: 410,00 €



voraussichtl. BK: ca. 356,00 €



Gesamtkosten: 2.816,00 €





Nebenkosten:



Kaution: 3 BMM



Vergebührung: nach Laufzeit, gem. Gebührengesetz



Vertragserrichtung: nach Vereinbarung



Maklerhonorar: nach Maklervertrag



je TG-Platz: netto 80,00 € zzgl. 20 % USt





Mietverhältnis:



Vertragsdauer: 5 Jahre





Haben wir Ihr Interesse geweckt? Dann freuen wir uns über Ihre Kontaktaufnahme und vereinbaren gerne einen Besichtigungstermin mit Ihnen.





IHR ANSPRECHPARTNER:

Herr Alessandro Lenz

Selbstständiger geprüfter Immobilienmakler

Telefon: ​+43 5574 54325-15

E-Mail: al@kmenta-immo.at

www.kmenta-immo.at
www.perfektimmo.at




Alle Angaben erfolgen nach bestem Wissen und mit der Sorgfalt eines ordentlichen Maklers. Für die Richtigkeit solcher Angaben, die auf Informationen der über ein Objekt Verfügungsberechtigten beruhen, wird keine Gewähr geleistet oder Haftung übernommen.



Weitere tolle Angebote finden Sie unter: https://www.perfektimmo.at/angebote


Wir weisen darauf hin, dass zwischen dem Vermittler und dem zu vermittelnden Dritten ein familiäres oder wirtschaftliches Naheverhältnis besteht.


Der Vermittler ist als Doppelmakler tätig.

Infrastruktur / Entfernungen

Gesundheit
Arzt <1.000m
Apotheke <1.000m
Krankenhaus <4.000m
Klinik <6.000m

Kinder & Schulen
Schule <1.500m
Kindergarten <1.000m
Universität <6.500m
Höhere Schule <8.000m

Nahversorgung
Supermarkt <500m
Bäckerei <500m
Einkaufszentrum <500m

Sonstige
Bank <1.000m
Geldautomat <1.000m
Post <1.500m
Polizei <2.000m

Verkehr
Bus <500m
Bahnhof <1.000m
Autobahnanschluss <3.500m
Flughafen <9.000m

Angaben Entfernung Luftlinie / Quelle: OpenStreetMap

Verfügbare Flächen

Stiege/Bauteil


Stockwerk
Top
Art
Fläche
Terrasse
Nettomiete/m²
BK/m²

1. Etage
-
Büro / Praxis
-
-

4. Etage
-
Wohnung
-
-

2. Etage
-
Wohnung
-
-

4. Etage
-
Wohnung
-
-

2. Etage
-
Wohnung
-
-

1. Etage
-
Wohnung
-
-

2. Etage
-
Wohnung
-
-

verfügbare flächen

Stiege/Bauteil

Stockwerk
Top
Art
Fläche
Teilbar ab
Terrasse
Nettomiete/m2 von-bis
BK/m2
1. Etage
-
Büro / Praxis
-
-
-
-
-
Stockwerk
Top
Art
Fläche
Teilbar ab
Terrasse
Nettomiete/m2 von-bis
BK/m2
4. Etage
-
Wohnung
-
-
-
-
-
Stockwerk
Top
Art
Fläche
Teilbar ab
Terrasse
Nettomiete/m2 von-bis
BK/m2
2. Etage
-
Wohnung
-
-
-
-
-
Stockwerk
Top
Art
Fläche
Teilbar ab
Terrasse
Nettomiete/m2 von-bis
BK/m2
4. Etage
-
Wohnung
-
-
-
-
-
Stockwerk
Top
Art
Fläche
Teilbar ab
Terrasse
Nettomiete/m2 von-bis
BK/m2
2. Etage
-
Wohnung
-
-
-
-
-
Stockwerk
Top
Art
Fläche
Teilbar ab
Terrasse
Nettomiete/m2 von-bis
BK/m2
1. Etage
-
Wohnung
-
-
-
-
-
Stockwerk
Top
Art
Fläche
Teilbar ab
Terrasse
Nettomiete/m2 von-bis
BK/m2
2. Etage
-
Wohnung
-
-
-
-
-

Eckdaten Objektnr. 6566/2502

Art: Büro / Praxis - Bürofläche
Land: Österreich
Baujahr: 2026
Zustand: Erstbezug
Alter: Neubau
Kaltmiete (netto): 2.050,00 €
Kaltmiete: 2.406,00 €
Provision: nach Maklervertrag
Betriebskosten: 356,00 €
MwSt Gesamt: 410,00 €
Bürofläche: 136,92 m²
Zimmer: 2
Bäder: 1
WC: 1
Heizwärmebedarf:  B  33,60 kWh/m²a
fGEE:  A+  0,56
Immobilie merken Exposé

Ausstattung

Fliesen, Fußbodenheizung, Einbauküche, Personenaufzug, Dusche


Immobilie anfragen


Ihre persönliche Beratung

PERFEKT IMMO GmbH

Alessandro Lenz

PERFEKT IMMO GmbH

T +43 5574 54325 15