ERSTBEZUG nach RENOVIERUNG! CHARMANTES ALTWIENERHAUS NÄHE RUDOLFINERHAUS !

Haus , 1190 Wien


Sonnige Lage, Grünlage, Villengegend, Wohngebiet, Toplage, Ruhelage, Gute Verkehrslage

Beschreibung der Immobilie

ERSTBEZUG nach RENOVIERUNG! CHARMANTES ALTWIENERHAUS NÄHE RUDOLFINERHAUS !

ERSTBEZUG nach RENOVIERUNG! CHARMANTES ALTWIENERHAUS NÄHE RUDOLFINERHAUS !


Dieses 2026 liebevoll renovierte Altwienerhaus in ruhiger, doch zentraler Lage Döblings besticht durch seine Designerausstattung und den romantischen Biedermeiergarten mit Laube und Salettl. 



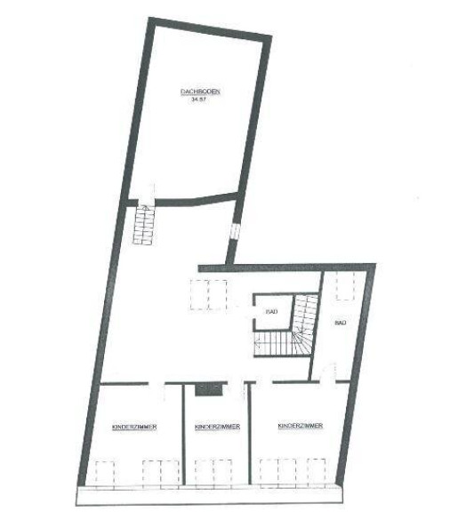
Raumaufteilung:
Über ein elegantes Entree gelangt man in das Hochparterre: Garderobe, Gäste WC, Durchgangszimmer mit Ausgang auf die Terrasse, großzügiger Salon (ca. 50 m²) mit offenem Kamin, Wohnküche mit offenem Kamin und Ausgang auf die Atriumterrasse, Sommerküche, luxuriöses Badezimmer mit Dampfdusche, Wanne und Doppelwaschtisch, begehbarer Garderobenraum mit Tischlereinbauten,  Treppenabgang in

das Erdgeschoß: großes Schlafzimmer (36,68 m²) mit Ausgang in den Garten, Badezimmer,

Halbsouterrain ca. 70 m²,  mit 3 Rüume, Bad, Heiztechnikraum, Weinkeller




1.Stock: 3 Schlafzimmer, Wohnzimmer, 2 Bäder, Toilette

Halbsouterrain:
1 Gästezimmer, Weinkeller, Sauna, Dusche, Toilette,  Möglichkeit für Fitnessraum



Ausstattung:
Holzparkettböden, Steinboden im Entree, Mosaikböden im Bad, maßangefertigte Tischlereinbaukästen in der Garderobe, komplett möblierte Designerküche mit Gaggenaugeräten, Marmorarbeitsplatten, diverse Beleuchtungskörper, Sauna, kleiner Swimmingpool, Alarmanlage



Lage &Umfeld:


Der Saarpark befindet sich quasi vis a vis und auch Nahversorger, Einkaufsmöglichkeiten und Gastronomiebetriebe sind nicht weit entfernt.



Öffentliche Verkehrsanbindung:
Autobuslinie 10A

Schnellbahnlinie S45

Straßenbahnlinie 38



aufgrund der verschiedenen Ebenen und Stiegen ist dieses Haus üf Kleinkinder eher nicht geeignet.  Familien mit größeren Kindern werden dieses Haus lieben, da die Kinder die Möglichkeit einer getrennten Wohneinheit haben .



Für einen Besichtigungstermin oder Fragen steht Ihnen Herr Mag.Weiss +43 650 22 85 695, weiss@belmar.at oder Frau Grazia Belmar unter +43 699 10 80 81 82 gerne zur Verfügung.





Energiedaten:

 Energieausweis: liegt vor

 HWB: 87,00

 HWB Klasse: C


Der Immobilienmakler erklärt, dass er – entgegen dem in der Immobilienwirtschaft üblichen Geschäftsgebrauch des Doppelmaklers – einseitig nur für den Vermieter tätig ist.

Infrastruktur / Entfernungen

Gesundheit
Arzt <500m
Apotheke <500m
Klinik <1.000m
Krankenhaus <500m

Kinder & Schulen
Schule <500m
Kindergarten <500m
Universität <500m
Höhere Schule <1.000m

Nahversorgung
Supermarkt <500m
Bäckerei <1.000m
Einkaufszentrum <2.000m

Sonstige
Geldautomat <500m
Bank <500m
Post <1.000m
Polizei <500m

Verkehr
Bus <500m
U-Bahn <1.500m
Straßenbahn <500m
Bahnhof <500m
Autobahnanschluss <1.500m

Angaben Entfernung Luftlinie / Quelle: OpenStreetMap

Eckdaten Objektnr. 121900060

Art: Haus
Land: Österreich
Gesamtmiete: 6.990,50
Kaltmiete (netto): 5.970,00 €
Kaltmiete: 6.355,00 €
Provision: Gemäß Erstauftraggeberprinzip bezahlt der Abgeber die Provision.
Betriebskosten: 385,00 €
MwSt Gesamt: 635,50 €
Wohnfläche: 350,00 m²
Grundstücksfl.: 705,00 m²
Gesamtfläche: 350,00 m²
Zimmer: 8
Bäder: 5
WC: 6
Heizwärmebedarf:  C  87,00 kWh/m²a
Immobilie merken Exposé

Immobilie anfragen


Ihre persönliche Beratung

Ticon Immobilienservice

Grazia Belmar

Ticon Immobilienservice

T 0699/10808182

H 0699/10808182

F +43 1 96 18 101