Attraktives Büro mit Altbaucharme in der Wollzeile

Büro / Praxis , 1010 Wien


- Wollzeile - Nähe Stadtpark - Nähe Wien Mitte - Nähe Rotenturmstraße

Beschreibung der Immobilie

Attraktives Büro mit Altbaucharme in der Wollzeile

Sehr geehrte Damen und Herren,





zur Vermietung gelangt dieses ansprechende Büro in der Wollzeile.





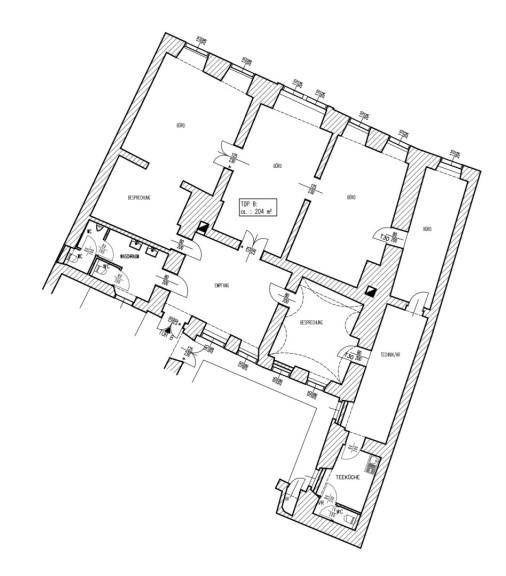
Aufteilung:



- Empfang



- 4 Bürozimmer



- 2 Besprechungsräume



- 1 Serverraum



- Teeküche



- getrennte Toiletten





Highlights:



- repräsentative Lage



- Altbaucharme, hochwertige Parkettböden



- Laubengang



- barrierefrei





Besichtigungen sind so gut wie jederzeit möglich.



Ich freue mich auf Ihre Anfrage.


Wir weisen darauf hin, dass zwischen dem Vermittler und dem zu vermittelnden Dritten ein familiäres oder wirtschaftliches Naheverhältnis besteht.


Der Vermittler ist als Doppelmakler tätig.

Infrastruktur / Entfernungen

Gesundheit
Arzt <500m
Apotheke <500m
Klinik <500m
Krankenhaus <1.000m

Kinder & Schulen
Schule <500m
Kindergarten <1.000m
Universität <500m
Höhere Schule <500m

Nahversorgung
Supermarkt <500m
Bäckerei <500m
Einkaufszentrum <1.000m

Sonstige
Geldautomat <500m
Bank <500m
Post <500m
Polizei <500m

Verkehr
Bus <500m
U-Bahn <500m
Straßenbahn <500m
Bahnhof <500m
Autobahnanschluss <3.500m

Angaben Entfernung Luftlinie / Quelle: OpenStreetMap

Eckdaten Objektnr. 271545415

Art: Büro / Praxis
Land: Österreich
Kaltmiete (netto): 3.680,47 €
Kaltmiete: 4.183,46 €
Betriebskosten: 502,99 €
MwSt Gesamt: 836,69 €
Nutzfläche: 204,47 m²
Heizwärmebedarf:  D  147,80 kWh/m²a
fGEE:  F  3,68
Immobilie merken Exposé

Ausstattung

Parkett, Fliesen, Gas, Etagenheizung, Personenaufzug, Teeküche


Immobilie anfragen


Ihre persönliche Beratung

Immobiliaris GmbH

Mag. Lukas Suk

Immobiliaris GmbH

T +43 676 7304391