Dachgeschoß - Garconniere mit Terrasse / Bestlage - nähe Hietzinger Platzl / U4

Wohnung - Penthouse, 1130 Wien


Gloriettegasse/ Kennedy Brücke/ U4/ Schloss Schönbrunn

Beschreibung der Immobilie

Dachgeschoß - Garconniere mit Terrasse / Bestlage - nähe Hietzinger Platzl / U4

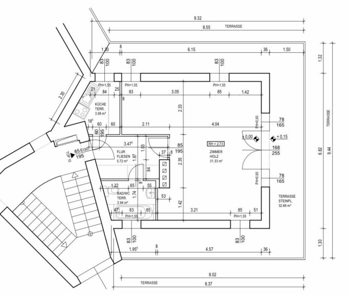
Zum Verkauf gelangt eine Dachgeschosswohnung in absoluter Bestlage im 13. Bezirk. Die Wohnung befindet sich im letzten Stock, keine Schrägen, eines gepflegten Hauses und ist bequem mit dem Lift erreichbar.



Die Wohnfläche beträgt ca. 45 m² und wird durch eine großzügige rundum verlaufende Dachterrasse mit ca. 33 m² ergänzt, die von der Wohnung aus begehbar ist und ein besonderes Wohngefühl ins Grün bietet.



Die Raumaufteilung:




  • Vorzimmer



  • Küche



  • Badezimmer mit Badewanne, WC und Fenster



  • Großzügiges loftartiges Wohn-/Schlafzimmer mit Schlafnische



  • Ausgang auf die umlaufende Dachterrasse






Die Wohnung ist sanierungsbedürftig, bietet jedoch enormes Potenzial zur individuellen Gestaltung und eignet sich ideal für Eigennutzer oder Anleger





Highlights:




  • Bestlage im 13. Bezirk / Hietzinger Platz/ Schönbrunn



  • Letzter Stock mit Lift



  • Rundum begehbare Dachterrasse (33 m²)



  • Helle, loftartige Raumgestaltung



  • Großes Entwicklungspotenzial 






Infrastruktur:
Sämtliche Einkaufsmöglichkeiten am Beginn der Hietzinger Hauptstraße / Hietzinger Platz  sind fußläufig erreichbar. 

Institutionen, wie etwa das Café Dommayer und Plachutta sowie Mario's befinden sich in der Nähe.



Öffentliche Verkehrsanbindung:
Straßenbahnlinien 10 & 60 

Autobus 56A & B, 58A

U-4 Hietzing







Betriebskosten : € 189,12   inkl. 10% USt



Heizkosten:         €  98,33   inkl. 20% USt



Instandhaltung:  € 103,92





Dir Wohnung wird provisionsfrei verkauft





Bei Interesse oder für weitere Informationen freuen wir uns über Ihre Kontaktaufnahme.


Wir weisen darauf hin, dass zwischen dem Vermittler und dem zu vermittelnden Dritten ein familiäres oder wirtschaftliches Naheverhältnis besteht.


Der Vermittler ist als Doppelmakler tätig.

Eckdaten Objektnr. 933

Art: Wohnung - Penthouse
Land: Österreich
Baujahr: 1958
Alter: Neubau
Kaufpreis: 320.000,00
Betriebskosten: 105,31 €
MwSt Gesamt: 17,19 €
Wohnfläche: 45,00 m²
Nutzfläche: 77,00 m²
Zimmer: 1
Bäder: 1
WC: 1
Terrassen: 1
Keller: 8,00 m²
Heizwärmebedarf:  E  144,50 kWh/m²a
Immobilie merken Exposé

Ausstattung

Fliesen, Parkett, Gas, Zentralheizung, Einbauküche, Personenaufzug, Bad mit Fenster, Badewanne


Immobilie anfragen


Ihre persönliche Beratung

Evelyne Rauscher

Olymp Realitäten GmbH

T +43 (1) 535 23 45

H +43 (664) 253 76 76

F +43 (1) 535 23 46