Villa in Währing mit drei separaten Wohneinheiten – Ideal für Mehrgenerationenwohnen oder Wohnen & Büro

Haus - Villa, 1180 Wien


Die Lage dieser Villa verbindet urbanes Lebensgefühl mit gediegener Ruhe. In unmittelbarer Umgebung finden sich renommierte Schulen, gepflegte Parkanlagen wie der Türkenschanzpark oder der Pötzleinsdorfer Schlosspark sowie zahlreiche charmante Cafés und Nahversorger. Der beliebte Schafberg ist ebenfalls schnell erreichbar. Die Anbindung an den öffentlichen Verkehr ist exzellent – S45, Linien 9, 40, 41, 10A, 42A sind in wenigen Gehminuten erreichbar. Gleichzeitig bleibt die Wohnlage angenehm zurückgezogen und exklusiv.

Beschreibung der Immobilie

Villa in Währing mit drei separaten Wohneinheiten – Ideal für Mehrgenerationenwohnen oder Wohnen & Büro

Villa in Währing mit drei separaten Wohneinheiten



Ideal für Mehrgenerationenwohnen, Wohnen & Büro oder als repräsentativer Familiensitz



In einer der begehrtesten Wohnlagen Wiens präsentiert sich diese prachtvolle Gründerzeitvilla als außergewöhnliche Liegenschaft, die historischen Charme mit modernem Wohnkomfort verbindet. Die stilvolle Architektur der Jahrhundertwende, großzügige Raumhöhen und zahlreiche klassische Details verleihen dem Haus seinen repräsentativen Charakter.



Besonders hervorzuheben ist die vor einigen Jahren neu ausgebaute Dachgeschosswohnung, das sich als moderne, lichtdurchflutete Wohnebene mit großzügiger Dachterrasse und beeindruckendem Blick über Wien und zum Kahlenberg präsentiert. Dadurch entsteht eine einzigartige Verbindung aus historischen Charme und zeitgemäßer Architektur.



Bereits beim Betreten des Grundstücks empfängt ein charmanter Vorgarten, während sich auf der ruhigen Rückseite des Hauses ein kleiner pflegeleichter Garten als privater Rückzugsort im Grünen eröffnet.



Die Villa erstreckt sich über vier Ebenen und ist in drei autarke Wohneinheiten (= Etagenwohnungen) gegliedert. Ein außenliegender Lift erschließt die Etagen komfortabel und ermöglicht sogar einen direkten Zugang in das Dachgeschoss. Das flexible Raumkonzept eröffnet vielfältige Nutzungsmöglichkeiten – etwa als großzügiger Familiensitz, für Mehrgenerationenwohnen, als Kombination aus Wohnen und Büro oder Praxis oder als exklusive Anlageimmobilie.



Insgesamt stehen rund 505 m² Nutzfläche inklusive Wellness- und Nebenbereichen zur Verfügung.




Highlights und Luxuriöse Ausstattung auf einen Blick




  • Drei autarke Wohneinheiten (Top 1–3)



  • über 13 großzügige, ruhige Zimmer + Nebenräume



  • Außenliegender Lift – inkl. direktem Zugang ins DG



  • Edle Natursteinböden in den repräsentativen Bereichen



  • Elegantes Fischgrätparkett aus Echtholz in den Wohnräumen



  • Fußbodenheizung 



  • Thermen je Top separat



  • Isolierverglaste Holz-Alu-Fenster



  • Großzügige Raumhöhen mit klassischen Stilelementen



  • Designbäder mit Walk-in-Duschenfreistehenden Badewannen und hochwertigen Armaturen, hochwertiges Naturstein-Waschbecken im SPA-Bereich



  • Modernste Haustechnik, u.a. mit Video-Gegensprechanlage und Klimatisierung in DG



  • Dachterrasse mit Wien- und Kahlenbergblick



  • Trennbarkeit einzelner Tops für Wohnen und Arbeiten möglich



  • Schlafzimmer mit luxuriösen Bädern en suite



  • Uneinsehbarer, pflegeleichter Garten mit ca 101 m²



  • Historische Details wie Gewölbedecke im Souterrain, Kaminumrahmungen aus echtem Marmor, stuckverzierte Fassaden



  • Repräsentatives Entree, prachtvolles Stiegenhaus, Lift modern verglast mit Blick ins Grüne



  • Ideale Infrastruktur und Grünruhelage



  • Möglichkeit zur Parifizierung und Abverkauf einzelner Tops (nachträglich)



  • Parkmöglichkeiten direkt vor dem Haus





 Aufteilung im Detail





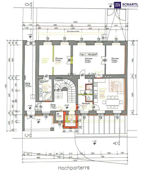
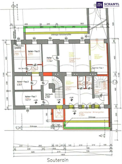
Top 1 – Erdgeschoss + Souterrain (gesamt ca. 195 m²)



Maisonette-Wohnung mit eigenem Wellnessbereich und Zugang in den Garten



Diese großzügige Einheit mit bis zu 5 Zimmern verbindet klassische Wohnbereiche mit Erholungs- und Arbeitszonen:




  • 4 Zimmer + 2 Bäder im Hochparterre



  • zusätzlich: unterirdischer Wintergarten, Sauna, Badezimmer, Whirlpool und Fitnessräume, Waschraum, Keller, Garten mit separatem Zugang



  • edle weiße Feinsteinböden, historische Flügeltüren, Tageslichtbad






Top 2 – 1. Obergeschoss (ca. 133 m²)



Bel Etage mit Eleganz & Weite




  • 4 Schlafzimmer, 2 Bäder, Schrankraum, Küche, verglaster Wintergarten



  • Stuckdecken, Kristallluster, Echtholzparkett



  • Top 2 verfügt über zwei gegenüberliegende, separat zugängliche Eingangsbereiche, was eine elegante Grundlage für eine flexible Nutzung schafft – sei es als großzügige Wohneinheit mit Bürotrakt oder durch eine mögliche Teilung in zwei unabhängige Einheiten






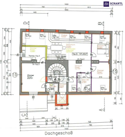
Top 3 – Dachgeschosswohnung  (ca. 137 m²)



Neubauwohnung mit Terrasse




  • direkter Liftzugang in die Wohnung



  • Loftartiger Wohn-/Essbereich mit offener Küche



  • 4 Zimmer, 2 Bäder



  • Die private Dachterrasse eröffnet einen herrlichen Ausblick über Wien bis hin zum Kahlenberg



  • Eichenparkett, Klimaanlage



  • Großzügiges Atelier/Büro




Eine Rarität am Wiener Immobilienmarkt!



Kaufpreis: €3.250.000



Bezug: nach Vereinbarung 





www.schantl-ith.at





Bei konkretem Interesse senden wir Ihnen sehr gerne weiterführende Dokumente zu.



Unser Service für Sie: Wenn Sie sich für diese Immobilie entschieden haben, begleiten wir Sie gerne vom Kaufanbot weg inkl. Klärung von Sonderwünschen und der Vertragsunterzeichnung über die Wohnungsübergabe bis hin zu diversen Ummeldungen wie Strom und Gas. Entsprechende Formulare oder auch Meldezettel stellen wir Ihnen sehr gerne zur Verfügung.



Gerne unterstützen wir Sie auch bei der Finanzierung Ihres Traumobjekts und finden mit unseren langjährigen Partnern die besten Konditionen für Sie.



Vereinbaren Sie noch heute einen Termin, wir beraten Sie gerne!


Wir weisen darauf hin, dass zwischen dem Vermittler und dem zu vermittelnden Dritten ein familiäres oder wirtschaftliches Naheverhältnis besteht.


Der Vermittler ist als Doppelmakler tätig.

Infrastruktur / Entfernungen

Gesundheit
Arzt <500m
Apotheke <500m
Klinik <1.000m
Krankenhaus <2.000m

Kinder & Schulen
Schule <500m
Kindergarten <500m
Universität <1.000m
Höhere Schule <500m

Nahversorgung
Supermarkt <500m
Bäckerei <500m
Einkaufszentrum <1.500m

Sonstige
Geldautomat <500m
Bank <500m
Post <1.000m
Polizei <1.000m

Verkehr
Bus <500m
U-Bahn <1.500m
Straßenbahn <500m
Bahnhof <500m
Autobahnanschluss <3.000m

Angaben Entfernung Luftlinie / Quelle: OpenStreetMap

Eckdaten Objektnr. 296119

Art: Haus - Villa
Land: Österreich
Alter: Altbau
Kaufpreis: 3.250.000,00
Kaufpreis / m²: 6.435,64 €
Provision: 3% des Kaufpreises zzgl. 20% USt.
Wohnfläche: 505,00 m²
Nutzfläche: 505,00 m²
Grundstücksfl.: 378,00 m²
Zimmer: 13
Bäder: 7
Terrassen: 2
Garten: 101,00 m²
Heizwärmebedarf:  C  78,37 kWh/m²a
Immobilie merken Exposé

Ausstattung

Parkett, Fliesen, Gas, Etagenheizung, Fußbodenheizung, Kamin, Einbauküche, Wohnküche / offene Küche, Südbalkon, Badewanne, Dusche, DV-Verkabelung, Kabel/Satelliten-TV, Sauna, Wasch/Trockenraum


Immobilie anfragen


Ihre persönliche Beratung

Schantl ITH Immobilientreuhand GmbH

Mag. Hanna Herzenstein

Schantl ITH Immobilientreuhand GmbH

T +43 6643070009

H +43 6705070265