Sonnendurchflutete 2-Zimmer-Gartenwohnung in Ruhelage – provisionsfreier Erstbezug

Wohnung , 1100 Wien


AM LIESINGBACH steht für Wohnen in der Natur, überzeugt dennoch durch eine ausgezeichnete Infrastruktur. Einkaufsmöglichkeiten, Schulen und öffentliche Verkehrsmittel sind in unmittelbarer Nähe und sorgen für eine hohe Lebensqualität im Alltag. Ein besonderes Plus: Alles für den täglichen Bedarf erreichen Sie in wenigen Minuten. - Buslinie 70A – direkt vor Ort mit direkter Verbindung zur U1 Oberlaa - U1 Oberlaa – ca. 1,9 km (9 Minuten mit dem Bus) - Grünraum Liesingbach – nur rund 110 m entfernt - Billa, Nahversorgung – fußläufig erreichbar - Heurigengegend Oberlaa – ca. 1,1 km - Kurpark Oberlaa – ca. 1,5 km - Therme Wien – ca. 1,8 km - Bahnhof Kledering – ca. 2,0 km Die Umgebung bietet beste Bedingungen für Freizeit und Erholung. Spaziergänge entlang des Liesingbachs, sportliche Aktivitäten im Kurpark Oberlaa oder entspannte Stunden in der Therme Wien sind direkt vor der Haustür möglich. Gleichzeitig sorgt die gute Anbindung an den öffentlichen Verkehr für schnelle Verbindungen in die Wiener Innenstadt.

Beschreibung der Immobilie

Sonnendurchflutete 2-Zimmer-Gartenwohnung in Ruhelage – provisionsfreier Erstbezug

Ihr Rückzugsort im Grünen



Willkommen AM LIESINGBACH – einem modernen Wohnprojekt, das urbanes Wohnen mit naturnaher Lebensqualität verbindet. In einer ruhigen und grünen Lage nahe Oberlaa entsteht ein harmonisches Wohnensemble mit 20 Eigentumswohnungen und 16 Reihenhäusern, das modernes Design, großzügige Freiflächen und vielfältige Wohnformen vereint. Wie der Name schon sagt: der beliebte Liesingbach mit seinen Rad- und Spazierrouten liegt direkt vor der Haustür und bietet ideale Möglichkeiten für Erholung, Bewegung und naturnahe Freizeitaktivitäten.



Das Projekt richtet sich an Singles, Paare und Familien, die ein Zuhause mit flexiblem Grundriss, lichtdurchfluteten Räumen und privatem Freiraum suchen. Jede Einheit verfügt über eine eigene Freifläche – Garten, Terrasse, Balkon oder Loggia – und sorgt so für ein Wohnerlebnis mit viel Licht, Luft und Lebensqualität.



Die Wohnungsgrößen sind variabel:



  • Reihenhäuser: ca. 81 m² – 122 m²
  • Eigentumswohnungen: ca. 47 m² – 92 m²


Auf Wunsch lassen sich die Einheiten noch individuell kombinieren oder anpassen, sodass auch größere Wohneinheiten realisierbar sind.



Alle Einheiten werden schlüsselfertig übergeben, inklusive hochwertiger Sanitäranlagen, Fliesen und Eichen-Parkettböden. Der Erwerb erfolgt provisionsfrei.



Das Projekt im Überblick



  • 20 Eigentumswohnungen und 16 Reihenhäuser auf 5 Baukörper verteilt
  • Wohnungsgrößen von ca. 47 m² bis rund 122 m² auf 2- bis 4-Zimmern
  • Wohnungen mit flexiblen Grundrissen für Singles, Paare oder Familien
  • Private Freiflächen bei allen Einheiten: Gärten, Terrassen, Balkone oder Loggien
  • Aufzugsanlagen in den Baukörpern mit Wohnungen
  • Hauseigene Tiefgarage mit 27 PKW-Stellplätzen
  • Geplante Fertigstellung: Ende 2028
  • PROVISIONSFREI




Ausstattung



  • Angenehme Fußbodenheizung mittels energieeffizienter Luft-Wasser-Wärmepumpe
  • Hochwertige, schlüsselfertige Ausstattung mit Eichen-Parkettböden
  • Moderne Sanitäranlagen und Fliesen (Firma IMOLA) inklusive
  • Fenster mit 3-fach Wärme- und Schallschutzverglasung
  • Außenliegende Rollläden
  • Mechanische Lüftung mit Ventilatoren in Bad und WC
  • Frostsichere Auslaufarmatur im Außenbereich jeder Einheit
  • Kinderwagen- und Fahrradabstellräume sowie Einlagerungsräume




Bei dem angegebenen Kaufpreis handelt es sich um den Eigennutzerpreis. Anlegerpreis auf Anfrage. 



Bei Interesse oder für die Vereinbarung eines Besichtigungstermins kontaktieren Sie mich jederzeit gerne.





Renderings: Symbolbilder (c) bildraum.at / IC-KI Visualisierungen


Wir weisen darauf hin, dass zwischen dem Vermittler und dem zu vermittelnden Dritten ein familiäres oder wirtschaftliches Naheverhältnis besteht.


Der Vermittler ist als Doppelmakler tätig.

Infrastruktur / Entfernungen

Gesundheit
Arzt <2.000m
Apotheke <1.500m
Klinik <5.000m
Krankenhaus <7.000m

Kinder & Schulen
Schule <1.000m
Kindergarten <1.500m
Universität <4.000m
Höhere Schule <6.500m

Nahversorgung
Supermarkt <1.500m
Bäckerei <1.500m
Einkaufszentrum <3.500m

Sonstige
Geldautomat <3.500m
Bank <1.500m
Post <1.500m
Polizei <1.500m

Verkehr
Bus <500m
U-Bahn <1.500m
Straßenbahn <3.500m
Bahnhof <1.500m
Autobahnanschluss <1.500m

Angaben Entfernung Luftlinie / Quelle: OpenStreetMap

Eckdaten Objektnr. 1939/216335

Art: Wohnung
Land: Österreich
Zustand: Erstbezug
Alter: Neubau
Kaufpreis: 399.000,00
Provision: Provision bezahlt der Abgeber
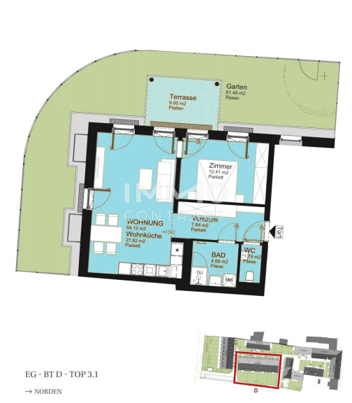
Wohnfläche: 54,12 m²
Nutzfläche: 54,12 m²
Gesamtfläche: 62,52 m²
Zimmer: 2
Bäder: 1
WC: 1
Terrassen: 1
Garten: 61,49 m²
Keller: 2,90 m²
Heizwärmebedarf:  B  38,70 kWh/m²a
fGEE:  A  0,79
Immobilie merken Exposé

Ausstattung

Fliesen, Parkett, Fußbodenheizung, Personenaufzug, Dusche, Parkplatz, Tiefgarage


Immobilie anfragen


Ihre persönliche Beratung

IMMOcontract Immobilien Vermittlung GmbH

Zuzanna Mazurek, MA

IMMOcontract Immobilien Vermittlung GmbH

T +43 664 88271745

H +43 664 88271745