Moderne und ruhige Gartenwohnung in bester Lage, 2 Garagenplätze optional

Wohnung , 1190 Wien


Beschreibung der Immobilie

Moderne und ruhige Gartenwohnung in bester Lage, 2 Garagenplätze optional

Willkommen in Ihrem neuen Zuhause – einer exklusiven und moderne Gartenwohnung im begehrten 19. Bezirk, die modernes Wohnen mit höchstem Komfort vereint.



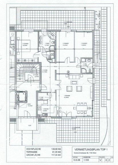
Diese neuwertige Wohnung besticht durch ihre großzügige Wohnfläche von 140 m², verteilt auf vier helle und freundliche Zimmer, die Ihnen und Ihrer Familie viel Raum zur individuellen Gestaltung bieten.



Die Wohnung überzeugt durch ein durchdachtes Raumkonzept.



Das südseitige Wohnzimmer, lichtdurchflutet und geräumig, bildet das Herz dieses wunderschönen Apartments. Die Schiebetüren öffnen sich zu einer großen, mit einer Markise beschatteten Terrasse, sowie dem Gartenbereich. Genießen Sie Ihre private grüne Oase mitten in der Stadt, ideal für gemütliche Stunden, Grillabende oder zum Spielen mit Ihren Kindern. In dem großen Raum ist außerdem die halboffenen Küche integriert, ausgestattet mit Spüle, Kühl-/Gefrierschrank, Geschirrspüler, Herd und ausreichend Unter- und Oberkästen.



Von der zentralen Diele sind die 3 (Schlaf-) Räume getrennt begehbar, alle wiederum mit direktem Ausgang auf eine weitere Terrasse. Das Hauptbadezimmer ist mit Wanne und Dusche ausgestattet, das Gästebad mit Dusche, Toilette und WaMa Anschluß. 



Eine Gästetoilette, sowie der Abstellraum komplettieren den durchdachten Grundriss der Wohnung.



Hochwertige Materialien wie edle Fliesen und warmes Parkettboden verleihen ein stilvolles Ambiente. Die Fußbodenheizung sorgt für wohlige Wärme an kalten Tagen und wird durch eine effiziente Gasversorgung (Zentralheizung) unterstützt.



Für Ihre Fahrzeuge stehen Ihnen - optional - zwei Garagenplätze zur Verfügung, die Ihnen bequemes und sicheres Parken garantieren. Ein Personenaufzug erleichtert den Zugang zur Wohnung und macht den Alltag besonders angenehm. Monatliche Miete / Parkplatz: € 140,-, zuzüglich BK und USt





Ausstattung:



  • Wohnzimmer mit integrierter Küche
  • 3 (Schlaf-) Zimmer
  • 2 Badezimmer
  • Gästetoilette
  • Großer Abstellraum
  • Großzügiger Vorraum
  • Terrassen, Eigengarten


Kellerabteil mit Stromanschluss



Elektrische Aussenjalousien



Alarmanlage



barrierefreie Erreichbarkeit von Wohnung, Keller und Garage



eigener Weinkeller, "Party"raum





Lage:



Öffentliche Verkehrsmittel wie die Buslinien 35A und 37A sind ca 10 Gehminuten entfernt. Ebenso Nahversorger des täglichen Bedarfs, sowie Banken, Ärzte, Schulen.....



Kontakt:



Für weitere Fragen sowie zur Vereinbarung eines Besichtigungstermins steht Ihnen Frau Eva Dieter unter e.dieter@avium.at zur Verfügung.



Bitte beachten Sie, dass per 13.06.2014 eine neue EU-Richtlinie für Fernabsatz- und Auswärtsgeschäfte in Kraft getreten ist.



Dieses Objekt wird Ihnen unverbindlich und freibleibend zur Miete angeboten.



Die von uns erbrachten Informationen beruhen auf Angaben des Abgebers. Für die Richtigkeit und Vollständigkeit der Angaben kann keine Gewähr bzw. Haftung übernommen werden.






Hinweis gemäß Energieausweisvorlagegesetz: Ein Energieausweis wurde vom Eigentümer bzw. Verkäufer, nach unserer Aufklärung über die generell geltende Vorlagepflicht, sowie Aufforderung zu seiner Erstellung noch nicht vorgelegt. Daher gilt zumindest eine dem Alter und der Art des Gebäudes entsprechende Gesamtenergieeffizienz als vereinbart. Wir übernehmen keinerlei Gewähr oder Haftung für die tatsächliche Energieeffizienz der angebotenen Immobilie.


Der Immobilienmakler erklärt, dass er – entgegen dem in der Immobilienwirtschaft üblichen Geschäftsgebrauch des Doppelmaklers – einseitig nur für den Vermieter tätig ist.

Infrastruktur / Entfernungen

Gesundheit
Arzt <500m
Apotheke <1.000m
Klinik <2.000m
Krankenhaus <2.000m

Kinder & Schulen
Schule <500m
Kindergarten <500m
Universität <1.500m
Höhere Schule <1.500m

Nahversorgung
Supermarkt <1.000m
Bäckerei <500m
Einkaufszentrum <3.500m

Sonstige
Geldautomat <1.000m
Bank <1.000m
Post <1.500m
Polizei <1.000m

Verkehr
Bus <500m
U-Bahn <3.000m
Straßenbahn <1.500m
Bahnhof <2.000m
Autobahnanschluss <3.500m

Angaben Entfernung Luftlinie / Quelle: OpenStreetMap

Eckdaten Objektnr. 615

Art: Wohnung
Land: Österreich
Baujahr: 2007
Zustand: Neuwertig
Alter: Neubau
Gesamtmiete: 3.314,85
Kaltmiete (netto): 2.450,00 €
Kaltmiete: 2.853,69 €
Provision: Gemäß Erstauftraggeberprinzip bezahlt der Abgeber die Provision.
Betriebskosten: 403,69 €
Heizkosten: 148,98 €
MwSt Gesamt: 312,18 €
Wohnfläche: 139,55 m²
Zimmer: 4
Bäder: 2
WC: 2
Terrassen: 2
Garten: 60,00 m²
Keller: 12,46 m²
Immobilie merken Exposé

Ausstattung

Fliesen, Parkett, Gas, Fußbodenheizung, Wohnküche / offene Küche, Personenaufzug, Nordbalkon, Südbalkon, Bad mit Fenster, Badewanne, Dusche, Garage, Alarmanlage


Immobilie anfragen


Ihre persönliche Beratung

Avium Real GmbH

Eva Dieter

Avium Real

T +43 6991 524 23 84

H +43 6991 524 23 84