3-Zimmer-Wohnung mit Potenzial | Nähe U1 & Favoritenstraße

Wohnung - Erdgeschoß, 1100 Wien


Beschreibung der Immobilie

3-Zimmer-Wohnung mit Potenzial | Nähe U1 & Favoritenstraße

Nur wenige Gehminuten von der U1 entfernt gelangt diese 3-Zimmer-Wohnung mit Gestaltungspotenzial zum Verkauf. Die Wohnung befindet sich im Erdgeschoss eines klassischen Wiener Wohnhauses.



Die Wohnung wurde 2004 umfassend saniert und mehrere Jahre vom Eigentümer selbst genutzt. In den letzten Jahren war sie vermietet und befindet sich aktuell in einem gebrauchsbedingten, etwas abgewohnten Zustand, bietet jedoch eine solide Grundlage für eine Modernisierung nach eigenen Vorstellungen.



Dank des gut nutzbaren Grundrisses eignet sich die Wohnung ideal für Käufer, die ihr zukünftiges Zuhause individuell gestalten möchten.



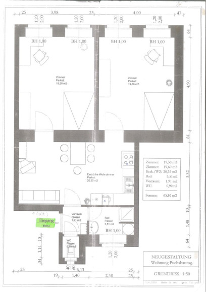
Highlights auf einen Blick



  • ca. 65,4 m² Wohnfläche
  • Wohnküche als zentraler Wohnbereich
  • 2 große Zimmer
  • Badezimmer mit Fenster und Badewanne
  • separates WC mit Fenster
  • Altbau mit angenehmer Raumhöhe
  • Wohnung wurde 2004 umfassend saniert
  • zuletzt vermietet – aktuell gebrauchsbedingt abgewohnt
  • Gestaltungs- und Modernisierungspotenzial
  • nur wenige Gehminuten zur U1


Raumaufteilung



  • Vorraum
  • Wohnküche
  • Zimmer
  • Zimmer
  • Badezimmer
  • separates WC


Der zentrale Wohnbereich ist als Wohnküche gestaltet und bietet ausreichend Platz für einen Wohn- und Essbereich.



Zusätzlich stehen zwei gut geschnittene Zimmer zur Verfügung, die sich flexibel als Schlafzimmer, Kinderzimmer oder Arbeitszimmer nutzen lassen.



Das Badezimmer verfügt über ein Fenster und ist mit einer Badewanne ausgestattet. Ergänzt wird das Raumangebot durch ein separates WC.



Die Beheizung erfolgt über eine Gasetagenheizung.





Gebäude & Allgemeinflächen



Für zukünftige Erhaltungsarbeiten steht zudem eine Rücklage von rund € 60.000 zur Verfügung. Ein Teil der monatlichen Vorschreibung entfällt auf die Darlehensrückzahlung für die bereits erfolgte Dachsanierung. Diese läuft voraussichtlich bis 2028; danach reduziert sich die monatliche Vorschreibung um derzeit rund € 65.



Lagebeschreibung



Die Wohnung befindet sich in einem urbanen Wohngebiet mit sehr guter Infrastruktur.



In der näheren Umgebung befinden sich zahlreiche Einkaufsmöglichkeiten, Supermärkte, Bäckereien, Restaurants sowie diverse Dienstleistungsbetriebe, die den täglichen Bedarf bequem abdecken. Auch die Favoritenstraße, eine der wichtigsten Einkaufsstraßen des Bezirks, ist gut erreichbar und bietet ein vielfältiges Angebot an Geschäften und Gastronomie.



Die U-Bahn-Station Reumannplatz (U1) ist in etwa 3–4 Gehminuten erreichbar und ermöglicht eine rasche Verbindung in die Wiener Innenstadt sowie zu weiteren wichtigen Knotenpunkten der Stadt.



Ein beliebter Treffpunkt in der Umgebung ist der bekannte Eissalon Tichy, der seit Jahrzehnten zu den traditionsreichen Institutionen des Bezirks zählt. Ebenfalls nur wenige Minuten entfernt befindet sich das Amalienbad, eines der bekanntesten Wiener Hallenbäder.



Für Erholung im Grünen sorgt zudem der Puchsbaumpark, der ebenfalls in wenigen Gehminuten erreichbar ist.



Die Lage verbindet somit eine sehr gute Infrastruktur, öffentliche Verkehrsanbindung und eine lebendige Grätzl-Atmosphäre.



Besichtigung



Für weitere Informationen, Unterlagen oder zur Vereinbarung eines Besichtigungstermins stehe ich Ihnen gerne zur Verfügung.

Noch nichts gefunden? Wir informieren Sie über geeignete Immobilienangebote noch vor allen anderen.
Legen Sie jetzt Ihren individuellen Suchagenten unter folgendem Link an. Wir schicken Ihnen passende Immobilien exklusiv vorab zu.

Suchagent anlegen - https://remax-4you.service.immo/registrieren/de


Der Vermittler ist als Doppelmakler tätig.

Infrastruktur / Entfernungen

Gesundheit
Arzt <500m
Apotheke <500m
Klinik <1.000m
Krankenhaus <2.500m

Kinder & Schulen
Schule <500m
Kindergarten <500m
Universität <500m
Höhere Schule <2.500m

Nahversorgung
Supermarkt <500m
Bäckerei <500m
Einkaufszentrum <1.500m

Sonstige
Geldautomat <500m
Bank <500m
Post <500m
Polizei <1.000m

Verkehr
Bus <500m
U-Bahn <500m
Straßenbahn <500m
Bahnhof <500m
Autobahnanschluss <1.000m

Angaben Entfernung Luftlinie / Quelle: OpenStreetMap

Eckdaten Objektnr. 1662/3127

Art: Wohnung - Erdgeschoß
Land: Österreich
Baujahr: 1875
Alter: Altbau
Kaufpreis: 150.000,00
Provision: 3% des Kaufpreises zzgl. 20% USt.
Betriebskosten: 223,67 €
MwSt Gesamt: 22,37 €
Wohnfläche: 65,40 m²
Zimmer: 3
Bäder: 1
WC: 1
Heizwärmebedarf:  E  154,90 kWh/m²a
fGEE:  D  2,40
Immobilie merken Exposé

Ausstattung

Fliesen, Laminatboden, Gas, Etagenheizung, Wohnküche / offene Küche, Bad mit Fenster, Badewanne


Immobilie anfragen


Ihre persönliche Beratung

RE/MAX 4You

Silvija Fijuljanin

RE/MAX 4You

T +43 1 403 28 90

H +43 69919762412