Senftenberg im Weinbaugebiet Kremstal: Zweifamilienhaus mit Balkonen, Garten und Garage

Haus , 3541 Senftenberg


Beschreibung der Immobilie

Senftenberg im Weinbaugebiet Kremstal: Zweifamilienhaus mit Balkonen, Garten und Garage

In einer ruhigen Sackgasse von Senftenberg, ca. 9 km von Krems liegt dieses Zweifamilienhaus mit einer Wohnnutzfläche von 193,30 m², verteilt auf 2 Wohnebenen, mit Kellergeschoß, Garage und Gartenfläche.



  • Wohnnutzfläche:                    193 m²
  • Grundstücksfläche:                650 m²
  • Bebaute Fläche:                    184 m²
  • unverbaute Fläche / Garten: 466  m²
  • Umbauter Raum:                1.100 m²


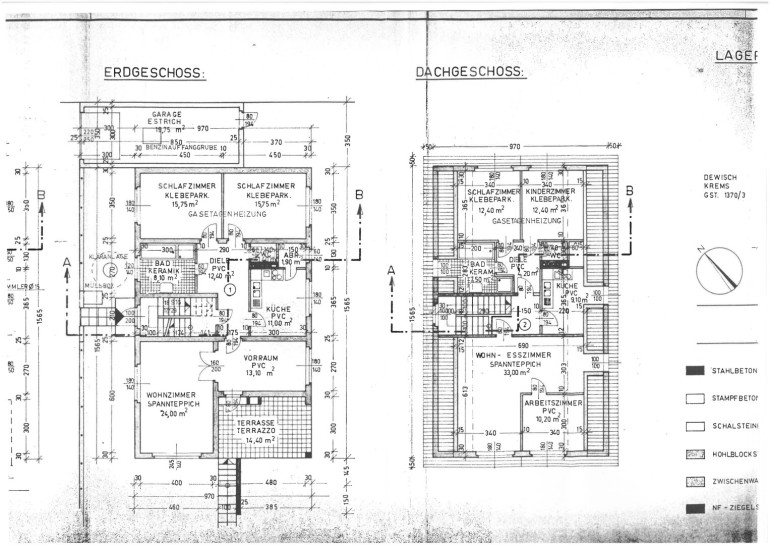
Raumaufteilung Wohnung 1. Hochparterre: Gesamtfläche 103,40 m²



  • Wohnzimmer   24,00 m²
  • Schlafzimmer  15,75 m²
  • Schlafzimmer  15,75 m²
  • Küche              11,00 m²
  • Abstellraum       1,90 m²
  • Vorraum           13,10 m²
  • Diele                12,40 m²
  • Bad:                   8,10 m²
  • Toilette:              1,40 m²


Raumaufteilung Wohnung 2. im 1. Stock: Gesamtfläche 89,90 m²



  • Wohn-Esszimmer: 33,00 m²
  • Zimmer:                 12,40 m²
  • Schlafzimmer:       12,40 m²
  • Arbeitszimmer:      10,20 m²
  • Küche:                    9,10 m²
  • Bad:                        7,20 m²
  • Toilette:                   1,40 m²
  • Diele:                      4,20 m²


Untergeschoß / Keller:  Gesamtfläche 105,10 m²



  • 6 Räume
  • Heizraum mit neuwertiger Gasheizung




Lagebeschreibung:



Senftenberg ist eine Marktgemeinde mit 1896 Einwohnern (Stand 1. Jänner 2024) im Bezirk Krems-Land in Niederösterreich. Die Gemeinde liegt im Weinbaugebiet Kremstal im südlichen Waldviertel. Mit einer Fläche von 34,76 Quadratkilometern zählt Senftenberg flächenmäßig zu den kleineren Gemeinden Niederösterreichs. Durch den Einfluss der Landwirtschaft, insbesondere des Weinbaues ist Senftenberg bis heute ländlich geprägt. Das Wahrzeichen der Gemeinde ist die Burgruine Senftenberg.


Der Vermittler ist als Doppelmakler tätig.

Infrastruktur / Entfernungen

Gesundheit
Arzt <3.000m
Apotheke <7.000m
Krankenhaus <7.500m
Klinik <7.000m

Kinder & Schulen
Schule <1.500m
Kindergarten <1.500m
Universität <6.500m
Höhere Schule <6.500m

Nahversorgung
Supermarkt <5.000m
Bäckerei <3.000m
Einkaufszentrum <7.500m

Sonstige
Geldautomat <1.500m
Bank <1.500m
Polizei <7.000m
Post <5.000m

Verkehr
Bus <500m
Autobahnanschluss <6.500m
Bahnhof <6.500m
Flughafen <7.000m

Angaben Entfernung Luftlinie / Quelle: OpenStreetMap

Eckdaten Objektnr. 5998/628

Art: Haus
Land: Österreich
Kaufpreis: 280.000,00
Wohnfläche: 186,00 m²
Grundstücksfl.: 650,00 m²
Balkone: 2
Garten: 464,00 m²
Heizwärmebedarf:  G  253,80 kWh/m²a
fGEE:  E  2,56
Immobilie merken Exposé

Ausstattung

Einbauküche, Garage


Immobilie anfragen


Ihre persönliche Beratung

VM Estates GmbH

GUDRUN BOGNER

VM Estates GmbH

T +43 1 30 84 175

H +43 676 3536 778