Top Gartenwohnung mit sehr gutem Grundriß im Jahrhundertwendehaus!
Wohnung
,
1050
Wien
U4, Bus, Straßenbahn, ...
Beschreibung der Immobilie
Top Gartenwohnung mit sehr gutem Grundriß im Jahrhundertwendehaus!
Sehr schöne Gartenwohnung mit sehr gutem Grundriß im Jahrhundertwendehaus!
Die Wohnung im ruhigen Wohnhaus ist absolut verkehrsgünstig (U4 / 2 Gehminuten, Straßenbahn, Bus) gelegen.
Die Wohnräume haben einen Blick in den ruhigen 2. Innenhof und in den Garten, der ideal für Kinder ist.
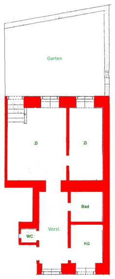
Die Wohnung gliedert sich wie folgt:
ein großes Wohnzimmer mit Ausgang in den Garten (ca. 45m² - davon ca. 6m² Terrasse), Zimmer (Blick in den Garten), Küche, Bad mit Waschmaschinenanschluß und Sprossenheizkörper, Vorzimmer, WC
Beheizung und Warmwasseraufbereitung erfolgen mittels einer Gaskombitherme. Für ein angenehmes Raumklima sorgt die Fußbodenheizung in der ganzen Wohnung.
Die zwei Zimmer, die Küche und das Vorzimmer verfügen über einen Parkettboden. Die anderen Räumlichkeiten sind verfliest.
Die Wohnung befindet sich in einem professionell neu ausgemalten Zustand!
Wir geben Ihnen gerne nähere Informationen!
Noch nichts gefunden? Wir informieren Sie über geeignete Immobilienangebote noch vor allen anderen.
Legen Sie jetzt Ihren individuellen Suchagenten unter folgendem Link an. Wir schicken Ihnen passende Immobilien exklusiv vorab zu.
Suchagent anlegen - https://rit.service.immo/registrieren/de
Hinweis gemäß Energieausweisvorlagegesetz: Ein Energieausweis wurde vom Eigentümer bzw. Verkäufer, nach unserer Aufklärung über die generell geltende Vorlagepflicht, sowie Aufforderung zu seiner Erstellung noch nicht vorgelegt. Daher gilt zumindest eine dem Alter und der Art des Gebäudes entsprechende Gesamtenergieeffizienz als vereinbart. Wir übernehmen keinerlei Gewähr oder Haftung für die tatsächliche Energieeffizienz der angebotenen Immobilie.
Wir weisen darauf hin, dass zwischen dem Vermittler und dem zu vermittelnden Dritten ein familiäres oder wirtschaftliches Naheverhältnis besteht.
Der Immobilienmakler erklärt, dass er – entgegen dem in der Immobilienwirtschaft üblichen Geschäftsgebrauch des Doppelmaklers – einseitig nur für den Vermieter tätig ist.
Infrastruktur / Entfernungen
Gesundheit
Arzt <500m
Apotheke <500m
Klinik <500m
Krankenhaus <1.000m
Kinder & Schulen
Schule <500m
Kindergarten <500m
Universität <1.000m
Höhere Schule <1.000m
Nahversorgung
Supermarkt <500m
Bäckerei <500m
Einkaufszentrum <1.500m
Sonstige
Geldautomat <500m
Bank <500m
Post <500m
Polizei <1.000m
Verkehr
Bus <500m
U-Bahn <500m
Straßenbahn <500m
Bahnhof <500m
Autobahnanschluss <4.000m
Angaben Entfernung Luftlinie / Quelle: OpenStreetMap
Eckdaten Objektnr. 8701
| Art: | Wohnung |
| Land: | Österreich |
| Baujahr: | 1904 |
| Zustand: | Gepflegt |
| Alter: | Neubau |
| Gesamtmiete: | 995,00 € |
| Kaltmiete (netto): | 800,24 € |
| Kaltmiete: | 904,55 € |
| Provision: | Gemäß Erstauftraggeberprinzip bezahlt der Abgeber die Provision. |
| Betriebskosten: | 104,31 € |
| MwSt Gesamt: | 90,45 € |
| Wohnfläche: | 57,00 m² |
| Grundstücksfl.: | 45,00 m² |
| Bäder: | 1 |
| WC: | 1 |
| Terrassen: | 1 |
| Garten: | 40,00 m² |
Ausstattung
Fliesen, Parkett, Gas, Etagenheizung, Einbauküche
Ihre persönliche Beratung
Dieser Makler ist ein offizielles Mitglied des IR – ir.at Mehr Erfahren
