#SQ - EXKLUSIVE BAUBEWILLIGTE MODERNE VILLA AM KAHLENBERG

Grundstück - Baugrund Eigenheim, 1190 Wien


Als wahrhaftes Juwel in puncto Standortvorteile präsentiert sich die Kahlenberger Straße. Mit einer exzellenten Anbindung an die öffentlichen Verkehrsmittel ist die pulsierende Wiener Innenstadt oder andere Stadtteile rasch und bequem erreichbar. Für Autofahrer bietet die Straße eine optimale Anbindung, inklusive reichlicher Parkmöglichkeiten – ein seltener Luxus in der Stadt. Busstation: Friedhof Heiligenstadt 38A - 2 Gehminuten Grinzing: Straßenbahn 38 - 15 min Nussdorf: Straßenbahn Linie D - 15 min In Grinzing finden Sie alle Geschäfte des tägl. Bedarfs so wie Supermärkte, Banken, Apotheke, Bäckerei u.v.m. Ebenso können Sie Schulen und Kindergärten sehr gut erreichen. Vienna international school, lycee francais als auch mehrere internationale Kindergärten befinden sich alle im 19ten Bezirk. Die unmittelbare Umgebung trumpft mit einem breiten Spektrum an Einkaufsgelegenheiten, gehobenen Restaurants und charmanten Cafés auf. Hier findet sich für jeden Anlass das passende Ambiente, sei es für eine entspannte Kaffeepause oder ein exquisites Dinner. Kulturell sticht Döbling durch seine historischen Schätze hervor. Das Schloss Cobenzl, nicht nur ein kulturelles Herzstück mit dem Weinbau- und Heimatmuseum, sondern auch Heimstätte für kulinarische Genüsse mit traditionell österreichischer Küche. Ein weiteres Highlight bildet das Beethovenhaus, ein Ort, der den Geist des legendären Komponisten atmet. Döbling vereint somit Naturschönheit mit urbanem Flair und kultureller Vielfalt – eine Top-Adresse für anspruchsvolle Lebenskünstler in Wien.

Beschreibung der Immobilie

#SQ - EXKLUSIVE BAUBEWILLIGTE MODERNE VILLA AM KAHLENBERG

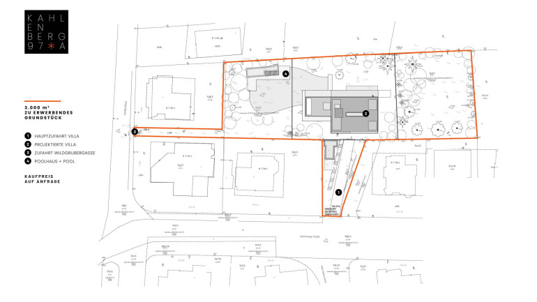
Zum Verkauf gelangt eine beeindruckende und moderne, baubewilligte Villa samt 3000m² Grundstück in Top Lage des 19ten Bezirks. Umgeben von Villen und den Wiener Weinbergen, fügt sich die Liegenschaft in ein schönes Ensemble von Altvillen und exklusiven Neubauten ein. Westseitig grenzt das Objekt direkt an das unverbaubare Schutzgebiet. 



Stararchitekt Zoran Bodrozic war federführend für die moderne Planung verantwortlich, die dem einzigartigen Projekt zugrunde liegt: Seiner Vision verdanken wir die klaren Linien und die formvollendete Verbindung der großen Glasflächen mit Sichtbeton, Holzelementen und der durchdachten Raumfolge.



Eckdaten im Überblick: 



Grundstück: ca. 3.000m²

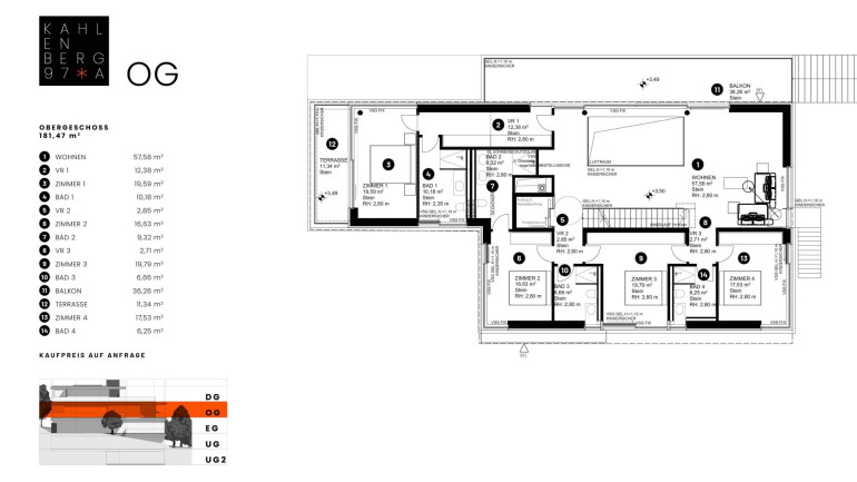
geplante Wohnfläche: ca. 540m²

Schlafzimmer: 4

Bäder: 5

Pools: 2 

Terrassen: 6

Garagenplätze: 4



Beschreibung: 



Aufgrund der leichten Hanglage schmiegt sich das Grundstück terrassenförmig in die Landschaft und besticht durch den wunderschönen Fernblick aus den oberen Geschossen oder der Pergola mit Outdoor Küche.​ Sowohl die absolute Ruhelage als auch die Verarbeitung natürlicher zeitloser Elemente vermitteln Wärme und Naturverbundenheit, die der Villa eine neue  Dimension räumlicher Freiheit und Offenheit übertragen.  Sie werden die Ruhe, zeitlose Eleganz und Naturverbundenheit des Projektes zu schätzen wissen. 



Das Grundstück ist terrassenförmig erschlossen und bietet vom oberen Geschoss aus einen Fernblick über ganz Wien.



Sowohl die absolute Ruhelage als auch der Einsatz von natürlichen, zeitlosen Elementen in der Konstruktion der Villa, stellen ein Gefühl der Wärme, der Verbundenheit mit der Natur und eine neue Dimension der räumlichen Freiheit und Offenheit für Ihr neues Zuhause dar. In einer lauten, schnell lebigen und konsumorientierten Welt, bietet unser Projekt ein ruhiges, elegantes, zeitloses, modernes als auch mit der Natur verschmolzenes Zuhause und Refugium.



Wohnen: 



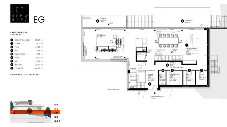
Die südseitig ausgerichtete Glasfront lässt sich nach Belieben öffnen und verpasst dem großzügigen Wohnbereich seinen speziellen Charme. Von dort aus ist die freie Sicht über die Liegenschaft, bis hin zu den Hügeln des Umlandes, besonders eindrucksvoll.



Küche und Essen:



Das Konzept stellt die hochwertige, offene Küche – mit angrenzendem Essbereich – in den Mittelpunkt. Sie dient als Kernelement, das den geräumigen Bereich in einen Wohlfühlort verwandelt, der sich für Empfänge und gesellige Dinner eignet. Der helle Raum ist zur Galerie hin offen und – dank verglaster Südseite und Fenster nach Westen – den ganzen Tag lang mit Licht durchflutet.



Schlafen:



Die projektierte Villa sieht mehrere Schlafbereiche und Gästezimmer vor. Während das große Schlafzimmer (mit Bad und Ankleide) als On-Suite geplant ist, wurden auch die weiteren Schlafräume großzügig, modern und luxuriös gestaltet.



Garten & Pool:



Das 3,000 m² große Grundstück grenzt unmittelbar an ein Naturschutzgebiet. Während die leichte Hanglage vielseitige Möglichkeiten in der Landschaftsgestaltung bietet, schafft der Naturpool im Garten ein ausgewogenes Mikroklima. Für die vielseitige Nutzung ist das Außenbecken mit dem Indoor-Pool verbunden. Zum Schutz der Privatsphäre ist das Anwesen weiters durch große Pflanzen der weitläufigen – nach Süd/Südwest ausgerichtet Gartenanlage – geschützt.



Pergola:



Ein besonderes Highlight bietet die höher gelegene Pergola mit Outdoor-Küche und Ess- bzw. Partybereich. Von hier aus genießt man einen fantastischen Ausblick – weit über die Villa und das Anwesen hinaus, über die umliegenden Grundstücke hinweg, bis weit über die Dächer Wiens.



Garage:



Die großzügige Garage im Untergeschoss der Villa bietet Platz für 4 PKW und ist direkt von der Kahlenberger Straße per Zufahrt zugänglich. Ebenso der einladend gestaltete Haupteingang.



Kosten: 



Kaufpreis auf Anfrage.



Provision: 3% vom KP zzgl. gesetzl. Mwst. 



Kontaktdaten: 



Für Fragen und Besichtigungen, kontaktieren Sie bitte Frau Ines Guelmami unter 0676 40 60 310 oder unter ines.guelmami@stadquartier.at 



Weitere Objekte auf: 



www.stadtquartier.at


Wir weisen darauf hin, dass zwischen dem Vermittler und dem zu vermittelnden Dritten ein familiäres oder wirtschaftliches Naheverhältnis besteht.


Der Vermittler ist als Doppelmakler tätig.

Infrastruktur / Entfernungen

Gesundheit
Arzt <1.000m
Apotheke <1.000m
Klinik <1.000m
Krankenhaus <2.000m

Kinder & Schulen
Schule <1.000m
Kindergarten <1.000m
Universität <1.500m
Höhere Schule <1.500m

Nahversorgung
Supermarkt <1.000m
Bäckerei <1.000m
Einkaufszentrum <1.500m

Sonstige
Geldautomat <1.500m
Bank <1.000m
Post <1.000m
Polizei <1.500m

Verkehr
Bus <500m
U-Bahn <2.000m
Straßenbahn <1.000m
Bahnhof <1.500m
Autobahnanschluss <1.500m

Angaben Entfernung Luftlinie / Quelle: OpenStreetMap

Eckdaten Objektnr. 21350

Art: Grundstück - Baugrund Eigenheim
Land: Österreich
Alter: Neubau
Provision: 3% des Kaufpreises zzgl. 20% USt.
Wohnfläche: 540,00 m²
Grundstücksfl.: 3.000,00 m²
Zimmer: 4
Bäder: 5
Terrassen: 6
Heizwärmebedarf:  B  43,00 kWh/m²a
fGEE:  A+  0,75
Immobilie merken Exposé

Immobilie anfragen


Ihre persönliche Beratung

STADTQUARTIER Home GmbH

BBA Ines Guelmami

STADTQUARTIER Real Estate Group

T +43 676 406 03 10

H +43 676 406 03 10