Großzügige Fläche für Fitnesscenter im Twenty One - Central Hub

Freizeitimmobilie gewerblich , 1210 Wien


1210 Wien Floridsdorf

Beschreibung der Immobilie

Großzügige Fläche für Fitnesscenter im Twenty One - Central Hub



Attraktive Gewerbefläche für Fitnesscenter im Central Hub



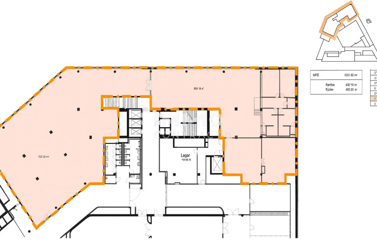
Im modernen Central Hub im 21. Bezirk steht eine großzügige und vielseitig nutzbare Gewerbefläche mit ca. 1.100 m² zur Vermietung. Die Fläche eignet sich ideal für ein Fitnesscenter, Gesundheits- oder Sportkonzept und befindet sich in einem dynamisch wachsenden Unternehmensumfeld.



🌆 Lage & Umfeld



Der Central Hub umfasst insgesamt 50.000 m² neu geschaffene Gewerbeflächen und liegt direkt gegenüber der Siemens City, einem der größten Unternehmensstandorte Wiens. Zusätzlich befinden sich zahlreiche weitere Betriebe, Büros und Dienstleister in unmittelbarer Umgebung – ein starkes Einzugsgebiet mit hoher Frequenz und großem Kundenpotenzial.



🏢 Objektbeschreibung





Die Fläche ist ideal für ein modernes Fitnesscenter konzipiert und bietet großzügige, flexibel gestaltbare Bereiche. Die Raumhöhe, die Gebäudestruktur und die offene Grundrisslogik ermöglichen vielfältige Trainings- und Kursformate.



Hauptmerkmale:




  • Großzügige, offene Trainingsflächen



  • Hohe Raumhöhe – ideal für Cardio, Krafttraining und Functional Workouts



  • Abtrennbare Bereiche für Kurse, Yoga, Pilates, Gruppenfitness



  • Empfangs- und Loungezone möglich



  • Umkleiden und Sanitärbereiche vorhanden bzw. adaptierbar



  • Große Fensterflächen für natürliche Belichtung






Miete: 16,50/m2, BK: 4,60/m2 exkl. USt.


Wir weisen darauf hin, dass zwischen dem Vermittler und dem zu vermittelnden Dritten ein familiäres oder wirtschaftliches Naheverhältnis besteht.


Der Vermittler ist als Doppelmakler tätig.

Infrastruktur / Entfernungen

Gesundheit
Arzt <1.500m
Apotheke <1.000m
Klinik <1.500m
Krankenhaus <1.500m

Kinder & Schulen
Schule <1.000m
Kindergarten <500m
Universität <2.000m
Höhere Schule <3.000m

Nahversorgung
Supermarkt <500m
Bäckerei <500m
Einkaufszentrum <2.000m

Sonstige
Geldautomat <1.500m
Bank <1.500m
Post <1.500m
Polizei <1.500m

Verkehr
Bus <500m
U-Bahn <2.000m
Straßenbahn <1.500m
Bahnhof <500m
Autobahnanschluss <2.000m

Angaben Entfernung Luftlinie / Quelle: OpenStreetMap

Eckdaten Objektnr. 1939/217034

Art: Freizeitimmobilie gewerblich
Land: Österreich
Baujahr: 2025
Kaltmiete (netto): 17.600,00 €
Kaltmiete: 22.660,00 €
Miete / m²: 16,00 €
Provision: 81.576,00 € inkl. 20% USt.
Betriebskosten: 5.060,00 €
MwSt Gesamt: 4.532,00 €
Nutzfläche: 1.100,00 m²
Heizwärmebedarf: 36,00 kWh/m²a
fGEE: 0,61
Immobilie merken Exposé

Ausstattung

Garage, Parkhaus


Immobilie anfragen


Ihre persönliche Beratung

IMMOcontract Immobilien Vermittlung GmbH

Roman Schmatzer

IMMOcontract Immobilien Vermittlung GmbH

T +43 664 4360663

H +43 664 4360663