Traumhaft helle und schöne Doppelterrassenwohnung mit Berg- und Grünblick in Maxglan - 2 Terrassen, 3 1/2 Zimmer, gelegen im Dachgeschoß; 1 Pkw-Stellplatz

Wohnung - Terrassenwohnung, 5020 Salzburg


Schöne Aussichten, ruhige Lage in Altmaxglan, gute Infrastruktur, leicht erreichbar über Salzburg Mitte oder Wals (Innsbrucker Bundesstraße)

Beschreibung der Immobilie

Traumhaft helle und schöne Doppelterrassenwohnung mit Berg- und Grünblick in Maxglan - 2 Terrassen, 3 1/2 Zimmer, gelegen im Dachgeschoß; 1 Pkw-Stellplatz

Schöne Terrassenwohnung in Maxglan, zentral und dennoch ruhig gelegen, die zwei (!) Terrassen bieten beeindruckende Ausblicke und Sonne von morgens bis abends. Ihre neue Ruheoase mit Toplage im Dachgeschoß!



In wenigen Minuten in der Innenstadt, zusätzlich ebenso schnelle Erreichbarkeit der Umlandgemeinden (Wals, Hallwang; ebenso Grödig, Anif; und ebenso Freilassing), von Grün- und Bergland sowie des idyllischen Salzkammergutes.



Wohnung renoviert! Das Bad, die Küche und die Böden sind neu und unbenutzt.



Über 80m² Wohnfläche, zusätzlich 22m² Terrassenfläche, großes Kellerabteil (ca. 10m²) und Autoabstellplatz (ca. 12m²). Der Stellplatz ist im Kaufpreis inkludiert, wodurch Ihr Fahrzeug stets sicher und bequem geparkt ist. Die Lage in Salzburg verbindet urbanes Flair mit naturnahem Wohnen perfekt – ideal für Familien, Paare oder Singles, die Wert auf Qualität und Lebensqualität legen.



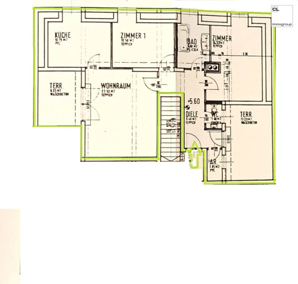
Raumaufteilung: Diele 9,40m², AR 1,85m², WC 1,60m², Bad 6,80m², Küche 10,79m², Zimmer 1 10,58m², Zimmer 16,69m², Wohnraum 22,52m², Summe 80,23m²; zusätzlich: Terrasse #1 13,23m², Terrasse #2 8,21m², Kellerabt. 9,44m², Autoabst.pl. 12,00m² (lt. Parifizierungsunterlagen).



Stadtteil: Maxglan; Ortsteil: Altmaxglan. Ausblick auf den Untersberg, die Berg- und Hügellandschaft im benachbarten Bayern, den Gaisberg, die Festung Hohensalzburg und weitere reizvolle Natur- und Stadtziele.



Besichtigung gerne nach Anfrage über diese Webseite/Plattform - samt Angabe Ihres Namens, Ihrer Adresse, Telefonnummer, E-Mail-Adresse (sämtliche Daten sind erforderlich aufgrund unserer Nachweispflicht ggü. dem Verkäufer). Danke für Ihr Verständnis!



Angaben nach bestem Wissen und Gewissen, jedoch ohne Gewähr u/o Haftung; Angebot unverbindlich und freibleibend, Zwischenverwertung vorbehalten.


Der Vermittler ist als Doppelmakler tätig.

Eckdaten Objektnr. 16382

Art: Wohnung - Terrassenwohnung
Land: Österreich
Baujahr: 1985
Zustand: Neuwertig
Kaufpreis: 440.000,00
Betriebskosten: 212,72 €
MwSt Gesamt: 21,27 €
Wohnfläche: 80,23 m²
Zimmer: 3,50
Bäder: 1
WC: 1
Terrassen: 2
Stellplätze: 1
Keller: 9,44 m²
Heizwärmebedarf:  C  75,10 kWh/m²a
fGEE:  C  1,29
Immobilie merken Exposé

Ausstattung

Laminatboden, Gas, Zentralheizung, Einbauküche, Parkplatz


Immobilie anfragen


Ihre persönliche Beratung

CL-immogroup GmbH

Mag. Clemens Wonisch

CL-immogroup GmbH

H +43 660 / 63 66 756